Maison de bourg 83m2 à réhabiliter

— Venansault 85190 —
69 800 €
83 m² / 143 m²
4 pièces

Imaginez le potentiel endormi de cette maison de bourg, prête à se réveiller sous vos travaux.
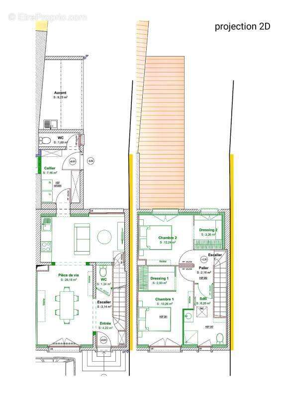
Une future cuisine-salle à manger avec sa cheminée, ouverte directement sur un salon. au même niveau vous trouverez des WC, une arrière cuisine donnant sur une cour privée avec préau.
À l'étage, deux chambres un bureau et une salle de bain attendent votre touche finale.
Oubliez la rénovation classique : un projet de réhabilitation complet et inspirant est proposé pour vous guider. Saisissez cette opportunité unique de créer un foyer sur mesure en plein bourg. L'histoire de cette maison attend son architecte, c'est peut-être vous.
***Votre agent indépendant Noovimo inscrit au RSAC de LA ROCHE SUR YON sous le No928920859 - ****
Vente interactive à prix progressif : les offres seront reçues sur la plateforme WINUP le 18/12/2025 à 19:00. Le prix de départ des offres est de 69 800 EUR (honoraires inclus). Les participants pourront enchérir par palier de 5 000 EUR.Une offre en ligne pendant la vente interactive ne constitue pas une offre ferme et définitive au sens de l'article 1114 du Code Civil, mais une simple intention d'achat.
Cette annonce vous est proposée par TALLET MATHIS - EI - NoRSAC: La Roche sur Yon, Enregistré à Greffe du tribunal de commerce de La Roche sur Yon
- Annonce rédigée et publiée par un Agent Mandataire -
Voir plus

Référence: 240_MTT-0025412
Honoraires d'agence de 7.38% à la charge de l'acquéreur
DPE
A
B
C
D
E
F
G
GES
A
B
C
D
E
F
G

Prêt immobilier

Vous souhaitez connaître votre capacité d’emprunt et trouver le meilleur crédit immobilier ?
Réaliser une simulation gratuite

Maison à VENANSAULT
Maison à VENANSAULT
Maison à VENANSAULT
Ce site est protégé par reCAPTCHA la Politique de confidentialité et les Conditions d’utilisation de Google s’appliquent.
Obtenir un prêt immobilier au meilleur taux ?

En poursuivant votre navigation sans modifier vos paramètres, vous acceptez l'utilisation de cookies susceptibles de réaliser des statistiques de visite. Cliquez ici pour plus d'informations