Bénéficiez des services de nos partenaires locaux soigneusement sélectionnés
pour vous accompagner dans votre parcours d'achat immobilier

Appartement 108 m² - immeuble hausmannien - avenue jean jaurès, paris 19e

— Paris-19e 75019 —
899 000 €
107 m²
6 pièces
ascenseur

Nos partenaires locaux
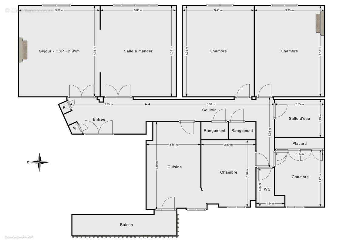
Découvrez cet appartement au charme classique haussmannien de 6 pièces situé Avenue Jean Jaurès à Paris 19e, au pied du métro Porte de Pantin. L'appartement dispose d'une surface Carrez de 107,42 m².

Planifiez facilement votre visite en choisissant le créneau qui vous convient depuis le site d'Hosman.

L'appartement est composé d'une double pièce de vie de 32m² donnant sur la rue Eugnène Jumin, d'une cuisine séparée, de trois chambres de respectivement 14,7m², 14,5m², et 8m², d'un bureau ou chambre enfant de 7,2m², d'une une salle d'eau avec grande douche, et d'un WC indépendant. De nombreux rangements sont intégrés dans l'appartement.
Le palier de l'escalier de service côté cuisine, permet la jouissance d'un espace extérieur exposé ouest.
Une cave complète ce bien.

Le chauffage est collectif via CPCU et l'eau chaude est assurée par un ballon spécifique pour la salle d'eau.

Ce bien est soumis au statut de copropriété.
Les charges de copropriété s'élèvent à 956€ par trimestre.
La taxe foncière est de 1862€.

Un local vélo est disponible au sein de la copropriété.
Une gardienne assure l'entretien.

L'appartement se situe à 20 m de la station de métro "Porte de Pantin" Ligne 5, à 6 minutes à pied de la station de tramway du même nom, en face du Parc de la Villette et de la Philarmonie de Paris. A proximité directe de tous les commerces de la rue piétonne Eugène Jumin à l'ambiance village : boucher, épicerie fine, primeur, boulanger ..

Hosman s'efforce de réinventer l'agence immobilière en offrant un service innovant et transparent aux acheteurs et aux vendeurs. Nos frais d'agence sont de 19900 euros fixes à la charge du vendeur. Si vous êtes un professionnel de l'immobilier (agent, mandataire ou chasseur immobilier), sachez que toutes les annonces Hosman sont ouvertes à la collaboration. N'hésitez pas à nous contacter pour en discuter.
Voir plus

Référence: 060f2f
Bien en copropriété. Charges de copropriété : 318 €.
Honoraires à la charge du vendeur.
DPE
A
B
C
D
E
F
G
GES
A
B
C
D
E
F
G

Prêt immobilier

Vous souhaitez connaître votre capacité d’emprunt et trouver le meilleur crédit immobilier ?
Réaliser une simulation gratuite

Appartement à PARIS-19E
Appartement à PARIS-19E
Appartement à PARIS-19E
Appartement à PARIS-19E
Appartement à PARIS-19E
Appartement à PARIS-19E
Appartement à PARIS-19E
Appartement à PARIS-19E
Appartement à PARIS-19E
Appartement à PARIS-19E
Appartement à PARIS-19E
Appartement à PARIS-19E
Appartement à PARIS-19E
Ce site est protégé par reCAPTCHA la Politique de confidentialité et les Conditions d’utilisation de Google s’appliquent.
Obtenir un prêt immobilier au meilleur taux ?

En poursuivant votre navigation sans modifier vos paramètres, vous acceptez l'utilisation de cookies susceptibles de réaliser des statistiques de visite. Cliquez ici pour plus d'informations