Bénéficiez des services de nos partenaires locaux soigneusement sélectionnés
pour vous accompagner dans votre parcours d'achat immobilier

Vente appartement 2 pièces de 48m² - 92130 issy-les-moulineaux

— Issy-Les-Moulineaux 92130 —
460 000 €
48 m²
2 pièces
parkingascenseur

Nos partenaires locaux
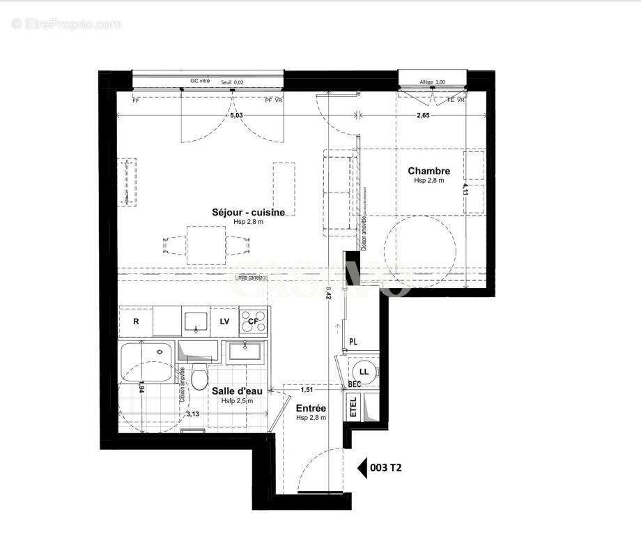
Casavo vous propose à la vente ce superbe deux-pièces de 46,5 m², situé au rez-de-chaussée d'une résidence contemporaine haut de gamme de 2025.

Bénéficiant d'une exposition Nord-Ouest, cet appartement neuf séduit par ses volumes équilibrés, sa luminosité naturelle et ses finitions élégantes, pensées pour offrir confort et modernité au quotidien.

L'espace de vie se compose d'une entrée de 5 m², d'un vaste séjour de 26,6 m² avec cuisine ouverte entièrement aménagée, d'une chambre spacieuse de 10,8 m², et d'une salle d'eau contemporaine avec toilettes (5,6 m²).

Réalisé avec des matériaux de qualité, le bien offre des prestations premium :
– Parquet en chêne, volets roulants motorisés, menuiseries aluminium double vitrage,
– Résidence sécurisée avec ascenseur, vidéophone et local à vélos,
– Place de parking privative en sous-sol.

Le logement présente un excellent classement énergétique (DPE C), garantissant confort thermique et performance énergétique.

Idéalement situé à 10 minutes à pied du métro Corentin-Celton (ligne 12), l'adresse bénéficie d'un accès direct vers Paris 15ᵉ, La Défense et Orly, au cœur du Grand Paris.

Un bien rare et fonctionnel, parfait pour un jeune couple, un investisseur ou un pied-à-terre haut de gamme aux portes de la capitale.

Ce bien est présenté par Casavo.

Intéressé par ce bien ? Plus d'informations sur le site de Casavo.
Voir plus

Référence: 44194
Bien en copropriété. Nombre de lots : 33.
Honoraires d'agence de 3.6% à la charge de l'acquéreur
DPE
A
B
C
D
E
F
G
GES
A
B
C
D
E
F
G

Prêt immobilier

Vous souhaitez connaître votre capacité d’emprunt et trouver le meilleur crédit immobilier ?
Réaliser une simulation gratuite

Appartement à ISSY-LES-MOULINEAUX
Appartement à ISSY-LES-MOULINEAUX
Appartement à ISSY-LES-MOULINEAUX
Appartement à ISSY-LES-MOULINEAUX
Appartement à ISSY-LES-MOULINEAUX
Appartement à ISSY-LES-MOULINEAUX
Appartement à ISSY-LES-MOULINEAUX
Appartement à ISSY-LES-MOULINEAUX
Appartement à ISSY-LES-MOULINEAUX
Appartement à ISSY-LES-MOULINEAUX
Appartement à ISSY-LES-MOULINEAUX
Ce site est protégé par reCAPTCHA la Politique de confidentialité et les Conditions d’utilisation de Google s’appliquent.
Obtenir un prêt immobilier au meilleur taux ?

En poursuivant votre navigation sans modifier vos paramètres, vous acceptez l'utilisation de cookies susceptibles de réaliser des statistiques de visite. Cliquez ici pour plus d'informations