Bénéficiez des services de nos partenaires locaux soigneusement sélectionnés
pour vous accompagner dans votre parcours d'achat immobilier

Vente appartement 6 pièces de 139m² - 75010 paris

— Paris-10e 75010 —
1 185 000 €
139 m²
6 pièces
balcon/terrasseascenseur

Nos partenaires locaux
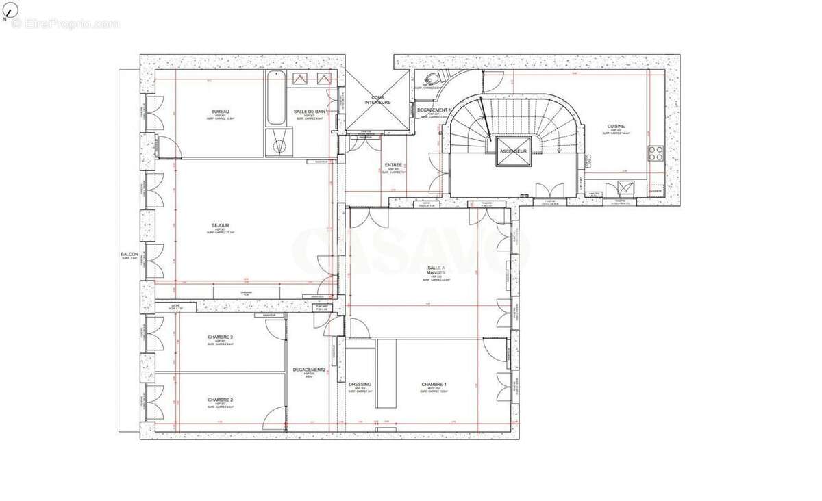
Casavo vous propose à la vente un magnifique appartement haussmannien de 134m²carrez (144m2 au sol) avec un balcon filant de 7m2.
Situé à l'étage noble, 2ème étage sur 6 d'un superbe immeuble haussmannien, cet élégant 5 pièces bénéficie d'un charme intemporel avec son parquet en point de Hongrie et sa vue dégagée avec une hauteur sous plafond de 3m10.

Il se compose de :
Une belle entrée desservant les différentes pièces
Un séjour lumineux, avec une salle à manger attenante, idéal pour recevoir
Quatre chambres spacieuses, dont trois avec balcons offrant une vue dégagée sur le boulevard
Une cuisine dinatoire avec un espace buanderie
Une salle de bain avec baignoire et douche
Des WC séparés pour plus de confort
Une double cave en sous-sol, idéale pour le stockage

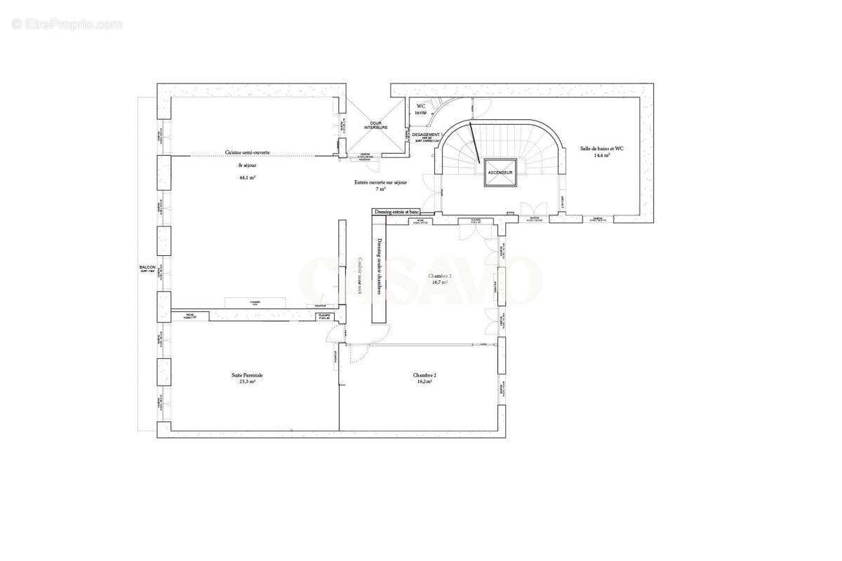
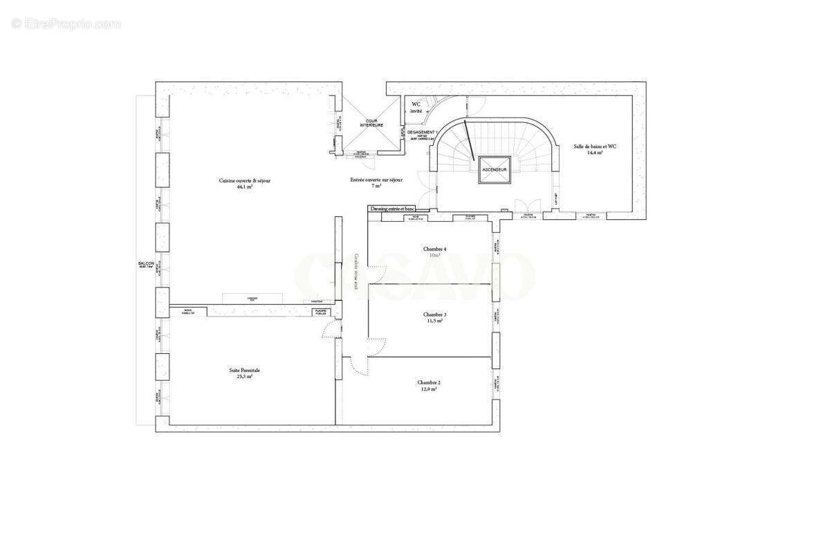
Un architecte a étudié deux plans modifiés (plans en fin d'annonce) optimisant les volumes et la distribution des espaces. Ce projet propose un espace de vie de 44m², baigné de lumière grâce à trois fenêtres donnant sur le boulevard avec possibilité d'avoir une cuisine ouverte ou fermée. Il inclut également une suite parentale de 23m² avec salle d'eau, ainsi que trois chambres côté cour (10m², 11,5m² et 12,9m²) ou 2 chambres côté cour (16,7m2 et 16,2m2) garantissant calme et confort. Une spacieuse salle de bain de 14m², équipée d'une baignoire et d'une douche, complète ce réagencement, offrant un cadre de vie optimal pour une famille.

Idéalement situé boulevard de Magenta, cet appartement se trouve à la croisée de quartiers vivants et recherchés :
À deux pas du canal Saint-Martin, offrant une multitude de commerces, restaurants et espaces verts,
Proximité immédiate des gares, facilitant les déplacements en Île-de-France et vers l'international,

Quartier dynamique en pleine évolution, parfait pour un investissement patrimonial ou une résidence principale.
L'adresse est extrêmement bien desservie :
Métro : Stations Gare du Nord (Lignes 4 & 5, RER B, D & E), Poissonnière (Ligne 7), Château d'Eau (Ligne 4) et Jacques Bonsergent (Ligne 5) accessibles en quelques minutes à pied.
RER & Transilien : Accès direct aux gares du Nord et de l'Est, facilitant les déplacements en région parisienne et vers d'autres grandes villes.

DPE D - 330€ charges/mois - 2083€ taxe foncière

Avec son charme haussmannien, ses volumes généreux et son emplacement stratégique, cet appartement est une opportunité idéale pour les amoureux de Paris ou pour un investissement à fort potentiel.

Ce bien est présenté par Casavo.

Casavo presents for sale a magnificent Haussmann-style apartment offering 134 sqm (Carrez law) and 144 sqm total floor area, complete with a 7 sqm continuous balcony.
Located on the noble floor (2nd out of 6) of a splendid Haussmannian building, this elegant five-room residence embodies timeless Parisian charm, featuring herringbone parquet floors, 3.10 m high ceilings, and unobstructed views over the boulevard.

The apartment comprises:
– A spacious entrance hall connecting the main rooms
– A bright double reception area with an adjoining dining room, ideal for entertaining
– Four large bedrooms, three of which open onto balconies with open views
– A dining kitchen with a separate laundry area
– A bathroom with both bathtub and shower
– Separate toilets for added comfort
– A double cellar in the basement, perfect for storage

An architect-designed reconfiguration project (plans available at the end of the listing) proposes two layout options optimizing space and flow:
– A 44 sqm living area, bathed in light from three large windows overlooking the boulevard, with the possibility of an open or closed kitchen
– A 23 sqm master suite with its own bathroom
– Either three courtyard-side bedrooms (10 sqm, 11.5 sqm, 12.9 sqm) or two larger ones (16.7 sqm and 16.2 sqm) ensuring calm and privacy
– A spacious 14 sqm bathroom, featuring both bathtub and walk-in shower, completing this refined and functional redesign

Prime location – Boulevard de Magenta, at the crossroads of some of Paris's most vibrant and desirable districts:
– Just steps from the Canal Saint-Martin, with its boutiques, restaurants, and leafy promenades
– Immediate access to Gare du Nord and Gare de l'Est, offering convenient connections throughout Île-de-France and international destinations

Transport links:
– Metro: Gare du Nord (Lines 4 & 5, RER B, D & E), Poissonnière (Line 7), Château d'Eau (Line 4), and Jacques Bonsergent (Line 5) within minutes on foot
– RER & Transilien: Direct connections to regional and national rail networks

Energy rating: D
Monthly charges: €330
Property tax: €2,083 per year

With its classic Haussmannian allure, generous proportions, and strategic location, this apartment represents an ideal opportunity—whether as a prestigious family residence or a high-value investment in the heart of Paris.

This property is presented by Casavo.

Intéressé par ce bien ? Plus d'informations sur le site de Casavo.
Voir plus

Référence: 26738
Bien en copropriété. Nombre de lots : 17. Charges de copropriété : 330 €.
Honoraires d'agence de 3.04% à la charge de l'acquéreur
DPE
A
B
C
D
E
F
G
GES
A
B
C
D
E
F
G

Prêt immobilier

Vous souhaitez connaître votre capacité d’emprunt et trouver le meilleur crédit immobilier ?
Réaliser une simulation gratuite

Appartement à PARIS-10E
Appartement à PARIS-10E
Appartement à PARIS-10E
Appartement à PARIS-10E
Appartement à PARIS-10E
Appartement à PARIS-10E
Appartement à PARIS-10E
Appartement à PARIS-10E
Appartement à PARIS-10E
Appartement à PARIS-10E
Appartement à PARIS-10E
Appartement à PARIS-10E
Appartement à PARIS-10E
Appartement à PARIS-10E
Appartement à PARIS-10E
Appartement à PARIS-10E
Appartement à PARIS-10E
Ce site est protégé par reCAPTCHA la Politique de confidentialité et les Conditions d’utilisation de Google s’appliquent.
Obtenir un prêt immobilier au meilleur taux ?

En poursuivant votre navigation sans modifier vos paramètres, vous acceptez l'utilisation de cookies susceptibles de réaliser des statistiques de visite. Cliquez ici pour plus d'informations