Bénéficiez des services de nos partenaires locaux soigneusement sélectionnés
pour vous accompagner dans votre parcours d'achat immobilier

Vente appartement 3 pièces de 50m² - 92300 levallois-perret

— Levallois-Perret 92300 —
500 000 €
49 m²
3 pièces
ascenseur

Nos partenaires locaux
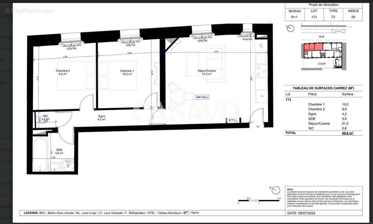
Casavo vous propose à la vente un trois pièces de 49,6m2 entièrement refait à neuf (DPE C) situé au 1è étage par ascenseur. Quartier Marjolin, dans un immeuble de 1889 qui a été entièrement réhabilité en 2025 : parties communes, façades, toiture, réseaux techniques, isolation par l'extérieur.

L'appartement a été entièrement restructuré par un architecte mêlant esthétisme, optimisation des espaces et qualité des matériaux. Il se compose d'une pièce de vie de 21,m2 avec une cuisine ouverte, équipée et aménagée, deux chambres (10m2 & 9,8m2), une salle de bain et des toilettes indépendants. Vous bénéficiez d'une cave saine de 4m2 et d'un local vélos/poussettes.
Charges Copro 140€/mois.

Un quartier calme et résidentiel réputé pour ses nombreux commerces, restaurants et services.
Ce quartier dynamique allie convivialité et praticité avec toutes les écoles et collèges.
Parking à proximité immédiate (3min à pied) Levaparc Marjolin (125€/mois).

Transports :
Ligne 3 / Anatole France (7min à pied) & Transilien L / Gare Clichy-Levallois (4min à pied)
Trajet Paris Pont Cardinet (2min) et Gare Saint-Lazare (6min)

Contactez-nous dès maintenant pour organiser une visite et découvrir ce petit coin de paradis urbain !

Ce bien est commercialisé par Casavo

Intéressé par ce bien ? Plus d'informations sur le site de Casavo.
Voir plus

Référence: 50306
Bien en copropriété. Nombre de lots : 22. Charges de copropriété : 140 €.
Honoraires d'agence de 3.6% à la charge de l'acquéreur
DPE
A
B
C
D
E
F
G
GES
A
B
C
D
E
F
G

Prêt immobilier

Vous souhaitez connaître votre capacité d’emprunt et trouver le meilleur crédit immobilier ?
Réaliser une simulation gratuite

Appartement à LEVALLOIS-PERRET
Appartement à LEVALLOIS-PERRET
Appartement à LEVALLOIS-PERRET
Appartement à LEVALLOIS-PERRET
Appartement à LEVALLOIS-PERRET
Appartement à LEVALLOIS-PERRET
Appartement à LEVALLOIS-PERRET
Ce site est protégé par reCAPTCHA la Politique de confidentialité et les Conditions d’utilisation de Google s’appliquent.
Obtenir un prêt immobilier au meilleur taux ?

En poursuivant votre navigation sans modifier vos paramètres, vous acceptez l'utilisation de cookies susceptibles de réaliser des statistiques de visite. Cliquez ici pour plus d'informations