Bénéficiez des services de nos partenaires locaux soigneusement sélectionnés
pour vous accompagner dans votre parcours d'achat immobilier

Maison familiale à fort potentiel

— Bouy 51400 —
339 000 €
183 m² / 1 240 m²
7 pièces
parkingbalcon/terrasse

Nos partenaires locaux
Sur la commune de Bouy (51400), dans une rue peu passante, avec la proximité de l'école, à 18 minutes de Châlons en Champagne et 30 minutes de Reims, dans un village où il fait bon vivre.

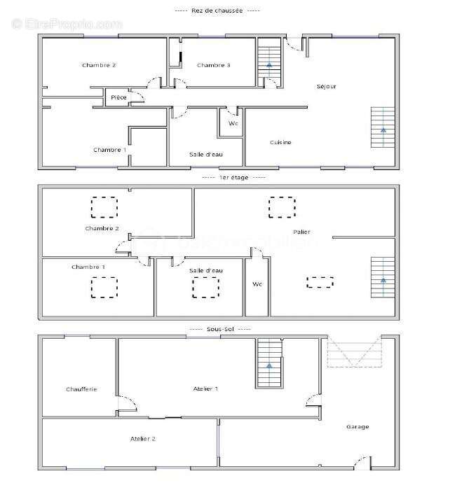
Venez découvrir cette jolie maison familiale individuelle à fort potentiel, sans gros travaux sur sous sol total, d'environ 211m² de surface au sol ( 183m² de surface habitable), bénéficiant du confort d'un plain-pied, érigée sur une parcelle totalement clôturée de 1240m².

Vous y découvrirez une pièce de vie de plus de 50m² avec une cuisine équipée semi ouverte, un WC séparé, une salle de bain comprenant une baignoire d'angle, deux vasques et trois grandes chambres (17,29/ 12,49 et 12.39m²).

A l'étage vous profiterez d'une spacieuse pièce palière (avec le possibilité de créer deux chambres supplémentaires), un WC séparé suspendu, une salle de douche et deux chambres.

Le sous sol total est divisé en quatre parties (une partie stationnement, une buanderie, une chaufferie et un atelier).

Concernant les extérieurs vous apprécierez profiter des longues soirées d'été en terrasse, le bien comprend également une dépendance avec une dalle béton et une pergola.

Les informations complémentaires:
- chaudière à granulés avec programmateur - Décembre 2019
- couverture + vélux - 2018
- VMC auto-réglable
- ballon électrique 300L
- porte du garage + portail motorisés
- terrasse sur pilotis
- taxe foncière 2024 - 1317euros
- tout à l'égout
- piscine hors sol
- bien disponible en Juillet 2026

Envie de découvrir cette jolie maison familiale sans gros travaux je vous invite à me contacter dès maintenant afin d'organiser une visite.

Cette annonce référence 313436 vous est présentée par votre agent commercial BSK Immobilier GWENAELLE DEFRANCE (EI) immatriculé au RSAC de CHALONS-EN-CHAMPAGNE (51000) sous le numéro 8913[Coordonnées masquées].

Prix du bien : 339 000,00 €
Les honoraires d'agence sont à la charge du vendeur.

A propos des performances énergétiques :
Date de réalisation du diagnostic énergétique : 26/09/2025
Score DPE : 208 kWhEP/m²/an
Score GES : 6 kgepCO2/m²/an
Montant estimé des dépenses annuelles d'énergie pour un usage standard : entre 3190.00 € et 4360.00 € par an. Prix moyens des énergies indexés sur l'année 2023 (abonnements compris).

Les informations sur les risques auxquels ce bien est exposé sont disponibles sur le site Géorisques : www.georisques.gouv.fr
Voir plus

Référence: 313436
Honoraires à la charge du vendeur.
DPE
A
B
C
D
E
F
G
GES
A
B
C
D
E
F
G

Prêt immobilier

Vous souhaitez connaître votre capacité d’emprunt et trouver le meilleur crédit immobilier ?
Réaliser une simulation gratuite

Maison à BOUY
Maison à BOUY
Maison à BOUY
Maison à BOUY
Maison à BOUY
Maison à BOUY
Maison à BOUY
Maison à BOUY
Maison à BOUY
Maison à BOUY
Maison à BOUY
Maison à BOUY
Maison à BOUY
Maison à BOUY
Maison à BOUY
Maison à BOUY
Maison à BOUY
Maison à BOUY
Maison à BOUY
Maison à BOUY
Ce site est protégé par reCAPTCHA la Politique de confidentialité et les Conditions d’utilisation de Google s’appliquent.
Obtenir un prêt immobilier au meilleur taux ?

En poursuivant votre navigation sans modifier vos paramètres, vous acceptez l'utilisation de cookies susceptibles de réaliser des statistiques de visite. Cliquez ici pour plus d'informations