Bénéficiez des services de nos partenaires locaux soigneusement sélectionnés
pour vous accompagner dans votre parcours d'achat immobilier

Appartement

— Boulogne-Billancourt 92100 —
935 000 €
82 m²
3 pièces
parkingbalcon/terrasseascenseur

Nos partenaires locaux
92100 – EXCLUSIVITÉ – BOULOGNE-BILLANCOURT
RARE
QUARTIER PRINCES - MARMOTTAN - 3 PIÈCES - 2 CHAMBRES – 82 M2
GRANDE TERRASSE 43,5 M2, 3 BALCONS – EXPOSÉ SUD/ EST,

effiCity, l'agence qui estime votre bien en ligne, vous propose à Boulogne-Billancourt, dans le QUARTIER PRINCES - MARMOTTAN, ce bel appartement d'environ 69 m2 carrez.

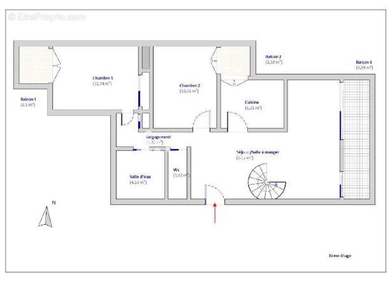
L'appartement, au 3ème et dernier étage, à proximité immédiate de l'école Dupanloup, de Roland-Garros et du Parc des Princes, se compose comme suit :
- 1 entrée desservant le séjour, la cuisine, les chambres, la salle de douche, 1 WC, l'accès à la terrasse
- 1 grand séjour/ salle à manger lumineux d'environ 27 m2, sur balcon de 6 m2 exposé sud/ est
- 1 cuisine séparée et équipée
- 2 belles chambres avec balcons
- 1 salle de douche
- 1 WC séparé
- Placards

1 très grande TERRASSE DE 43,5 M2, vue à 360° (Roland-Garros, Immeuble Le Corbusier..)
3 balcons

Appartement en parfait état, rénové en 2025
Ravalement en cours (fin prévue en mars 2026)
Volets et double-vitrage
Chauffage et eau collectifs
Ascenseur
Gardien

Commerces à quelques pas,
Proche des écoles (maternelle, primaire, collège, lycée), Dupanloup

Transports :
- Bus
- Métro M9/ M10 Michel-Ange Molitor
- Métro M10 Porte d'Auteuil

De plus, 1 place de stationnement boxée et une cave en sous-sol complètent ce bien.

Pour plus d'informations ou pour organiser une visite, contactez-moi par téléphone au [Coordonnées masquées] ou par mail à [Coordonnées masquées]
Les informations sur les risques auxquels ce bien est exposé sont disponibles sur le site Georisque : georisques. gouv. fr
Mikael Muraben - EI - est Agent Commercial mandataire en immobilier, immatriculé au Registre Spécial des Agents Commerciaux du Tribunal de Commerce de Nanterre sous le n°918798000.
Siège social du mandant : effiCity, 48 avenue de Villiers - 75017 PARIS - Société par Actions Simplifiée, société au capital de 132 373,05 euros, immatriculée au RCS Paris 497 617 746 et titulaire de la Carte professionnelle CPI 75[Coordonnées masquées]02 025 - CCI Paris IDF - Caisse de Garantie : GALIAN Assurances 89 rue de la Boétie 75008 Paris
Voir plus

Référence: 200346
Bien en copropriété. Nombre de lots : 176. Charges de copropriété : 472 €.
Honoraires d'agence de 4% à la charge de l'acquéreur
Barème des honoraires
DPE
A
B
C
D
E
F
G
GES
A
B
C
D
E
F
G

Prêt immobilier

Vous souhaitez connaître votre capacité d’emprunt et trouver le meilleur crédit immobilier ?
Réaliser une simulation gratuite

Appartement à BOULOGNE-BILLANCOURT
Appartement à BOULOGNE-BILLANCOURT
Appartement à BOULOGNE-BILLANCOURT
Appartement à BOULOGNE-BILLANCOURT
Appartement à BOULOGNE-BILLANCOURT
Appartement à BOULOGNE-BILLANCOURT
Appartement à BOULOGNE-BILLANCOURT
Appartement à BOULOGNE-BILLANCOURT
Appartement à BOULOGNE-BILLANCOURT
Appartement à BOULOGNE-BILLANCOURT
Appartement à BOULOGNE-BILLANCOURT
Appartement à BOULOGNE-BILLANCOURT
Appartement à BOULOGNE-BILLANCOURT
Appartement à BOULOGNE-BILLANCOURT
Ce site est protégé par reCAPTCHA la Politique de confidentialité et les Conditions d’utilisation de Google s’appliquent.
Obtenir un prêt immobilier au meilleur taux ?

En poursuivant votre navigation sans modifier vos paramètres, vous acceptez l'utilisation de cookies susceptibles de réaliser des statistiques de visite. Cliquez ici pour plus d'informations