Bénéficiez des services de nos partenaires locaux soigneusement sélectionnés
pour vous accompagner dans votre parcours d'achat immobilier

Maison de ville 116 m2 - cannes, petit juas

— Cannes 06400 —
680 000 €
116 m² / 232 m²
6 pièces
jardin

Nos partenaires locaux
Située dans le secteur du Bas Petit Juas, à proximité de la gare et du centre-ville, cette maison avec cour est édifiée sur un terrain clos et arboré de 232 m².

La propriété est organisée en deux appartements indépendants, chacun disposant de sa propre entrée.

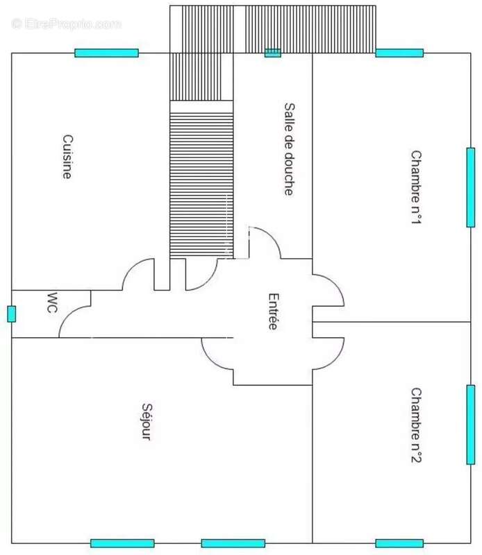
Le premier appartement, en rez-de-chaussée, d’une superficie de 58 m², comprend une entrée, un séjour, une cuisine, une chambre, une salle de bain ainsi que des toilettes séparées.

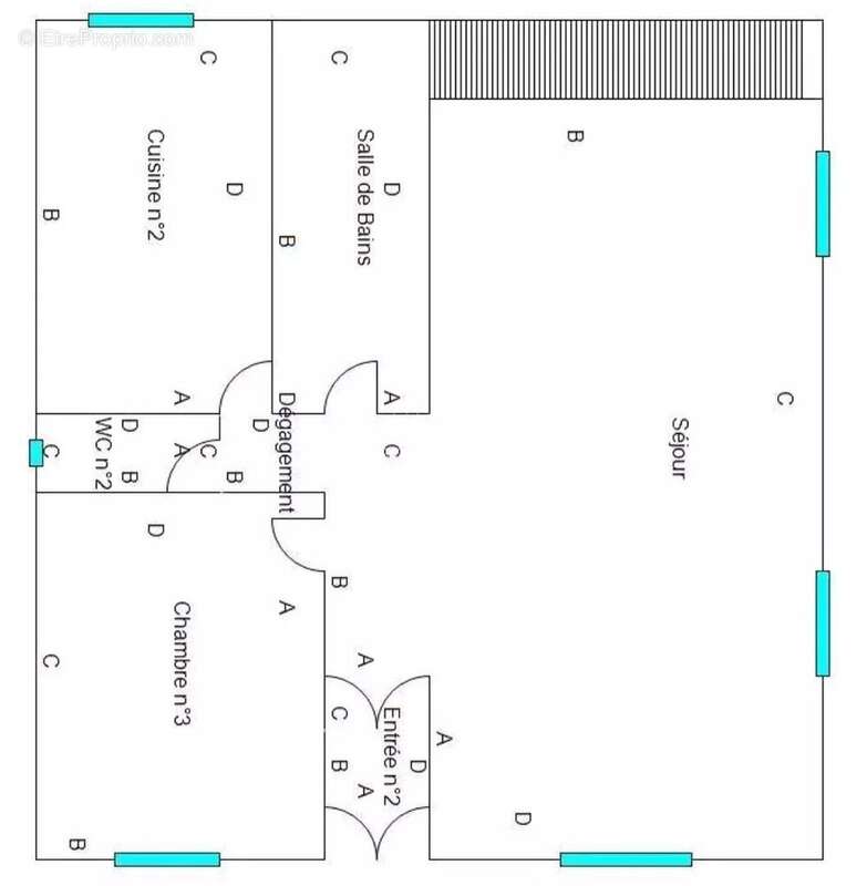
Le second appartement, situé à l’étage et récemment rénové, développe une surface de 57 m². Il se compose d’une pièce de vie, de deux chambres, d’une cuisine, d’une salle d’eau et de toilettes.

Plusieurs annexes viennent compléter le bien : espaces de stockage, cave et cabanon de jardin.
La toiture a été refaite récemment.

Possibilité de location d’une place de parking en supplément.

Pour toute information complémentaire ou pour organiser une visite, veuillez contacter Gordana.
RSAC n° 908 776 131

« Les informations sur les risques auxquels ce bien est exposé sont disponibles sur le site Géorisques : georisques.gouv.fr ».
Voir plus

Référence: 86488956
Barème des honoraires
DPE
A
B
C
D
E
F
G
GES
A
B
C
D
E
F
G

Prêt immobilier

Vous souhaitez connaître votre capacité d’emprunt et trouver le meilleur crédit immobilier ?
Réaliser une simulation gratuite

Maison à CANNES
Maison à CANNES
Maison à CANNES
Maison à CANNES
Maison à CANNES
Maison à CANNES
Maison à CANNES
Maison à CANNES
Maison à CANNES
Maison à CANNES
Maison à CANNES
Maison à CANNES
Maison à CANNES
Maison à CANNES
Maison à CANNES
Maison à CANNES
Maison à CANNES
Maison à CANNES
Maison à CANNES
Maison à CANNES
Maison à CANNES
Ce site est protégé par reCAPTCHA la Politique de confidentialité et les Conditions d’utilisation de Google s’appliquent.
Obtenir un prêt immobilier au meilleur taux ?

En poursuivant votre navigation sans modifier vos paramètres, vous acceptez l'utilisation de cookies susceptibles de réaliser des statistiques de visite. Cliquez ici pour plus d'informations