Bénéficiez des services de nos partenaires locaux soigneusement sélectionnés
pour vous accompagner dans votre parcours d'achat immobilier

Paris 17 - plaine monceau - rue jouffroy d'abbans

— Paris-17e 75017 —
950 000 €
97 m²
4 pièces

Nos partenaires locaux
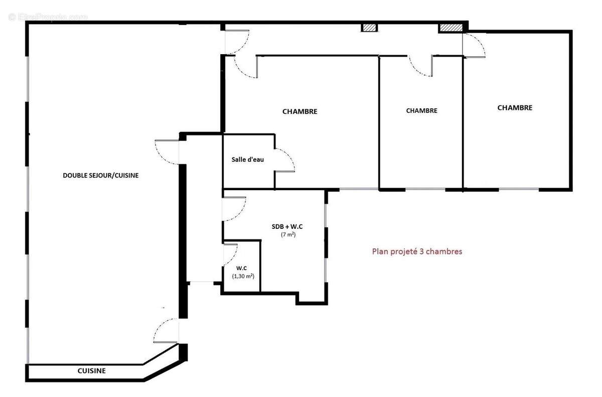
Idéalement situé dans un bel immeuble en pierre de taille, cet appartement familial au 1ᵉʳ étage offre charme et potentiel. Il se compose actuellement d’une entrée, d’un salon, d’un séjour avec cuisine ouverte, de deux chambres et d’une salle de bains avec W.C. Possibilité d'aménagement en 3 ou 4 chambres.
Appartement à fort potentiel.
Une cave complète ce bien.
PROXIMITÉ MÉTRO ET COMMERCES - PLAN MODULABLE - FORT POTENTIEL - SECTORISATION CARNOT

Référence: 681
Barème des honoraires
DPE
A
B
C
D
E
F
G
GES
A
B
C
D
E
F
G

Prêt immobilier

Vous souhaitez connaître votre capacité d’emprunt et trouver le meilleur crédit immobilier ?
Réaliser une simulation gratuite

Appartement à PARIS-17E
Appartement à PARIS-17E
Appartement à PARIS-17E
Appartement à PARIS-17E
Appartement à PARIS-17E
Appartement à PARIS-17E
Appartement à PARIS-17E
Appartement à PARIS-17E
Appartement à PARIS-17E
Appartement à PARIS-17E
Ce site est protégé par reCAPTCHA la Politique de confidentialité et les Conditions d’utilisation de Google s’appliquent.
Obtenir un prêt immobilier au meilleur taux ?

En poursuivant votre navigation sans modifier vos paramètres, vous acceptez l'utilisation de cookies susceptibles de réaliser des statistiques de visite. Cliquez ici pour plus d'informations