Bénéficiez des services de nos partenaires locaux soigneusement sélectionnés
pour vous accompagner dans votre parcours d'achat immobilier

Voir tous les partenaires locaux

Paris 6 - rue saint-andre des arts

— Paris-6e 75006 —
3 685 000 €
165 m²
5 pièces
balcon/terrasseascenseur

Nos partenaires locaux
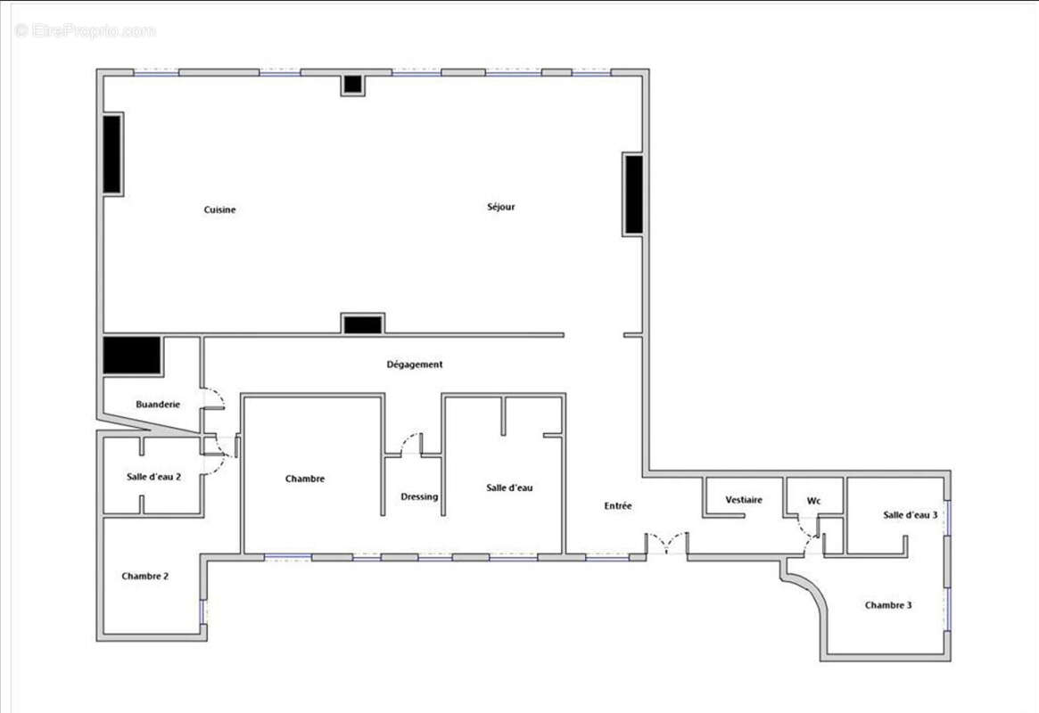
Votre agence FredéLion à le privilège de vous présenter ce magnifique appartement familial de 165,11m2 en parfait état au coeur du 6ème arrondissement de Paris dans un immeuble de grand standing datant 1871. Composé d'une entrée, de 3 chambres dont une avec balcon, de 3 salle d'eaux, de 3 wc, de nombreux rangements, d'un grand séjour et d'une salle à manger avec cuisine américaine entièrement équipée et aménagée donnant accès à un grand balcon filant. Ce bien traversant et ensoleillé aux prestations de qualités vous séduira à coups sur. Une grande cave complète le bien. Prix de vente : 3 685 000 euros FAI Copropriété de 38 lots - dont 20 lots habitation. (Pas de procédure en cours). Charges annuelles : 5053.72 euros.
Voir plus

Bien en copropriété. Nombre de lots : 38. Charges de copropriété : 5053 €.
Honoraires à la charge du vendeur.
DPE
A
B
C
D
E
F
G
GES
A
B
C
D
E
F
G

Prêt immobilier

Vous souhaitez connaître votre capacité d’emprunt et trouver le meilleur crédit immobilier ?
Réaliser une simulation gratuite

Appartement à PARIS-6E
Appartement à PARIS-6E
Appartement à PARIS-6E
Appartement à PARIS-6E
Appartement à PARIS-6E
Appartement à PARIS-6E
Appartement à PARIS-6E
Appartement à PARIS-6E
Ce site est protégé par reCAPTCHA la Politique de confidentialité et les Conditions d’utilisation de Google s’appliquent.
Obtenir un prêt immobilier au meilleur taux ?

En poursuivant votre navigation sans modifier vos paramètres, vous acceptez l'utilisation de cookies susceptibles de réaliser des statistiques de visite. Cliquez ici pour plus d'informations