Gare appartement t3 bureau cabinet local commercial 52m2 parking

— Le Mans 72100 —
82 600 €
52 m²
3 pièces
ascenseur

Alain RANNOU vous propose ce bien :

Idéal pour y installer votre activité professionnelle libérale ou le louer en espace de coworking, mais aussi pour le transformer en T3 2 chambres voire 3 chambres pour du locatif très rentable.
Important : le bail en cour de 500€/mois s'arrêtera pour la vente. Néanmoins, si vous souhaitez y faire des travaux , il y a une opportunité de prolonger le bail jusqu'à la fin des travaux via un accord spécifique. Ainsi vous toucherez un loyer de 500€ jusqu'à la fin de vos travaux.

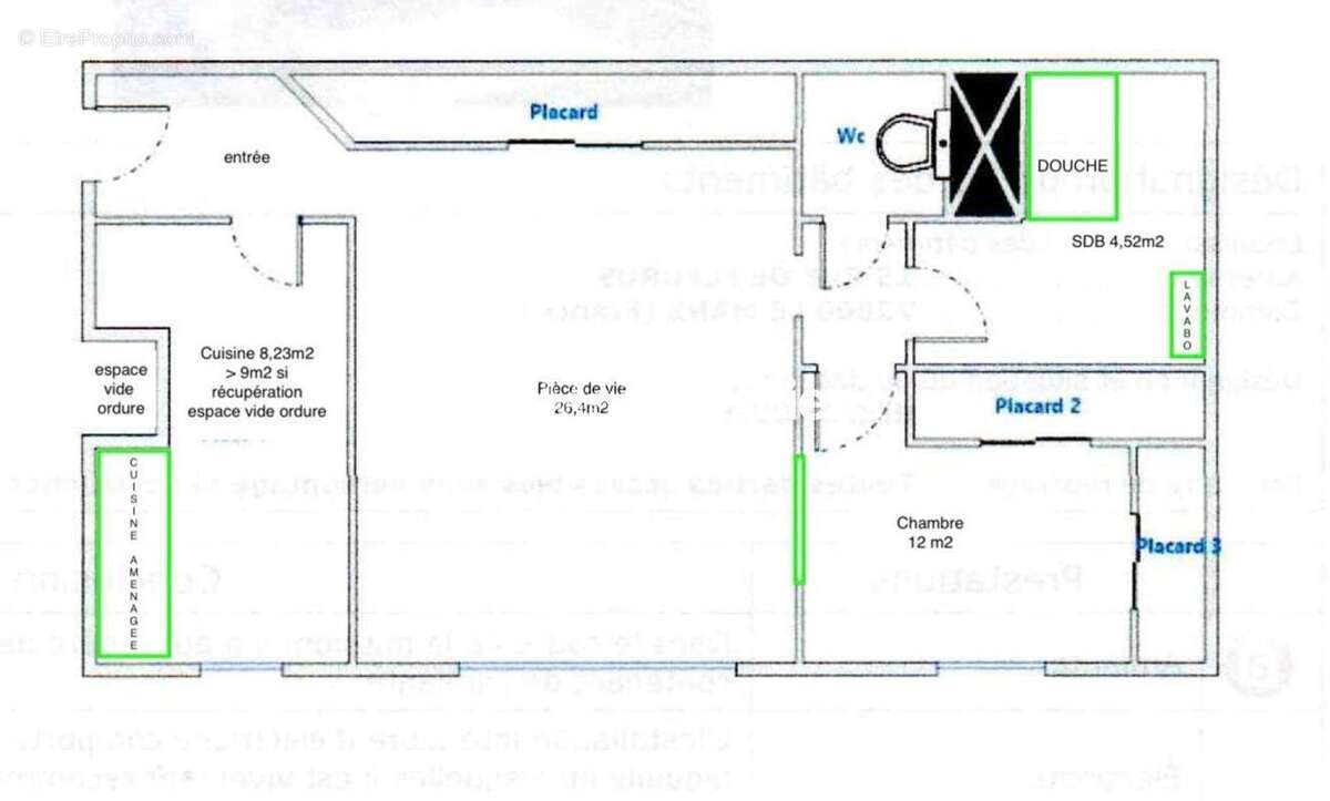
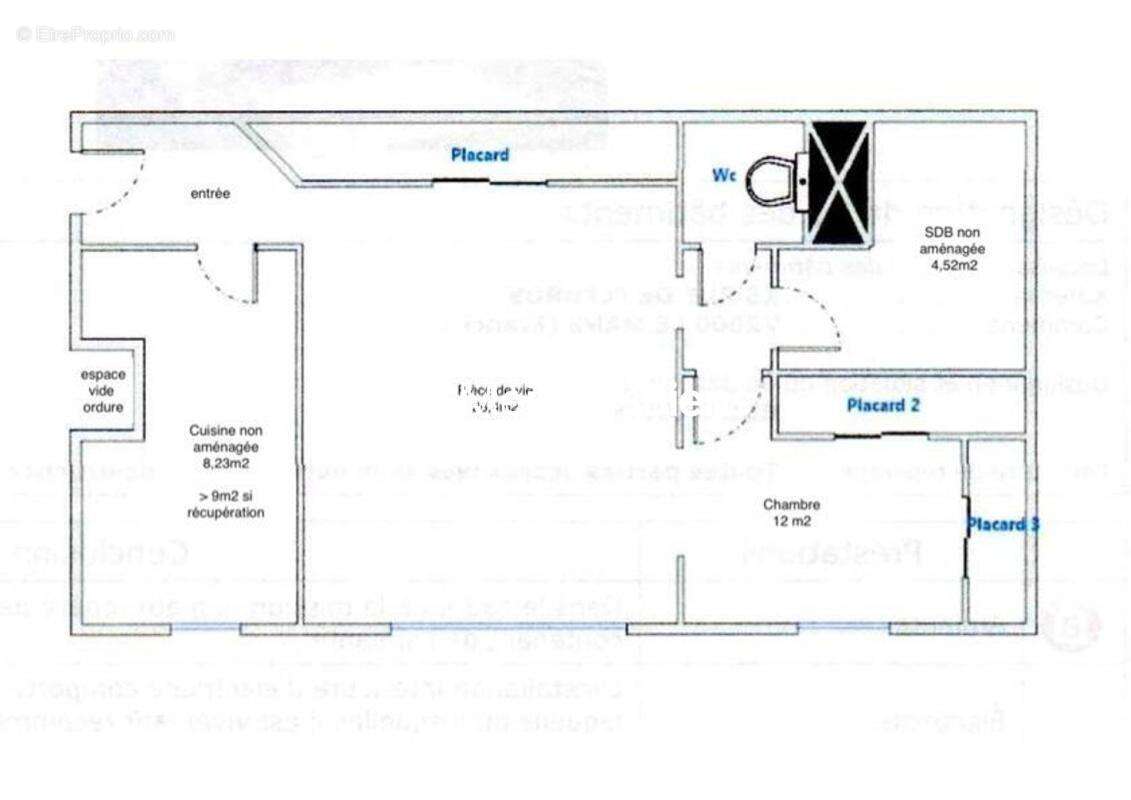
Vous recherchez un local professionnel à quelques minutes à pieds de la gare TGV du Mans, c'est à dire à moins d'une heure de Paris Montparnasse ? Cet appartement déjà agencé pour héberger une activité professionnelle offre de multiples atouts qui vous permettront de démarrer rapidement votre activité. Vous pouvez y installer un bureau, votre activité libérale ou un espace de coworking.

Au calme, au rdc d'une petite résidence sécurisée des années 70, il dispose de 3 zones de travail de 12, 26 et 9m2 équipées. Vous pourrez adopter des configurations multiples type " 2 bureaux fermés-1 open space/salle de réunion " ou "1 salle d'attente-1 salle de réception-1 salle d'examen". L'orientation sud ouest lui amène une belle lumière et rend l'atmosphère plutôt cosy. De nombreux placards intégrés aux murs offrent des espaces de rangement XL (5,2m2 au sol) . La salle de bain de 4,5m2 a été transformée en espace photocopie et stockage papeterie, mais peut être facilement réaménagée en espace cafétéria. WC indépendant avec lave main. La cave(3,4m2), au -1 via ascenseur, vous apportera un espace de stockage supplémentaire ou pourra servir de local vélo, accessible rapidement de l'extérieur en toute sécurité. Parking gratuit dans la rue.

Si votre projet est de redonner à cet appartement son usage originel d'habitation, il vous faudra prévoir l'aménagement de la salle de bain et de la cuisine, sans travaux lourds car tous les raccordements/compteurs ont été maintenus en place. Plusieurs configurations sont possibles: 1chambre/1cuisine fermée/1 grand salon-séjour , 2chambres/1 cuisine ouverte sur salon-séjour, 3 chambres/1 coin cuisine (pour location type airb&b), selon l'usage que vous souhaitez en faire.

Tout les transports sont à proximité: gare, bus, tramway ligne T1(station Leclerc Fleurus) et T2 . Si nécessaire, vos clients, collaborateurs ou locataires pourront se garer dans les rues avoisinantes (parking gratuit) ou sur la place de parking privative avec accès sécurisé et vidéo surveillance qui peut être vendue avec l'appartement pour un total de 95 600€. Le parking, avec barrière, se trouve à l'arrière du bâtiment, on y accède via une impasse très calme.

Pas de travaux de copropriété à venir. La motorisation de l'ascenseur ThyssenKrupp a été refaite il y a 3 ans. Vous noterez dès le hall d'entrée que la résidence est de bonne facture et bien entretenue. Taxe foncière 1100€/an et charges de copropriété 1950€/an.

Ce bien vous est proposé par Alain Rannou [Coordonnées masquées].

N'hésitez pas à me contacter pour toute information complémentaire.\nLes informations sur les risques auxquels ce bien est exposé sont disponibles sur le site Géorisques : www.georisques.gouv.fr
Voir plus

Référence: MB5551735426
DPE
A
B
C
D
E
F
G
GES
A
B
C
D
E
F
G

Prêt immobilier

Vous souhaitez connaître votre capacité d’emprunt et trouver le meilleur crédit immobilier ?
Réaliser une simulation gratuite

Appartement à LE MANS
Appartement à LE MANS
Appartement à LE MANS
Appartement à LE MANS
Appartement à LE MANS
Appartement à LE MANS
Appartement à LE MANS
Appartement à LE MANS
Appartement à LE MANS
Appartement à LE MANS
Appartement à LE MANS
Appartement à LE MANS
Appartement à LE MANS
Appartement à LE MANS
Appartement à LE MANS
Appartement à LE MANS
Appartement à LE MANS
Ce site est protégé par reCAPTCHA la Politique de confidentialité et les Conditions d’utilisation de Google s’appliquent.
Obtenir un prêt immobilier au meilleur taux ?

En poursuivant votre navigation sans modifier vos paramètres, vous acceptez l'utilisation de cookies susceptibles de réaliser des statistiques de visite. Cliquez ici pour plus d'informations