Bénéficiez des services de nos partenaires locaux soigneusement sélectionnés
pour vous accompagner dans votre parcours d'achat immobilier

Appartement 50m² à villefranche-sur-saone

— Villefranche-Sur-Saone 69400 —
169 000 €
51 m²
2 pièces
parkingbalcon/terrasseascenseuraccès handicapé

Nos partenaires locaux
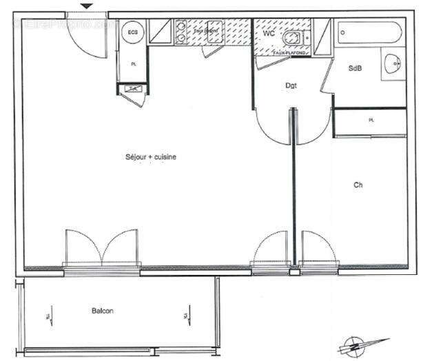
T2 SPACIEUX totalement rénové avec balcon et parking privatif en sous-sol - Vous recherchez un appartement moderne, rénové et parfaitement situé ?
Ce T2, à seulement 10 à 15 minutes à pied de la rue Nationale et de la gare, offre un cadre de vie pratique, calme et recherché.

Dès votre arrivée, vous serez séduit par une pièce de vie lumineuse de 30 m², pensée pour optimiser chaque espace. Plusieurs aménagements sont possibles : un coin salon confortable, un espace repas convivial et même un bureau si vous le souhaitez.
La cuisine, légèrement en retrait, est entièrement équipée avec des appareils Bosch tout juste installés : four, plaque vitrocéramique, hotte et lave-vaisselle.

Le séjour s'ouvre sur un balcon de 7 m² exposé Est, offrant une vue dégagée et apaisante sur les espaces verts de la résidence, un véritable atout pour profiter de moments tranquilles. L'espace nuit, parfaitement séparé, comprend une chambre avec dressing mural, une salle de bains fonctionnelle et des toilettes indépendantes.
Pour un confort optimal :
- une place de parking privative en sous-sol,
- une résidence récente (2008), sécurisée, bien entretenue, bien isolée, avec local vélos fermé et charges maîtrisées.

Aucun travaux à prévoir : l'appartement est comme neuf. Vous n'avez plus qu'à installer vos meubles et profiter de votre nouveau lieu de vie.

Un bien rare dans un secteur central et calme, offrant un excellent compromis entre tranquillité et proximité des commodités.

Contactez-nous dès maintenant pour organiser une visite. Honoraires à la charge du vendeur. Montant estimé des dépenses annuelles d'énergie pour un usage standard : entre 640 et 940 euros. Prix moyens des énergies indexés en 2021.
Voir plus

Référence: 128c - D23
DPE
A
B
C
D
E
F
G
GES
A
B
C
D
E
F
G

Prêt immobilier

Vous souhaitez connaître votre capacité d’emprunt et trouver le meilleur crédit immobilier ?
Réaliser une simulation gratuite

  - Appartement à VILLEFRANCHE-SUR-SAONE
  - Appartement à VILLEFRANCHE-SUR-SAONE
  - Appartement à VILLEFRANCHE-SUR-SAONE
  - Appartement à VILLEFRANCHE-SUR-SAONE
  - Appartement à VILLEFRANCHE-SUR-SAONE
  - Appartement à VILLEFRANCHE-SUR-SAONE
  - Appartement à VILLEFRANCHE-SUR-SAONE
  - Appartement à VILLEFRANCHE-SUR-SAONE
  - Appartement à VILLEFRANCHE-SUR-SAONE
  - Appartement à VILLEFRANCHE-SUR-SAONE
  - Appartement à VILLEFRANCHE-SUR-SAONE
Ce site est protégé par reCAPTCHA la Politique de confidentialité et les Conditions d’utilisation de Google s’appliquent.
Obtenir un prêt immobilier au meilleur taux ?

En poursuivant votre navigation sans modifier vos paramètres, vous acceptez l'utilisation de cookies susceptibles de réaliser des statistiques de visite. Cliquez ici pour plus d'informations