Bénéficiez des services de nos partenaires locaux soigneusement sélectionnés
pour vous accompagner dans votre parcours d'achat immobilier

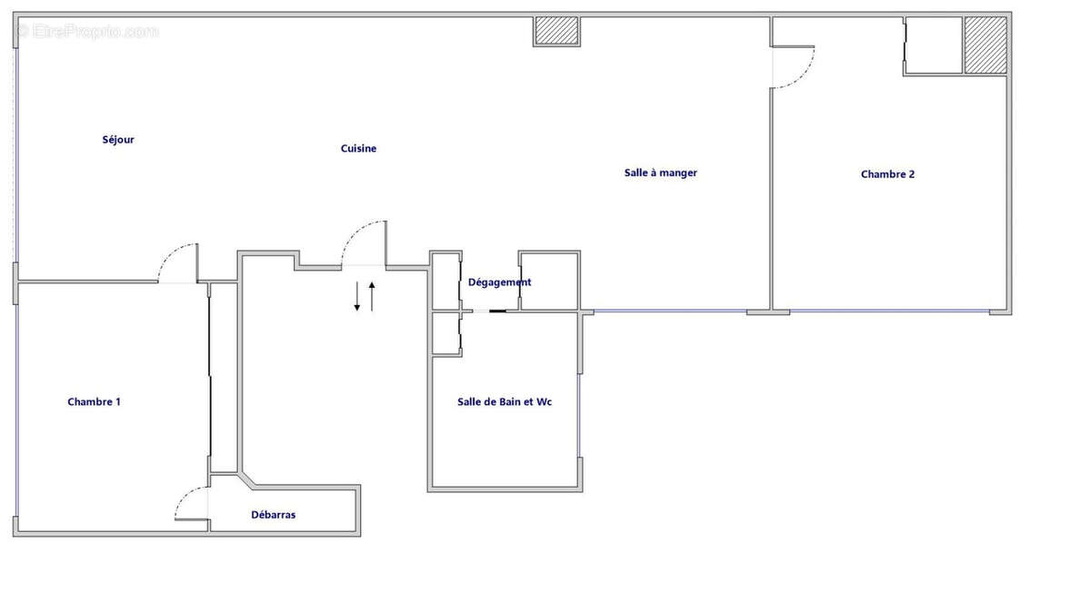
Appartement paris 3 pièce(s) 74 m2

— Paris-11e 75011 —
570 000 €
74 m²
3 pièces

Nos partenaires locaux
Proche Métro Voltaire, dans un immeuble ancien bien entretenu, nous vous proposons un appartement trois pièces de 74m². Situé au 1er étage, celui-ci se compose d'une belle pièce de vie traversante, avec salle à manger, cuisine américaine aménagée et salon, de deux chambres et d'une salle de bains avec WC. Le bien saura vous séduire par son calme, sa luminosité, son plan sans perte de place et son très bon état général. A visiter rapidement. Une cave en complément. (3.64 % honoraires TTC à la charge de l'acquéreur.) Copropriété de 32 lots - dont 15 lots habitation. (Pas de procédure en cours). Charges annuelles : 1550.12 euros.
Voir plus

Référence: 0920
Bien en copropriété. Nombre de lots : 32. Charges de copropriété : 1550 €.
Honoraires d'agence de 3.64% à la charge de l'acquéreur
Barème des honoraires
DPE
A
B
C
D
E
F
G
GES
A
B
C
D
E
F
G

Prêt immobilier

Vous souhaitez connaître votre capacité d’emprunt et trouver le meilleur crédit immobilier ?
Réaliser une simulation gratuite

Appartement à PARIS-11E
Appartement à PARIS-11E
Appartement à PARIS-11E
Appartement à PARIS-11E
Appartement à PARIS-11E
Appartement à PARIS-11E
Appartement à PARIS-11E
Appartement à PARIS-11E
Appartement à PARIS-11E
Appartement à PARIS-11E
Appartement à PARIS-11E
Appartement à PARIS-11E
Appartement à PARIS-11E
Ce site est protégé par reCAPTCHA la Politique de confidentialité et les Conditions d’utilisation de Google s’appliquent.
Obtenir un prêt immobilier au meilleur taux ?

En poursuivant votre navigation sans modifier vos paramètres, vous acceptez l'utilisation de cookies susceptibles de réaliser des statistiques de visite. Cliquez ici pour plus d'informations