Bénéficiez des services de nos partenaires locaux soigneusement sélectionnés
pour vous accompagner dans votre parcours d'achat immobilier

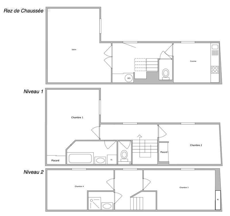
Dpt loiret (45), à vendre orleans centre - maison de ville

— Orleans 45000 —
199 280 €
87 m²
5 pièces

Nos partenaires locaux
ORLEANS Hyoer-centre, Maison de caractère. Entre la gare et la Place du Martroi. Environnement très calme dans une petite copropriété avec faibles charges. Entrée, Séjour, Cuisine séparée. En étage : 3 chambres et un bureau, Salle de bains et Salle d'eau. Gare Sncf à quelques minutes à pieds. Nombre de lots de la copropriété : 11, Montant moyen annuel de la quote-part de charges (budget prévisionnel) : 650€ soit 54€ par mois. Les honoraires sont à la charge du vendeur.
Les informations sur les risques auxquels ce bien est exposé sont disponibles sur le site Géorisques : www. georisques. gouv. fr.

Réseau Immobilier CAPIFRANCE - Votre agent commercial (RSAC N°499 266 278 - Greffe de ORLEANS) Marc DEVISME Entrepreneur Individuel [Coordonnées masquées] - Réf.933420
Voir plus

Référence: 340934723810
Bien en copropriété. Nombre de lots : 11. Charges de copropriété : 54 €.
Honoraires à la charge du vendeur.
DPE
A
B
C
D
E
F
G
GES
A
B
C
D
E
F
G

Prêt immobilier

Vous souhaitez connaître votre capacité d’emprunt et trouver le meilleur crédit immobilier ?
Réaliser une simulation gratuite

Maison à ORLEANS
Maison à ORLEANS
Maison à ORLEANS
Maison à ORLEANS
Maison à ORLEANS
Maison à ORLEANS
Maison à ORLEANS
Maison à ORLEANS
Ce site est protégé par reCAPTCHA la Politique de confidentialité et les Conditions d’utilisation de Google s’appliquent.
Obtenir un prêt immobilier au meilleur taux ?

En poursuivant votre navigation sans modifier vos paramètres, vous acceptez l'utilisation de cookies susceptibles de réaliser des statistiques de visite. Cliquez ici pour plus d'informations