Bénéficiez des services de nos partenaires locaux soigneusement sélectionnés
pour vous accompagner dans votre parcours d'achat immobilier

Maison à potentiel pour investisseur ou bricoleur

— Mailly-Le-Camp 10230 —
70 000 €
88 m² / 1 442 m²
5 pièces

Nos partenaires locaux
Charmante maison de 1910 équipée d'une pompe à chaleur récente, située sur une grande parcelle de 1442 m² dont env. 1000 m² de jardin.
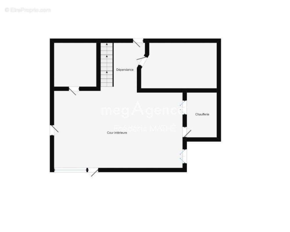
Au RDC : cuisine, séjour, salle d'eau, 2 chambres et grand porche.
À l'étage : 2 chambres, palier et grenier aménageable.
Dépendances, chaufferie et cours intérieures.
Classée E, maison avec fort potentiel, idéale pour bricoleurs ou investisseurs.
Contactez-moi pour plus d'infos ou une visite !

Les informations sur les risques auxquels ce bien est exposé sont disponibles sur le site Géorisques : www.georisques.gouv.fr
Prix de vente : 70 000 €
Honoraires charge vendeur

Contactez votre consultant megAgence : Frédéric MATHÉ, Tél. : [Coordonnées masquées], E-mail : [Coordonnées masquées] - EI - Agent commercial immatriculé au RSAC de TROYES sous le numéro 908 048 705
Voir plus

Référence: 196188
Honoraires à la charge du vendeur.
DPE
A
B
C
D
E
F
G
GES
A
B
C
D
E
F
G

Prêt immobilier

Vous souhaitez connaître votre capacité d’emprunt et trouver le meilleur crédit immobilier ?
Réaliser une simulation gratuite

Maison à MAILLY-LE-CAMP
Maison à MAILLY-LE-CAMP
Maison à MAILLY-LE-CAMP
Maison à MAILLY-LE-CAMP
Maison à MAILLY-LE-CAMP
Maison à MAILLY-LE-CAMP
Maison à MAILLY-LE-CAMP
Maison à MAILLY-LE-CAMP
Maison à MAILLY-LE-CAMP
Ce site est protégé par reCAPTCHA la Politique de confidentialité et les Conditions d’utilisation de Google s’appliquent.
Obtenir un prêt immobilier au meilleur taux ?

En poursuivant votre navigation sans modifier vos paramètres, vous acceptez l'utilisation de cookies susceptibles de réaliser des statistiques de visite. Cliquez ici pour plus d'informations