Bénéficiez des services de nos partenaires locaux soigneusement sélectionnés
pour vous accompagner dans votre parcours d'achat immobilier

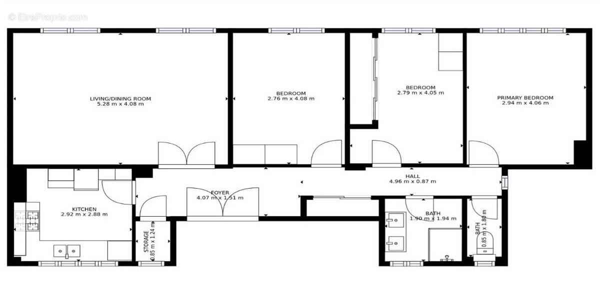
Appartement paris 4 pièce(s) 82 m2

— Paris-19e 75019 —
650 000 €
82 m²
4 pièces

Nos partenaires locaux
Entre les commerces de Laumière et Secrétan - Idéalement situé avenue Jean Jaurès, entre le canal et le parc des Buttes-Chaumont.
Dans un immeuble récent et bien tenu avec ascenseur, nous vous proposons ce beau 4 pièces avec 3 vraies chambres (+ de 11m2).
La cuisine de 8.40m2 est ouvrable sur le séjour pour une belle pièces de vie traversante est/ouest de plus de 30m2.
Bon état général.
Chauffage + eau chaude individuel au gaz
Grandes fenêtres dans toutes les pièces (double vitrage)
WC séparés
Salle d'eau avec double vasque
Beaucoup de rangements
Cave béton en sous sol


En application de l'article R561-5-1 du Code monétaire et financier, vos coordonnées seront exigées pour toute visite

Voir plus

Bien en copropriété. Nombre de lots : 22. Charges de copropriété : 2038 €.
Honoraires à la charge du vendeur.
Barème des honoraires
DPE
A
B
C
D
E
F
G
GES
A
B
C
D
E
F
G

Prêt immobilier

Vous souhaitez connaître votre capacité d’emprunt et trouver le meilleur crédit immobilier ?
Réaliser une simulation gratuite

Appartement à PARIS-19E
Appartement à PARIS-19E
Appartement à PARIS-19E
Appartement à PARIS-19E
Appartement à PARIS-19E
Appartement à PARIS-19E
Appartement à PARIS-19E
Appartement à PARIS-19E
Ce site est protégé par reCAPTCHA la Politique de confidentialité et les Conditions d’utilisation de Google s’appliquent.
Obtenir un prêt immobilier au meilleur taux ?

En poursuivant votre navigation sans modifier vos paramètres, vous acceptez l'utilisation de cookies susceptibles de réaliser des statistiques de visite. Cliquez ici pour plus d'informations