Appartement 63m² à crozon

— Crozon 29160 —
259 900 €
63 m²
3 pièces
parkingbalcon/terrasseascenseur

L'agence 'MON BIEN A LA MER', spécialiste de l'immobilier neuf sur les côtes Bretonnes, vous présente :

Rare : Plein Coeur de ville, tous commerces à pied.
Belle Résidence en construction centre de CROZON :
Suite au succès commercial de la 1è tranche, lancement de la nouvelle pour livraison fin 2027.

Résidence RE2020 et certifiée NF HABITAT.
Frais de notaire réduits.
Ascenseur, chauffage par Pompe à chaleur, parking sous sol, résidence sécurisée, volets roulants électriques, douches à l'italienne, local vélo : tout a été pensé pour votre confort.

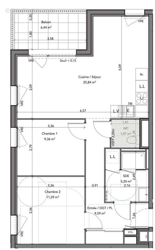
T3 double expo au 4è et dernier étage :
- Séjour de 25,84m2 avec double expo sud/ouest et nord/ouest, balcon 6,44m2
- Deux chambres 11,29-9,59m2
- salle d'eau douche sèche serviette vasque 5,2m2
- wc séparés
- entrée avec placard 9,59m2
- parking inclus

Nous consulter.

Honoraires à la charge du vendeur. Non soumis au DPE. Les informations sur les risques auxquels ce bien est exposé sont disponibles sur le site Géorisques : georisques.gouv.fr.

Votre conseiller MON BIEN A LA MER : Gérant - .fr MON BIEN A LA MER
Carte T CPI 22[Coordonnées masquées]25 040
RCP ACM IARD B1 7025278
Voir plus

Référence: VA6252-BIENALAMER
Honoraires à la charge du vendeur.
Barème des honoraires

Prêt immobilier

Vous souhaitez connaître votre capacité d’emprunt et trouver le meilleur crédit immobilier ?
Réaliser une simulation gratuite

Appartement à CROZON
Appartement à CROZON
Appartement à CROZON
Appartement à CROZON
Appartement à CROZON
Appartement à CROZON
Appartement à CROZON
Appartement à CROZON
Appartement à CROZON
Ce site est protégé par reCAPTCHA la Politique de confidentialité et les Conditions d’utilisation de Google s’appliquent.
Obtenir un prêt immobilier au meilleur taux ?

En poursuivant votre navigation sans modifier vos paramètres, vous acceptez l'utilisation de cookies susceptibles de réaliser des statistiques de visite. Cliquez ici pour plus d'informations