Appartement 30m² à saint-cyr-l'ecole

— Saint-Cyr-L'ecole 78210 —
108 520 €
31 m²
1 pièce
parkingascenseur

RÉSIDENCE MODERNE - MOBILIERS NEUFS - FAIBLES CHARGES

Situé dans un quartier calme et résidentiel, la résidence est composée de studio et deux pièces confortable, elle est à proximité des commerces, des écoles et des transports en commun, sans oublié le Château de Versailles.

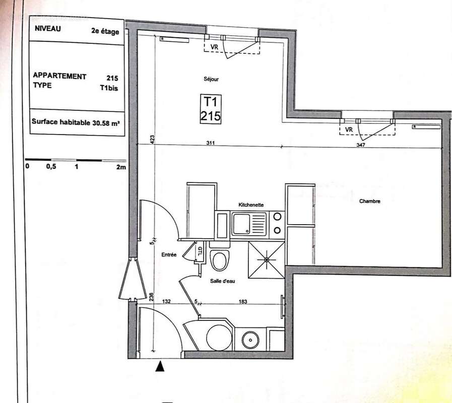
LE BIEN : Ce charmant studio d'une surface de 30.58m² est composé d'une entrée avec placard, d'une belle pièce à vivre avec une cuisine américaine aménagée et équipée, un coin chambre et d'une salle de bains avec un WC.

LA RÉSIDENCE :
Au deuxième étage d'un bâtiment de 3 étages avec ascenseur, cette résidence moderne est équipée de la salle de sport, d'une laverie d'un espace détente et d'un local à vélo. Résidence sécurisée avec un gardien 7/7 et interphone.
Année de construction 2010, et possède 134 lots.

LA LOCALISATION :
Un emplacement idéale à proximité des commerces, des restaurants, proche des transports en commun : le bus au pied de la résidence, la gare de Saint-Cyr à 2km, de Paris et ses monuments historiques, facilitant les déplacements vers l'aéroport Paris-Orly à 30 min et le quartier d'affaires de Saint-Quentin en Yvelines à 15 min. Egalement la résidence est desservie par des axes routiers : D11, A12 et A13.

LA RENTABILITÉ :
Ce charmant studio est idéal pour un investissement LMNP, offrant une rentabilité attractive et des loyers net d'impôts.
Le loyer annuel est de 5 950€ HT.

LE PRIX :
Le prix de vente de ce studio est de 108 520 € incluant les honoraires, le suivi administratif et juridique, ainsi qu'un service client dédié 12 mois après la vente.

Envie d'en savoir plus sur le rendement locatif de cet appartement en vente ? Prenez contact avec notre conseiller au [Coordonnées masquées].

Dans une copropriété de 196 lots. Aucune procédure n'est en cours. Classe énergie D, Classe climat A Montant moyen estimé des dépenses annuelles d'énergie pour un usage standard, établi à partir des prix de l'énergie de l'année 2021 : entre 430.00 et 620.00 €. Les informations sur les risques auxquels ce bien est exposé sont disponibles sur le site Géorisques : georisques.gouv.fr.
Voir plus

Référence: VA3185-IMMOWY
Bien en copropriété. Nombre de lots : 196.
Honoraires à la charge de l'acquéreur.
Barème des honoraires
DPE
A
B
C
D
E
F
G
GES
A
B
C
D
E
F
G

Prêt immobilier

Vous souhaitez connaître votre capacité d’emprunt et trouver le meilleur crédit immobilier ?
Réaliser une simulation gratuite

Appartement à SAINT-CYR-L'ECOLE
Appartement à SAINT-CYR-L'ECOLE
Appartement à SAINT-CYR-L'ECOLE
Appartement à SAINT-CYR-L'ECOLE
Appartement à SAINT-CYR-L'ECOLE
Appartement à SAINT-CYR-L'ECOLE
Appartement à SAINT-CYR-L'ECOLE
Appartement à SAINT-CYR-L'ECOLE
Ce site est protégé par reCAPTCHA la Politique de confidentialité et les Conditions d’utilisation de Google s’appliquent.
Obtenir un prêt immobilier au meilleur taux ?

En poursuivant votre navigation sans modifier vos paramètres, vous acceptez l'utilisation de cookies susceptibles de réaliser des statistiques de visite. Cliquez ici pour plus d'informations