Bénéficiez des services de nos partenaires locaux soigneusement sélectionnés
pour vous accompagner dans votre parcours d'achat immobilier

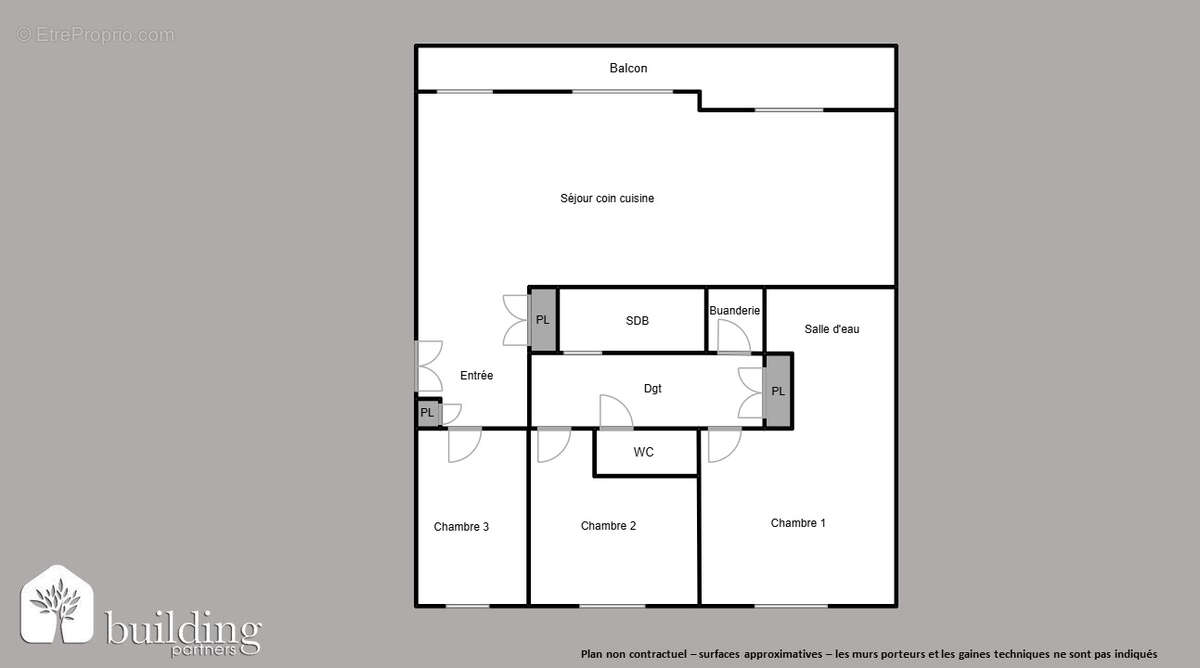
À vendre - levallois-perret - appartement familial de 90,5 m² avec balcon

— Levallois-Perret 92300 —
930 000 €
91 m²
4 pièces
balcon/terrasseascenseur

Nos partenaires locaux
Idéalement situé à proximité immédiate des commerces et du métro ligne 3, BUILDING PARTNERS vous propose à la vente cet appartement familial de 90,5 m² avec balcon de 11 m², niché au 1er étage avec ascenseur d'une copropriété récente de très bon standing. Ce bien, lumineux et calme, offre un plan fonctionnel et des prestations de qualité. Il se compose d'une entrée, d'une grande pièce de vie avec cuisine ouverte aménagée et équipée donnant accès à un espace extérieur sur jardin, de deux chambres, d'une salle de bains, d'un WC séparé, ainsi que d'une suite parentale avec salle d'eau attenante. Une cave et deux emplacements de parking (en sus) complètent ce bien. Prix de vente : 930 000 euros honoraires inclus, à la charge du vendeur. Charges annuelles : 3 600 euros - DPE : C - Pas de procédure en cours. Ce bien rare à la vente séduira une famille ou un couple à la recherche d'un appartement spacieux, moderne et confortable, au sein d'un environnement calme et recherché. N'hésitez pas à nous contacter pour plus d'informations ou organiser une visite. La vente d'un bien immobilier n'est pas la fin de quelque chose. Au contraire c'est le début d'une nouvelle histoire. Et pour que cette histoire soit belle, il faut qu'elle commence bien. Voilà la mission de nos équipes. Créé en 1993, le groupe BUILDING PARTNERS offre le savoir-faire et l'accompagnement des plus prestigieuses agences traditionnelles, tout en proposant les outils digitaux les plus performants pour assurer une vente rapide et au meilleur prix. Pour cela nous avons développé une importante gamme de services qui permettent d'offrir à nos clients une prestation sur mesure : deux photographes et un vidéaste professionnel, la réalisation de plans, la visite virtuelle en 3D, le home-staging, la communication ciblée ou encore le off-market. En quelques chiffres, BUILDING PARTNERS c'est 100 nouveaux biens à vendre chaque mois et 300 ventes par an ! Les informations sur les risques auxquels ce bien est exposé sont disponibles sur le site Géorisques : www.georisques.gouv.fr Copropriété de 3 lots (Pas de procédure en cours). Charges annuelles : 3840 euros.
Voir plus

Bien en copropriété. Nombre de lots : 3. Charges de copropriété : 3840 €.
Honoraires à la charge du vendeur.
Barème des honoraires
DPE
A
B
C
D
E
F
G
GES
A
B
C
D
E
F
G

Prêt immobilier

Vous souhaitez connaître votre capacité d’emprunt et trouver le meilleur crédit immobilier ?
Réaliser une simulation gratuite

Appartement à LEVALLOIS-PERRET
Appartement à LEVALLOIS-PERRET
Appartement à LEVALLOIS-PERRET
Appartement à LEVALLOIS-PERRET
Appartement à LEVALLOIS-PERRET
Appartement à LEVALLOIS-PERRET
Appartement à LEVALLOIS-PERRET
Appartement à LEVALLOIS-PERRET
Appartement à LEVALLOIS-PERRET
Appartement à LEVALLOIS-PERRET
Ce site est protégé par reCAPTCHA la Politique de confidentialité et les Conditions d’utilisation de Google s’appliquent.
Obtenir un prêt immobilier au meilleur taux ?

En poursuivant votre navigation sans modifier vos paramètres, vous acceptez l'utilisation de cookies susceptibles de réaliser des statistiques de visite. Cliquez ici pour plus d'informations