Bénéficiez des services de nos partenaires locaux soigneusement sélectionnés
pour vous accompagner dans votre parcours d'achat immobilier

T3 saint-félix / tortière

— Nantes 44000 —
275 600 €
59 m²
3 pièces
parkingbalcon/terrasseascenseur

Nos partenaires locaux
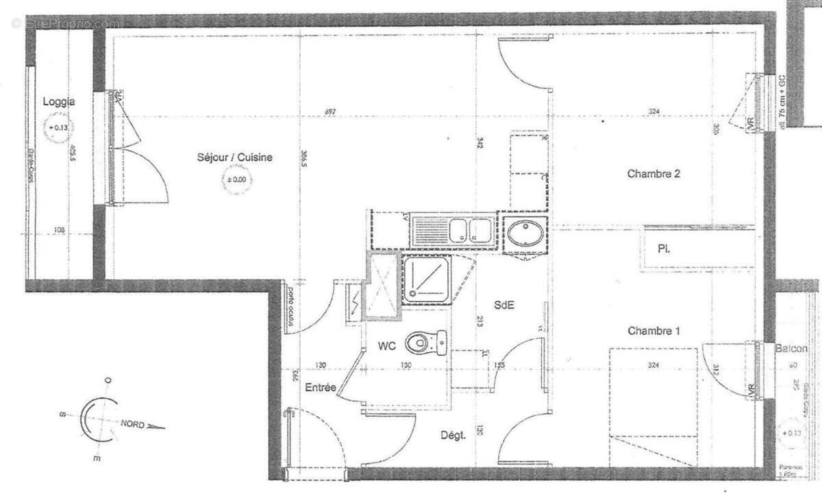
SAINT-FÉLIX / TORTIÈRE A côté des bords de l'Erdre et des universités
En étage avec ascenseur, appartement de type 3 traversant comprenant entrée, pièce de vie avec cuisine aménagée, deux chambres, une salle d'eau, wc séparés.
le balcon au calme, accessible par le séjour est exposé Sud.
Place de parking en sous-sol
Les charges comprennent chauffage, eau chaude et froide avec compteur individuel
Les informations sur les risques auxquels ce bien est exposé sont disponibles sur le site Géorisques : www. georisques. gouv. fr
Voir plus

Référence: 129540
Bien en copropriété. Nombre de lots : 80. Charges de copropriété : 193 €.
Honoraires d'agence de 6% à la charge de l'acquéreur
DPE
A
B
C
D
E
F
G
GES
A
B
C
D
E
F
G

Prêt immobilier

Vous souhaitez connaître votre capacité d’emprunt et trouver le meilleur crédit immobilier ?
Réaliser une simulation gratuite

Appartement à NANTES
Appartement à NANTES
Appartement à NANTES
Appartement à NANTES
Appartement à NANTES
Appartement à NANTES
Appartement à NANTES
Appartement à NANTES
Appartement à NANTES
Appartement à NANTES
Appartement à NANTES
Appartement à NANTES
Appartement à NANTES
Ce site est protégé par reCAPTCHA la Politique de confidentialité et les Conditions d’utilisation de Google s’appliquent.
Obtenir un prêt immobilier au meilleur taux ?

En poursuivant votre navigation sans modifier vos paramètres, vous acceptez l'utilisation de cookies susceptibles de réaliser des statistiques de visite. Cliquez ici pour plus d'informations