Belleville ! appartement 2/3 pièces traversant - rue de belleville, paris 20e

— Paris-20e 75020 —
380 000 €
44 m²
2 pièces

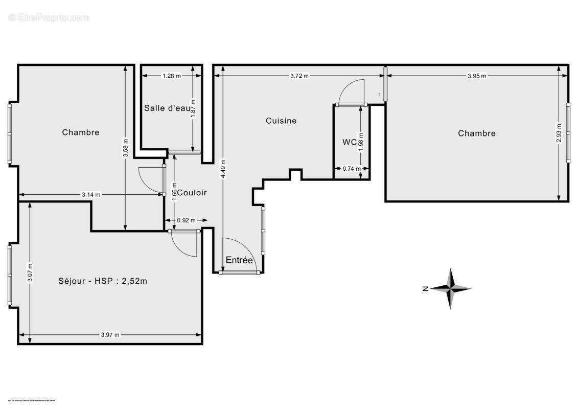
Hosman vous propose cet appartement 2/3 pièces d'une surface Carrez de 43,96 m², niché au 1er étage d'un immeuble de 6 étages, sans ascenseur.

Situé à quelques minutes à pied du Parc de Belleville, offrant une vue remarquable sur Paris, et non loin du Parc des Buttes Chaumont, l'appartement bénéficie d'un emplacement privilégié, au cœur du quartier vivant de Belleville, qui mêle commerces de proximité, restaurants, et ambiance de village urbain. Le secteur est bien desservi par les transports, notamment les métros "Pyrénées" (ligne 11) et "Belleville" (lignes 2 et 11), ainsi que plusieurs lignes de bus.

L'appartement se compose comme suit :
- une entrée,
- un salon de 12sur rue,
- une pièce chambre/bureau sur rue,
- une cuisine,
- une chambre avec bibliothèque toute hauteur, au calme sur cour,
- une salle d'eau,
- un wc séparé.

Le bien peut facilement être réaménagé en deux pièces (sa configuration d'origine), en supprimant la cloison qui sépare les deux pièces sur rue, pour en faire un séjour de 18 m².

Le système de chauffage et de production d'eau chaude est individuel au gaz.
Les charges de copropriété sont de 350 € par trimestre.
La taxe foncière annuelle est de 626 €.

Planifiez facilement votre visite en choisissant le créneau qui vous convient depuis le site d'Hosman.

Le bien est soumis au statut de copropriété.

Hosman s'efforce de réinventer l'agence immobilière en offrant un service innovant et transparent aux acheteurs et aux vendeurs. Nos frais d'agence sont de 8900 euros fixes à la charge du vendeur.

Si vous êtes un professionnel de l'immobilier (agent, mandataire ou chasseur immobilier), sachez que toutes les annonces Hosman sont ouvertes à la collaboration. N'hésitez pas à nous contacter pour en discuter.
Voir plus

Référence: 4b2c1a
Bien en copropriété.
Honoraires à la charge du vendeur.
DPE
A
B
C
D
E
F
G
GES
A
B
C
D
E
F
G

Prêt immobilier

Vous souhaitez connaître votre capacité d’emprunt et trouver le meilleur crédit immobilier ?
Réaliser une simulation gratuite

Appartement à PARIS-20E
Appartement à PARIS-20E
Appartement à PARIS-20E
Appartement à PARIS-20E
Appartement à PARIS-20E
Appartement à PARIS-20E
Appartement à PARIS-20E
Appartement à PARIS-20E
Appartement à PARIS-20E
Appartement à PARIS-20E
Ce site est protégé par reCAPTCHA la Politique de confidentialité et les Conditions d’utilisation de Google s’appliquent.
Obtenir un prêt immobilier au meilleur taux ?

En poursuivant votre navigation sans modifier vos paramètres, vous acceptez l'utilisation de cookies susceptibles de réaliser des statistiques de visite. Cliquez ici pour plus d'informations