Bénéficiez des services de nos partenaires locaux soigneusement sélectionnés
pour vous accompagner dans votre parcours d'achat immobilier

Voir tous les partenaires locaux

Appartement familial 3 chambres

— Paris-16e 75016 —
1 220 000 €
112 m²
5 pièces
ascenseur

Nos partenaires locaux
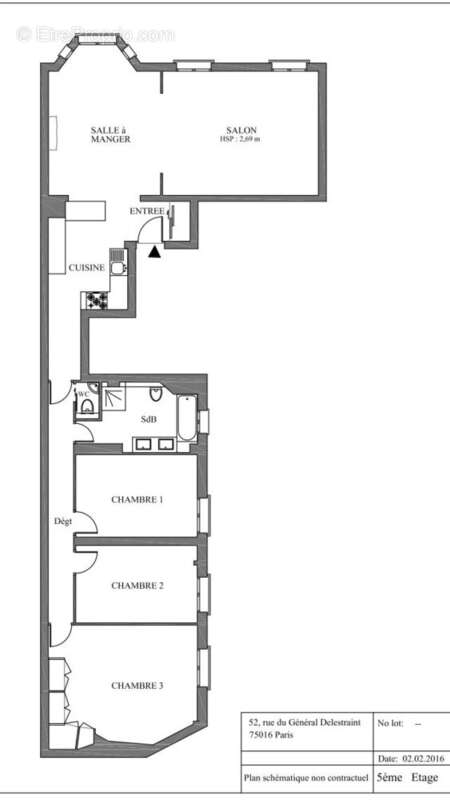
Au sein d’un bel immeuble ancien avec gardienne, cet appartement de 5 pièces situé au 5ème étage bénéficie du charme de l’ancien : parquets, moulures et cheminées.

Il se compose d’une entrée, d’un séjour lumineux, d’une salle à manger et d’une cuisine ouverte. L’espace nuit comprend trois chambres, un couloir, une grande salle de bains avec baignoire, douche et WC, ainsi qu’un WC séparé.

Idéalement placé au cœur d’Auteuil, le quartier offre commerces, écoles et transports à proximité.

Une cave en sous-sol complète le bien.
Possibilité d’acquérir un parking en sus.
Voir plus

Référence: 86501907
DPE
A
B
C
D
E
F
G
GES
A
B
C
D
E
F
G

Prêt immobilier

Vous souhaitez connaître votre capacité d’emprunt et trouver le meilleur crédit immobilier ?
Réaliser une simulation gratuite

Appartement à PARIS-16E
Appartement à PARIS-16E
Appartement à PARIS-16E
Appartement à PARIS-16E
Appartement à PARIS-16E
Appartement à PARIS-16E
Appartement à PARIS-16E
Appartement à PARIS-16E
Appartement à PARIS-16E
Appartement à PARIS-16E
Appartement à PARIS-16E
Ce site est protégé par reCAPTCHA la Politique de confidentialité et les Conditions d’utilisation de Google s’appliquent.
Obtenir un prêt immobilier au meilleur taux ?

En poursuivant votre navigation sans modifier vos paramètres, vous acceptez l'utilisation de cookies susceptibles de réaliser des statistiques de visite. Cliquez ici pour plus d'informations