Bénéficiez des services de nos partenaires locaux soigneusement sélectionnés
pour vous accompagner dans votre parcours d'achat immobilier

Type 3 recent - loggia et box ferme - betton

— Betton 35830 —
233 500 €
63 m²
3 pièces
parkingbalcon/terrasseascenseur

Nos partenaires locaux
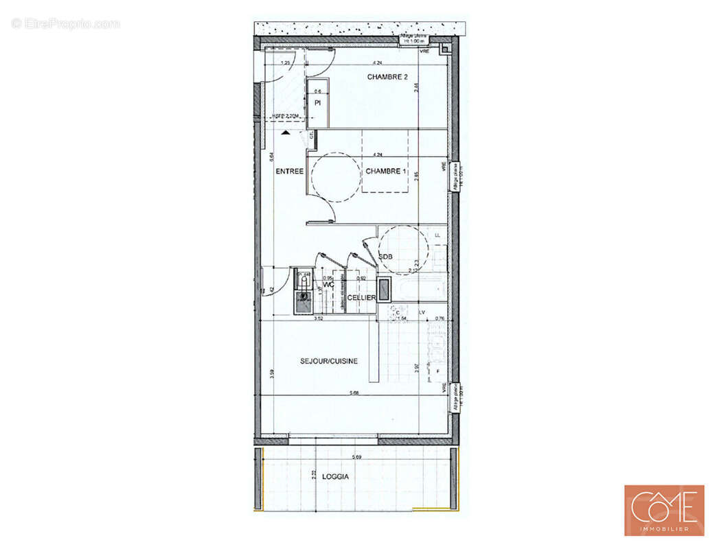
TYPE 3 RÉCENT - EXPOSITION SUD - OUEST - LOGGIA ET BOX FERMÉ - LIBRE D'OCCUPATION - BETTON CÔME vous invite à découvrir ce bel appartement 3 pièces de 63,14 m², situé au rez-de-chaussée d'une résidence récente construite par BATI ARMOR, élégante et intimiste, idéalement implantée dans un quartier calme et verdoyant à proximité du canal. LES ATOUTS : - Appartement vendu libre de toute occupation - Résidence récente et sécurisée - Exposition Est-Sud-Ouest - Loggia de 12 m², parfaite pour profiter des beaux jours - Entrée indépendante pour plus de confort - Box fermé en sous-sol (14,5 m²) L'AGENCEMENT : - L'entrée dessert un dégagement avec placard, deux chambres confortables, une salle de bain, un cellier et des toilettes séparées. - Le séjour spacieux avec cuisine aménagée et équipée ouvre directement sur la loggia, offrant un espace de vie chaleureux et convivial. VIE PRATIQUE : - A deux pas d'un arrêt de bus (réseau STAR) - Gare de Betton à 10 min à pied - Commerces, écoles et services accessibles en moins de 15 min de marche Ne manquez pas cette opportunité rare d'acquérir un appartement alliant modernité, confort et emplacement idéal. Contactez-nous dès aujourd'hui ! Consultez une partie de nos offres sur notre site come - immobilier . fr Tous nos biens ne sont pas en ligne, n'hésitez pas à nous contacter directement Les informations sur les risques auxquels ce bien est exposé sont disponibles sur le site Géorisques : www.georisques.gouv.fr Réf. EM-2430 (4.24 % honoraires TTC à la charge de l'acquéreur.)
Voir plus

Référence: 395
Honoraires d'agence de 4.24% à la charge de l'acquéreur
DPE
A
B
C
D
E
F
G
GES
A
B
C
D
E
F
G

Prêt immobilier

Vous souhaitez connaître votre capacité d’emprunt et trouver le meilleur crédit immobilier ?
Réaliser une simulation gratuite

Appartement à BETTON
Appartement à BETTON
Appartement à BETTON
Appartement à BETTON
Appartement à BETTON
Appartement à BETTON
Appartement à BETTON
Ce site est protégé par reCAPTCHA la Politique de confidentialité et les Conditions d’utilisation de Google s’appliquent.
Obtenir un prêt immobilier au meilleur taux ?

En poursuivant votre navigation sans modifier vos paramètres, vous acceptez l'utilisation de cookies susceptibles de réaliser des statistiques de visite. Cliquez ici pour plus d'informations