Bénéficiez des services de nos partenaires locaux soigneusement sélectionnés
pour vous accompagner dans votre parcours d'achat immobilier

Maison 135m² à francheville

— Francheville 69340 —
535 000 €
135 m² / 923 m²
5 pièces
parkingbalcon/terrassejardin

Nos partenaires locaux
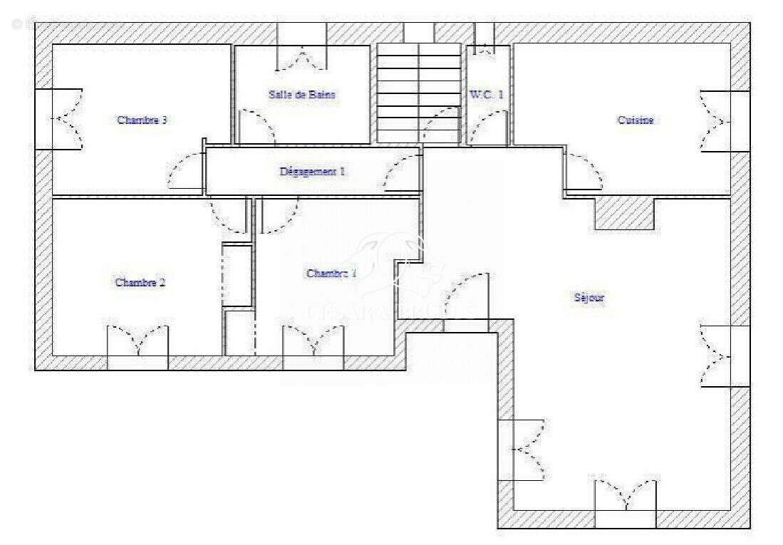
FRANCHEVILLE-LE HAUT - secteur Rue des Chaux - Maison 135 m² avec 4 chambres + bureau sur sous-sol complet sur un terrain de plus de 900 m²

Environnement: secteur Rue des Chaux / entre le centre de Francheville de haut et le quartier du Haut BRUISSIN. Au calme absolu, secteur très résidentiel, aucune circulation.

La maison: construction de 1973, élevée sur un sous-sol complet.
Composition: entrée avec grand placard intégré, séjour avec cheminée contemporaine et ouvert sur une grande terrasse plein sud. Cuisine séparé, aménagée récemment et équipée. Possibilité de créer une pièce de vie de 39 m².

Espace nuit avec 4 chambres pourvues de placards muraux dont une grande, à l'étage, avec sa salle d'eau privative, idéale pour une belle chambre parentale ou pour un ado pour créer son univers.
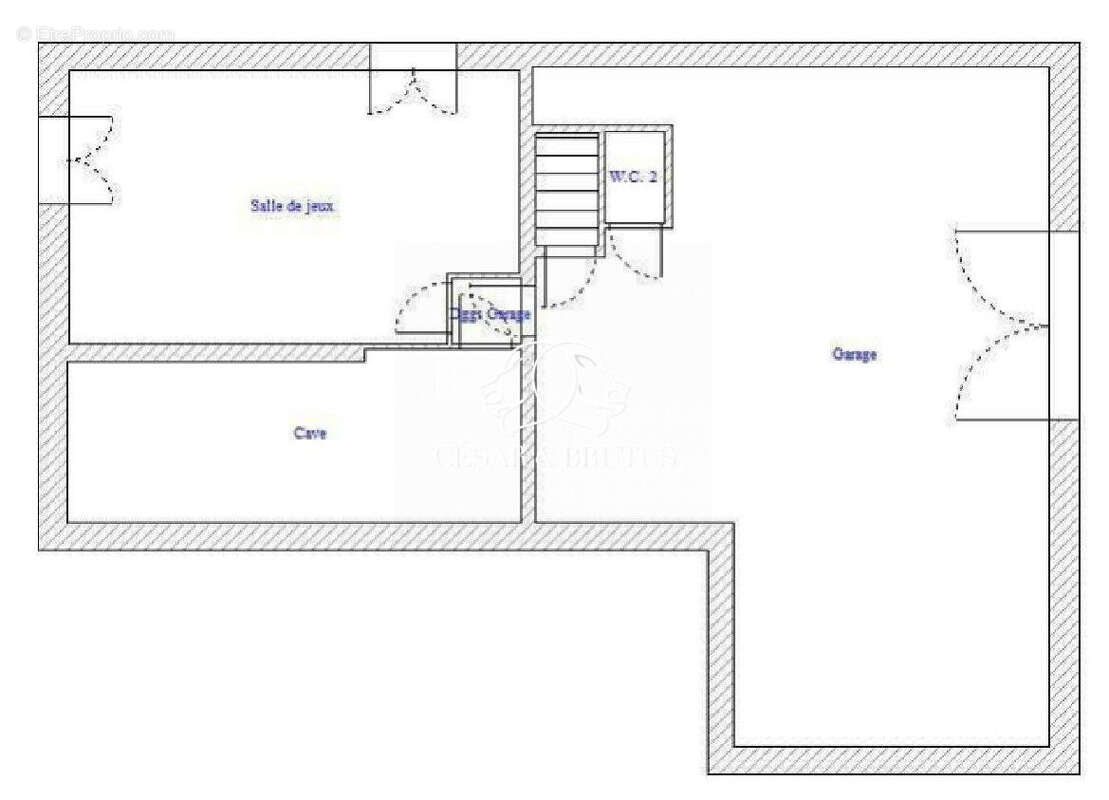
Sous-sol complet avec garage de 56 m² équipé de grands placards et étagères, wc, cave-cellier et une pièce de 23 m² avec 2 fenêtres pour bénéficier d'une chambre d'appoint, d'une salle de jeux ou d'un bureau selon vos besoins.

Maison à rafraîchir intérieurement mais emplacement idéal

Les prestations très appréciables : chauffage au gaz de ville avec chaudière de qualité. Fibre optique en place et aspiration centralisée. Portail motorisé récent.

Terrain clos, arboré et piscinable.

Accès: 1,8 km du centre de Francheville de Haut, ses commerces et ses écoles primaires et maternelles. A seulement 350 m de l'arrêt de bus JD 221 pour vos enfants et 800 m de l'arrêt de bus TCL ligne C20 et C20E

Vous habitez loin, vous ne voulez pas perdre votre temps, vous êtes très sélectifs alors demandez le lien pour une VISITE IMMERSIVE pour vérifier si ce bien correspond vraiment à vos critères. Si vous êtes séduits, contactez-moi pour une visite sur place.

Fiche avec plus de 20 photos envoyée sur demande.

DELEGATION INTERAGENCES: Chers confères, agents immobiliers, mandataires et chasseurs immobiliers, ce bien est ouvert à la délégation si vous avez des clients sérieux. N'hésitez pas à me contacter pour tout renseignement complémentaire.

Fort de plus de 18 ans d'expérience, je vous accompagne dans vos projets immobiliers en tant que conseiller immobilier indépendant.

Mes services : estimation gratuite, professionnelle et argumentée avec remise d'un dossier complet, mise en valeur de votre bien, photos HDR, diffusion sur tous les sites majeurs, portefeuille d'acquéreurs, visite immersive 360 °, aménagement virtuel, sélection des acheteurs, conseils et accompagnement jusqu'à la signature finale.

Contactez-moi et discutons de votre projet.

Pour tous renseignements et visites, vous pouvez me contacter au [Coordonnées masquées] et / ou [Coordonnées masquées]
Ivan PERINO - EI - RSAC 501 910 517 Bourg-en Bresse

Référence du bien : IP-9078

Les honoraires sont à la charge de l'acquéreur.

Honoraires inclus de 4.17% TTC à la charge de l'acquéreur. Prix hors honoraires 513 600 €. Classe énergie E, Classe climat D Montant estimé des dépenses annuelles d'énergie pour un usage standard : entre 2950.00 € et 4110.00 € sur les années 2021, 2022 et 2023 (abonnements compris). Les informations sur les risques auxquels ce bien est exposé sont disponibles sur le site Géorisques : georisques.gouv.fr.

Votre conseiller CESAR ET BRUTUS : Ivan PERINO
Agent commercial (Entreprise individuelle)
RSAC 501910517
Voir plus

Référence: IP-9078-CESARETBRUTUS69
Honoraires d'agence de 4.17% à la charge de l'acquéreur
Barème des honoraires
DPE
A
B
C
D
E
F
G
GES
A
B
C
D
E
F
G

Prêt immobilier

Vous souhaitez connaître votre capacité d’emprunt et trouver le meilleur crédit immobilier ?
Réaliser une simulation gratuite

Maison à FRANCHEVILLE
Maison à FRANCHEVILLE
Maison à FRANCHEVILLE
Maison à FRANCHEVILLE
Maison à FRANCHEVILLE
Maison à FRANCHEVILLE
Maison à FRANCHEVILLE
Maison à FRANCHEVILLE
Maison à FRANCHEVILLE
Ce site est protégé par reCAPTCHA la Politique de confidentialité et les Conditions d’utilisation de Google s’appliquent.
Obtenir un prêt immobilier au meilleur taux ?

En poursuivant votre navigation sans modifier vos paramètres, vous acceptez l'utilisation de cookies susceptibles de réaliser des statistiques de visite. Cliquez ici pour plus d'informations