Bénéficiez des services de nos partenaires locaux soigneusement sélectionnés
pour vous accompagner dans votre parcours d'achat immobilier

4 pièces, balcons, cave et parking bois-préau

— Rueil-Malmaison 92500 —
499 000 €
80 m²
4 pièces
parkingbalcon/terrasse

Nos partenaires locaux
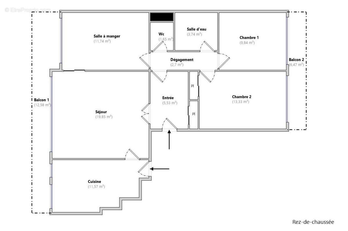
L'Agence de l'Empereur vous présente en exclusivité cet agréable appartement traversant de 80 m2, 4 pièces, 3 chambres, situé dans la recherchée et très appréciée résidence George Sand, avec gardien et ascenseur. Toutes les pièces principales et la cuisine donnent sur les deux balcons de 12,6 m2 et 6,5 m2 qui longent l’appartement des deux côtés, offrant des vues verdoyantes au sein d'un environnement calme. Il se compose d'une entrée avec placard, côté Sud-Est, une cuisine dinatoire de 11,5 m2, un séjour de 20 m2 s'ouvrant en partie sur la salle à manger (ou 3ᵉ chambre) de 11,7 m2, créant ainsi une réception d’environ 32 m2. Côté Nord-Ouest, deux chambres de 9,85 m2 et 13,3 m2 avec placard. Une salle de bain de 3,80 m2 récemment rénovée et des toilettes séparées avec lave-mains. Une cave et une place de parking extérieure attitrée. Double vitrage récent K-Line avec volets électriques. Eau chaude/froide et chauffage collectif par géothermie (inclus dans les charges, 310 € mensuels). Ravalements de façade et balcons effectués en 2024/2025. Récemment : fermeture et sécurisation des accès, réfection du réseau secondaire de chauffage et étanchéité des toits-terrasses. Cette résidence familiale bénéficie d'un environnement calme, de la proximité du centre-ville - on rejoint l’entrée du joli parc de Bois-Préau à 300 m, le nouveau parc du Cardinal à 200 m, Monoprix se trouve à 7 minutes à pied - ainsi que de sa très bonne sectorisation scolaire : école George Sand à deux pas, collège La Malmaison et lycée Richelieu accessibles à pied. Visite en vidéo 4K : https://www.youtube.com/embed/rbzEx4J1en8?si=TELupUIi9rq4i61X
Voir plus

Référence: 8502
Bien en copropriété. Nombre de lots : 233. Charges de copropriété : 3780 €.
Honoraires à la charge du vendeur.
Barème des honoraires
DPE
A
B
C
D
E
F
G
GES
A
B
C
D
E
F
G

Prêt immobilier

Vous souhaitez connaître votre capacité d’emprunt et trouver le meilleur crédit immobilier ?
Réaliser une simulation gratuite

Appartement à RUEIL-MALMAISON
Appartement à RUEIL-MALMAISON
Appartement à RUEIL-MALMAISON
Appartement à RUEIL-MALMAISON
Appartement à RUEIL-MALMAISON
Appartement à RUEIL-MALMAISON
Appartement à RUEIL-MALMAISON
Appartement à RUEIL-MALMAISON
Appartement à RUEIL-MALMAISON
Appartement à RUEIL-MALMAISON
Appartement à RUEIL-MALMAISON
Appartement à RUEIL-MALMAISON
Appartement à RUEIL-MALMAISON
Appartement à RUEIL-MALMAISON
Appartement à RUEIL-MALMAISON
Appartement à RUEIL-MALMAISON
Appartement à RUEIL-MALMAISON
Appartement à RUEIL-MALMAISON
Ce site est protégé par reCAPTCHA la Politique de confidentialité et les Conditions d’utilisation de Google s’appliquent.
Obtenir un prêt immobilier au meilleur taux ?

En poursuivant votre navigation sans modifier vos paramètres, vous acceptez l'utilisation de cookies susceptibles de réaliser des statistiques de visite. Cliquez ici pour plus d'informations