Bénéficiez des services de nos partenaires locaux soigneusement sélectionnés
pour vous accompagner dans votre parcours d'achat immobilier

Maison ugine 18 pièces 240 m2

— Ugine 73400 —
535 000 €
240 m² / 648 m²
18 pièces
balcon/terrassejardin

Nos partenaires locaux
Savoie Ugine 73400 maison 240 m² environ, 6 chambres, jardin, garage, appartement indépendant 60 m² environ, prix 535 000 euros.
En exclusivité poussez le portillon de cette belle maison indépendante d'environ 240 m² (172 m² habitables environ), posée sur un terrain de 648 m², et vous sentez tout de suite que ce lieu n'attend plus que votre histoire.

Dès le rez-de-chaussée, vous découvrez un espace pensé pour votre confort : un garage, une salle de jeux où résonneront les rires des enfants, une salle de sport pour vos moments bien-être, ainsi qu'une cave pratique.

Au premier étage, un appartement indépendant de 60 m² environ ouvre ses portes : un séjour avec cuisine pour des moments chaleureux, deux chambres paisibles, une salle de douches, un WC et deux places de stationnement. Cet espace peut accueillir vos proches, offrir de l'indépendance à un adolescent ou encore constituer un projet locatif intéressant.

Le deuxième étage est le véritable coeur de la maison. Une entrée vous accueille, menant vers un séjour lumineux avec cuisine ouverte, baigné de lumière naturelle et équipé d'une climatisation réversible pour un confort optimal en toute saison. On s'y imagine déjà partager de bons repas en famille ou se détendre lors des soirées d'été. Une salle de douches avec WC et un bureau (transformable en chambre) complètent cet étage fonctionnel et modulable selon vos besoins.
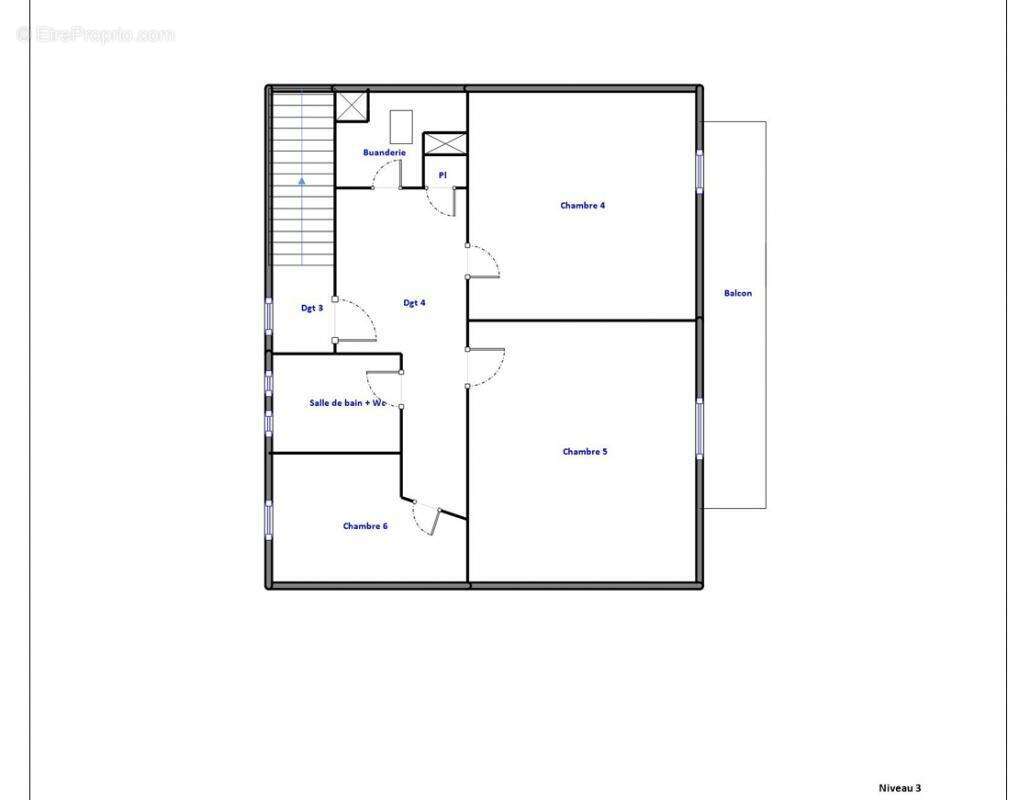
Le troisième étage vous invite à la détente : trois chambres confortables, dont deux s'ouvrent sur un balcon pour profiter d'un petit déjeuner ensoleillé ou d'un ciel étoilé. Une salle de bains avec WC ainsi qu'un espace buanderie viennent parfaire ce niveau dédié à l'intimité et au confort.

A l'extérieur, un jardin arboré vous attend pour vos repas d'été, vos après-midis en famille ou vos projets de jardinage. Vous y trouverez également une terrasse aménagée et ombragée, parfaite pour profiter des beaux jours en toute sérénité, que ce soit pour un déjeuner en plein air ou un moment de détente à l'abri du soleil.

Pour votre confort et votre tranquillité, la maison est équipée de panneaux photovoltaïques (3,2 kW), pompe à chaleur, double et triple vitrage, de caméras de surveillance et d'un éclairage extérieur avec capteurs, garantissant sécurité et maîtrise de votre consommation énergétique.

Située dans un quartier pratique et recherché d'Ugine, cette maison allie confort moderne, espaces généreux et multiples possibilités pour accueillir votre projet de vie.

CLASSE ENERGIE : C CLASSE CLIMAT : A
Montant moyen estimé des dépenses annuelles d'énergie pour un usage standard, établi à partir des prix de l'énergie de l'année 2021, 2022, 2023 abonnement compris : entre 1 710 euros et 2 380 euros par an.
Les informations sur les risques auxquels ce bien est exposé sont disponibles sur le site Géorisques : www.georisques.gouv.fr
Prix de vente : 535 000 euros (honoraires à la charge des vendeurs)
Pour visiter et vous accompagner dans votre projet, contactez Maïmouna LY, votre conseillère en immobilier spécialiste d'Ugine et alentours au [Coordonnées masquées] ou par courriel à [Coordonnées masquées]
Cette présente annonce a été rédigée sous la responsabilité éditoriale de Maïmouna LY agissant sous le statut d'agent commercial immatriculé au RSAC CHAMBERY 839110053 auprès de la SAS PROPRIETES PRIVEES, Réseau national immobilier, au capital de 40000 euros, 44 ALLÉE DES CINQ CONTINENTS ZAC LE CHÊNE FERRÉ, 44120 VERTOU, RCS Nantes n° 487 624 777 00040, Carte professionnelle T et G n° CPI 44[Coordonnées masquées]10 388 CCI Nantes Saint Nazaire. Garantie GALIAN - 89 rue de la Boétie, 75008 Paris
Mandat réf 424102 Le professionnel sécurise votre projet immobilier
Maïmouna LY (EI) Agent Commercial - Numéro RSAC : CHAMBERY 839110053 .

Maïmouna LY (EI) Agent Commercial - Numéro RSAC : CHAMBERY 839110053 - .
Voir plus

Référence: 428056MLY
Honoraires à la charge du vendeur.
DPE
A
B
C
D
E
F
G
GES
A
B
C
D
E
F
G

Prêt immobilier

Vous souhaitez connaître votre capacité d’emprunt et trouver le meilleur crédit immobilier ?
Réaliser une simulation gratuite

Maison à UGINE
Maison à UGINE
Maison à UGINE
Maison à UGINE
Maison à UGINE
Maison à UGINE
Maison à UGINE
Maison à UGINE
Maison à UGINE
Maison à UGINE
Maison à UGINE
Maison à UGINE
Maison à UGINE
Maison à UGINE
Maison à UGINE
Maison à UGINE
Maison à UGINE
Ce site est protégé par reCAPTCHA la Politique de confidentialité et les Conditions d’utilisation de Google s’appliquent.
Obtenir un prêt immobilier au meilleur taux ?

En poursuivant votre navigation sans modifier vos paramètres, vous acceptez l'utilisation de cookies susceptibles de réaliser des statistiques de visite. Cliquez ici pour plus d'informations