83230 bormes les mimosas maison 358m2 - terrain 2163m2

— Bormes-Les-Mimosas 83230 —
1 245 000 €
358 m² / 2 163 m²
14 pièces
jardin

Aujourd'hui c'est à Bormes Les Mimosas, Quartier prisé des Cardenon juste avant le Domaine de Benat que je invite à investir dans cette grande maison construite en 1975, composée de 14 pièces ou 5 appartements sur un terrain de 2163m2.
Aujourd'hui cette petite Copropriété composée de 5 appartements bénéficie d'une surface habitable de 410m2 répartie de la façon suivante :
- Au Rez de chaussée 3 appartements dont 1 T2 et 2 studios chacun avec terrasse
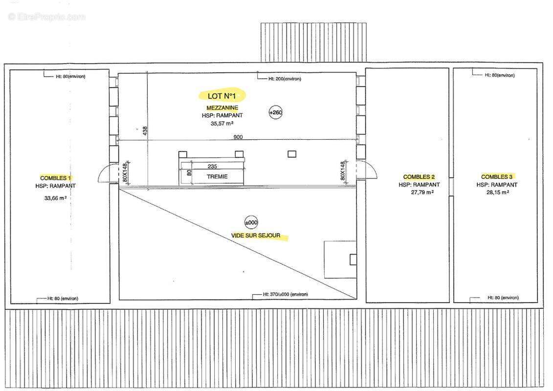
- A l'étage 2 grands appartements au total 200m2 (possible de le fusionner en un seul comme de le diviser encore).
- 1 grand garage faisant office d'atelier et pouvant recevoir au minimum 2 voitures ( et transformable avec accord Urbanisme).
DESCRIPTIF SOMMAIRE
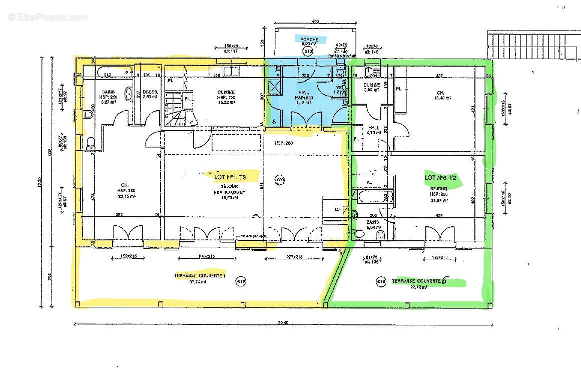
Lot 1 : rez-de-chaussée haut , un appartement type 3 de 160m² et une terrasse couverte de 37.34 m2. RDC bas un garage de 31.91m2 (possible studio à voir) et une buanderie/2eme garage de 18.97m2.
Lot 6 : rez de chaussée haut, Appartement type T2 de 78.14m² et une terrasse couverte de 22.76m2.
Lot 3 : rez-de -jardin bas, un studio de 36m²+ une terrasse 8m2. (A rénover)
Lot 4 : rez-de-jardin bas, un studio comprenant de 36.76m² une terrasse 8.68m2. (A rénover)
Lot 5 : rez-de-jardin bas, un appartement de type T2 de 45.22m² et Une terrasse 12.23m2. (A rénover)
L'ensemble bénéficie d'un forage, d'un four à pizza (à rénover), d'un grand espace vert avec limite naturelle.
Tous les appartements ont des compteurs électriques et d'eau séparés + tout à l'égout.
Superbe ensoleillement toute l'année, vue collines, très calme, quartier résidentiel de villas et terrain piscinable
Possibilité d'acquérir le lot 2 appartement T2 de 47m²+terrasse 22m² concomitamment pour dissoudre la copropriété
Cette belle bâtisse une fois rénovée et relookée accueillera confortablement famille, amis, locataires (annuels ou saisonniers) ou hostellerie
Infos utiles
l'ensemble des appartements est en DPE D (210)et GES D(7), Estimation des coûts annuels : entre 2 290 euros et 3 130 euros par an Prix moyens des énergies indexés au 1er janvier 2021,Forage, Terrain clôturé, four à pizza, possibilité piscine
MANDAT 398990 Prix 1245000 euros dont 45000 euros honoraires charges acquéreur soit Prix 1200000 euros net vendeur
Les informations sur les risques auxquels ce bien est exposé sont disponibles sur le site Géorisques : www.georisques.gouv.fr.
Pour visiter et vous accompagner dans votre projet, contactez Catherine MONTHEARD, au [Coordonnées masquées] ou par courriel à [Coordonnées masquées] Selon l'article L.561.5 du Code Monétaire et Financier, pour l'organisation de la visite, la présentation d'une pièce d'identité vous sera demandée.
Cette présente annonce a été rédigée sous la responsabilité éditoriale de Catherine MONTHEARD agissant sous le statut d'agent commercial immatriculé au RSAC TOULON 838140440 auprès de la SAS PROPRIETES PRIVEES, au capital de 40 000 euros, ZAC LE CHÊNE FERRÉ - 44 ALLÉE DES CINQ CONTINENTS 44120 VERTOU; SIRET 487 624 777 00040, RCS Nantes. Carte professionnelle Transactions sur immeubles et fonds de commerce (T) et Gestion immobilière (G) n° CPI 44[Coordonnées masquées]10 388 délivrée par la CCI Nantes - Saint Nazaire. Compte séquestre n°3[Coordonnées masquées] BPA SAINT-SEBASTIEN-SUR-LOIRE (44230) ;Garantie GALIAN - 89 rue de la Boétie, 75008 Paris - n°28137 J pour 2 000 000 euros pour T et 120 000 euros pour G. Assurance responsabilité civile professionnelle par MMA Entreprise n° de police 120.137.405 Le professionnel garantit et sécurise votre projet immobilier. (3.75 % honoraires TTC à la charge de l'acquéreur.)
Copropriété de 6 lots - dont 6 lots habitation.().
Catherine MONTHEARD (EI) Agent Commercial - Numéro RSAC : TOULON 838140440 - .
Voir plus

Référence: 398990CMD2711CMD
Bien en copropriété. Nombre de lots : 6.
Honoraires d'agence de 3.75% à la charge de l'acquéreur
DPE
A
B
C
D
E
F
G
GES
A
B
C
D
E
F
G

Prêt immobilier

Vous souhaitez connaître votre capacité d’emprunt et trouver le meilleur crédit immobilier ?
Réaliser une simulation gratuite

Maison à BORMES-LES-MIMOSAS
Maison à BORMES-LES-MIMOSAS
Maison à BORMES-LES-MIMOSAS
Maison à BORMES-LES-MIMOSAS
Maison à BORMES-LES-MIMOSAS
Maison à BORMES-LES-MIMOSAS
Maison à BORMES-LES-MIMOSAS
Maison à BORMES-LES-MIMOSAS
Maison à BORMES-LES-MIMOSAS
Maison à BORMES-LES-MIMOSAS
Maison à BORMES-LES-MIMOSAS
Maison à BORMES-LES-MIMOSAS
Maison à BORMES-LES-MIMOSAS
Maison à BORMES-LES-MIMOSAS
Maison à BORMES-LES-MIMOSAS
Maison à BORMES-LES-MIMOSAS
Ce site est protégé par reCAPTCHA la Politique de confidentialité et les Conditions d’utilisation de Google s’appliquent.
Obtenir un prêt immobilier au meilleur taux ?

En poursuivant votre navigation sans modifier vos paramètres, vous acceptez l'utilisation de cookies susceptibles de réaliser des statistiques de visite. Cliquez ici pour plus d'informations