Maison mont pres chambord 6 pièce(s) 74 m2

— Mont-Pres-Chambord 41250 —
105 990 €
74 m² / 85 m²
6 pièces

A VENDRE - Découvrez ce bien d'exception, idéalement situé dans un lotissement parfaitement entretenu, entièrement goudronné et offrant un accès direct au drive d'un supermarché : un emplacement rare, pratique et recherché sur Mont-Près-Chambord ( 41 ).

Cette maison de 74m2 est vendue en cours de travaux, avec devis fournis travaux estimés à 75 000 euros : devis à l'appui.

Une excellente opportunité pour personnaliser votre intérieur selon vos goûts tout en maîtrisant votre budget.

Projection de l'aménagement :

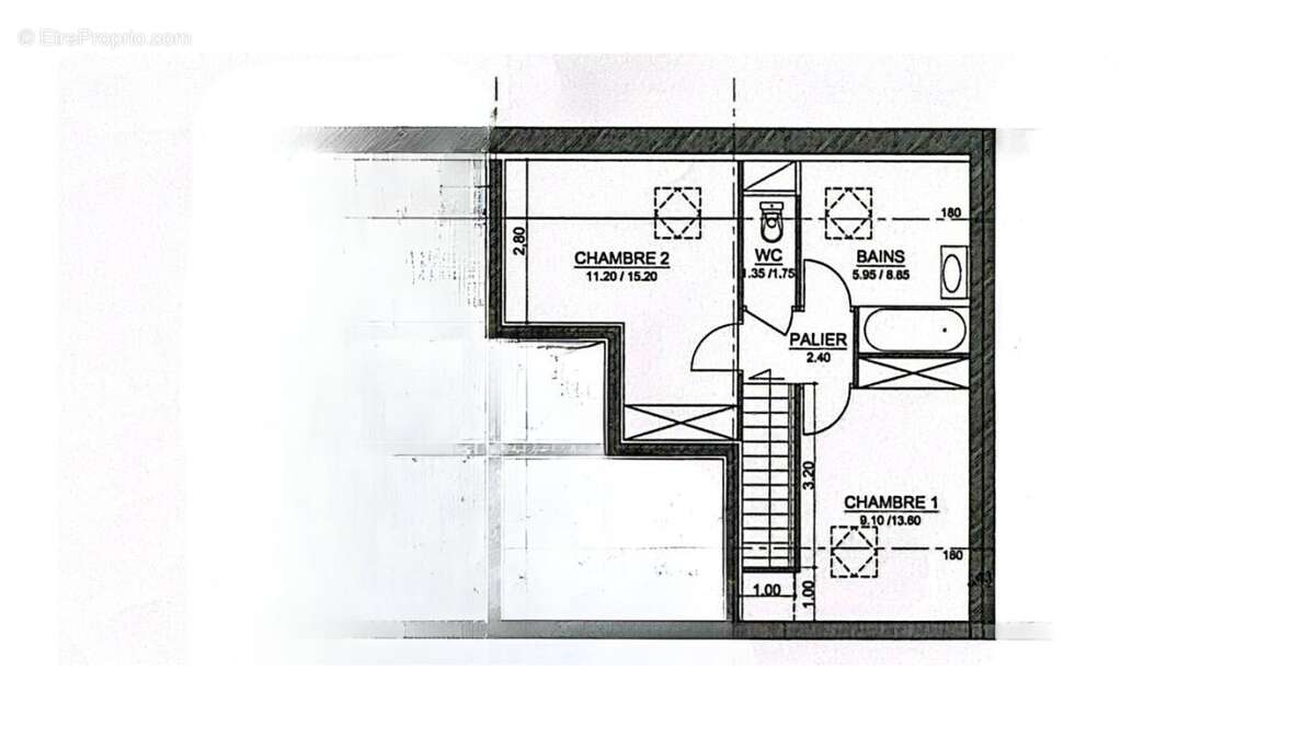
Un salon lumineux
Une salle à manger ouverte
Une cuisine fonctionnelle
Une salle d'eau
Un WC indépendant
Deux chambres confortables
Sur un terrain de 85m2

Le tout dans un environnement calme, agréable et proche de toutes les commodités.

Un bien rare avec beaucoup de charme

Cette maison représente une opportunité idéale pour un premier investissement, que ce soit en résidence principale ou en investissement locatif grâce à son potentiel de valorisation après travaux.

NON SOUMIS AU DPE

Budget : 105 990 euros frais d'agence de 5990 euros TTC à la
charge de l'acquéreur (soit 5,99% ) soit 100 000 euros hors
honoraires.

Pour visiter et vous accompagner dans votre projet, contactez Pauline FOURRÉ, au [Coordonnées masquées] ou, par courriel à [Coordonnées masquées].
Selon l'article L.561.5 du Code Monétaire et Financier, pour
l'organisation de la visite, la présentation d'une pièce d'identité
vous sera demandée.
Cette présente annonce a été rédigée sous la responsabilité éditoriale de Pauline FOURRÉ agissant sous le statut d'agent commercial immatriculé au RSAC 992028225 auprès de SAS PROPRIETES PRIVEES, au capital de 44 920 euros, ZAC LE CHÊNE FERRÉ - 44 ALLÉE DES CINQ CONTINENTS 44120 VERTOU; SIRET 487 624 777 00040, RCS Nantes. Carte Professionnelle Transactions sur immeubles et fonds de
commerce (T) et Gestion immobilière (G) n°CPI 44[Coordonnées masquées]10 388 délivrée par la CCI Nantes - Saint Nazaire. Compte
séquestre n°3[Coordonnées masquées] BPA SAINT-SEBASTIEN-SUR-
LOIRE (44230). Garantie GALIAN-SMABTP - 89 rue de la
Boétie, 75008 Paris - n°28137 J pour 2 000 000 euros pour T et 120
000 euros pour G. Assurance responsabilité civile professionnelle
par GALIAN-SMABTP n° de police 28137.J
Mandat réf : 430530 - Le professionnel garantit et sécurise
votre projet immobilier.
(5.99 % honoraires TTC à la charge de l'acquéreur.)

Pauline FOURRE (EI) Agent Commercial - Numéro RSAC : BLOIS 992028225 - .
Voir plus

Référence: 430530PAFO
Honoraires d'agence de 5.99% à la charge de l'acquéreur

Prêt immobilier

Vous souhaitez connaître votre capacité d’emprunt et trouver le meilleur crédit immobilier ?
Réaliser une simulation gratuite

Maison à MONT-PRES-CHAMBORD
Maison à MONT-PRES-CHAMBORD
Maison à MONT-PRES-CHAMBORD
Maison à MONT-PRES-CHAMBORD
Ce site est protégé par reCAPTCHA la Politique de confidentialité et les Conditions d’utilisation de Google s’appliquent.
Obtenir un prêt immobilier au meilleur taux ?

En poursuivant votre navigation sans modifier vos paramètres, vous acceptez l'utilisation de cookies susceptibles de réaliser des statistiques de visite. Cliquez ici pour plus d'informations