Bénéficiez des services de nos partenaires locaux soigneusement sélectionnés
pour vous accompagner dans votre parcours d'achat immobilier

Ensemble 208 m² maison + studio - piscine - garages avec terrain 2621 m²

— Carbon-Blanc 33560 —
659 000 €
208 m² / 2 621 m²
8 pièces
parkingbalcon/terrassejardinpiscine

Nos partenaires locaux
Idéal pour un projet familial partagé ou professionnel pour cette maison lumineuse dotée de belles prestations de confort, elle est située dans un environnement calme et sans vis à vis et exposée plein Sud sur un terrain arboré.
Proche des commerces et des axes rocades et autoroutes - Collèges et lycées avec transports bus, Station Tram La Gardette, Gare SNCF Carbon Blanc avec un accès rapide à Bordeaux centre en 15 mn (Gare TGV et AÉROPORT).
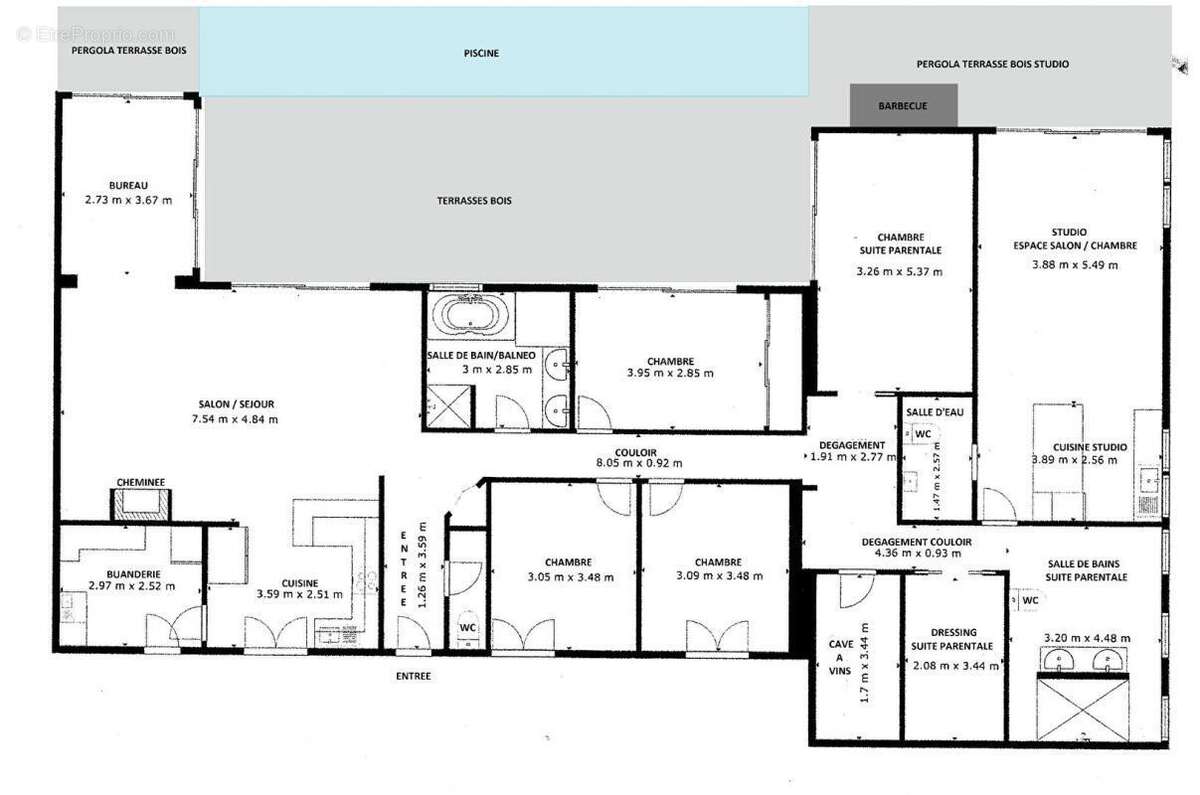
Elle est composée en plain-pied de 8 pièces aux normes PMR (Personne à Mobilité Réduite) :
- une entrée avec wc indépendant
- salon séjour lumineux de 37 m² avec cheminée insert et une vue panoramique sur le jardin et la piscine.
- bureau de 10 m² avec une vue et un accès sur la terrasse de la piscine.
- cuisine ouverte de 9 m² aménagée et équipée avec une arrière cuisine/buanderie de 7.50 m².
- 3 chambres de 11 m² dont 2 avec placards et dressing.
- salle de bains, double vasque, douche et baignoire balnéo.
- 1 chambre "suite parentale" de 40 m² avec dressing, salle d'eau, douche, double vasque et wc .
- espace climatisé pour la cave à vins réfrigérée et tempérée pour la meilleure conservation des vins.

Un studio indépendant de 35 m² pour un projet familial partagé en logement, salle de jeux ,vidéo, sports ... ou bureau professionnel locatif : (aux normes PMR Personne à Mobilité Réduite)
- un espace salon/chambre - une cuisine aménagée et équipée - salle d'eau avec wc - espace terrasse avec barbecue.
Chauffage : pompe à chaleur air/eau - chaudière pour production d'eau chaude - cheminée avec insert - double vitrages alu - volets roulants électriques .

Extérieurs : 200 m² de terrasses et pergolas bois exposées plein sud avec sa piscine 10 x 5 m et rideau de sécurité électrique récent - local indépendant avec le matériel récent pompe à chaleur et filtration (achats Mai 2025)
- espace terrasse avec barbecue. double garage de 50 m² avec atelier et serre de jardin - cabanon de jardin en bois de 10 m² - hangar métallique de 20 m² - Portail automatisé - grand parking pour 5/7 véhicules avec carport - terrain avec clôtures - tout à l'égout - connexion fibre - taxe foncière : 3500 euros /an.

TRAVAUX RÉCENTS MAI 2025 (25 000 Euros)
- Peintures murs et façades, avant-toits, portes, volets, pergolas bois ....
- Peinture toiture imperméabilisante ( étanchéité tuiles)
- Peinture intérieure Studio ( murs et plafond)
- Matériels neufs du local piscine ( changement pompe à chaleur et système de filtration avec nettoyage par des cartouches)

Pour visiter et vous accompagner dans votre projet, contactez Laurent ARNAUD au [Coordonnées masquées] ou par courriel à [Coordonnées masquées]
Selon l'article L.561.5 du Code Monétaire et Financier, pour l'organisation de la visite, la présentation d'une pièce d'identité vous sera demandée. Le professionnel garantit et sécurise votre projet immobilier.
Cette maison avec son studio est au prix de 659 000 euros (dont 2.97% d'honoraires à la charge acquéreur. Mandat n°427 375)
L'information quant à l'ERP concernant cette annonce est à retrouver sur le site Géorisques.
Cette présente annonce a été rédigée sous la responsabilité éditoriale de Laurent ARNAUD agissant sous le statut d'agent commercial immatriculé au RSAC 501173728 BORDEAUX auprès de la SAS PROPRIETES PRIVEES, au capital de 40 000 euros, ZAC LE CHÊNE FERRÉ - 44 ALLÉE DES CINQ CONTINENTS 44120 VERTOU; SIRET 487 624 777 00040, RCS Nantes. Carte professionnelle Transactions sur immeubles et fonds de commerce (T) et Gestion immobilière (G) n° CPI 44[Coordonnées masquées]10 388 délivrée par la CCI Nantes - Saint Nazaire. Compte séquestre n°3[Coordonnées masquées] BPA SAINT-SEBASTIEN-SUR-LOIRE (44230) ; Garantie GALIAN - 89 rue de la Boétie, 75008 Paris - n°28137 J pour 2 000 000 euros pour T et 120 000 euros pour G. Assurance responsabilité civile professionnelle par MMA Entreprise n° de police 120.137.405 (2.97 % honoraires TTC à la charge de l'acquéreur.)

Laurent ARNAUD (EI) Agent Commercial - Numéro RSAC : 501173728 BORDEAUX - .
Les informations sur les risques auxquels ce bien est exposé sont disponibles sur le site Géorisques : www. georisques. gouv. fr
Voir plus

Référence: 427375NAD
Honoraires d'agence de 2.97% à la charge de l'acquéreur
DPE
A
B
C
D
E
F
G
GES
A
B
C
D
E
F
G

Prêt immobilier

Vous souhaitez connaître votre capacité d’emprunt et trouver le meilleur crédit immobilier ?
Réaliser une simulation gratuite

Maison à CARBON-BLANC
Maison à CARBON-BLANC
Maison à CARBON-BLANC
Maison à CARBON-BLANC
Maison à CARBON-BLANC
Maison à CARBON-BLANC
Maison à CARBON-BLANC
Maison à CARBON-BLANC
Maison à CARBON-BLANC
Maison à CARBON-BLANC
Maison à CARBON-BLANC
Maison à CARBON-BLANC
Maison à CARBON-BLANC
Maison à CARBON-BLANC
Maison à CARBON-BLANC
Maison à CARBON-BLANC
Maison à CARBON-BLANC
Maison à CARBON-BLANC
Ce site est protégé par reCAPTCHA la Politique de confidentialité et les Conditions d’utilisation de Google s’appliquent.
Obtenir un prêt immobilier au meilleur taux ?

En poursuivant votre navigation sans modifier vos paramètres, vous acceptez l'utilisation de cookies susceptibles de réaliser des statistiques de visite. Cliquez ici pour plus d'informations