Bénéficiez des services de nos partenaires locaux soigneusement sélectionnés
pour vous accompagner dans votre parcours d'achat immobilier

Maison ugine 6 pièces 3 appartements 175 m2

— Ugine 73400 —
200 000 €
175 m² / 565 m²
6 pièces
parkingbalcon/terrassejardin

Nos partenaires locaux
Ce bien a trouvé ces nouveaux propriétaires ! Félicitations aux vendeurs et acquéreurs. Vous avez un projet immobilier (achat, vente ou locatif ) ? Parlons-en ensemble !
Maison trois appartements, deux garages
En exclusivité Maïmouna LY vous propose à la vente sur la commune d'Ugine 73400 Savoie a moins de 20 minutes des stations de ski de l'espace diamant une maison 6 pièces de 175 m² environ sur un terrain de 565 m² composée de 3 appartements comme suit :
Au 2e étage T2 de 50 m² environ l'entrée qui distribue un séjour, cuisine semi-ouverte, une chambre de 12m², un bureau de 14 m² et une salle d'eau.
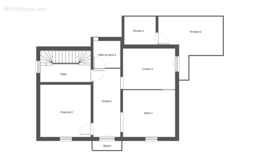
Au 1er étage T2 de 52 m² environ pièce palière qui dessert une cuisine semi-ouverte, un séjour, une chambre de 13 m², une salle de bains avec toilette, une remise, une terrasse et un balcon.
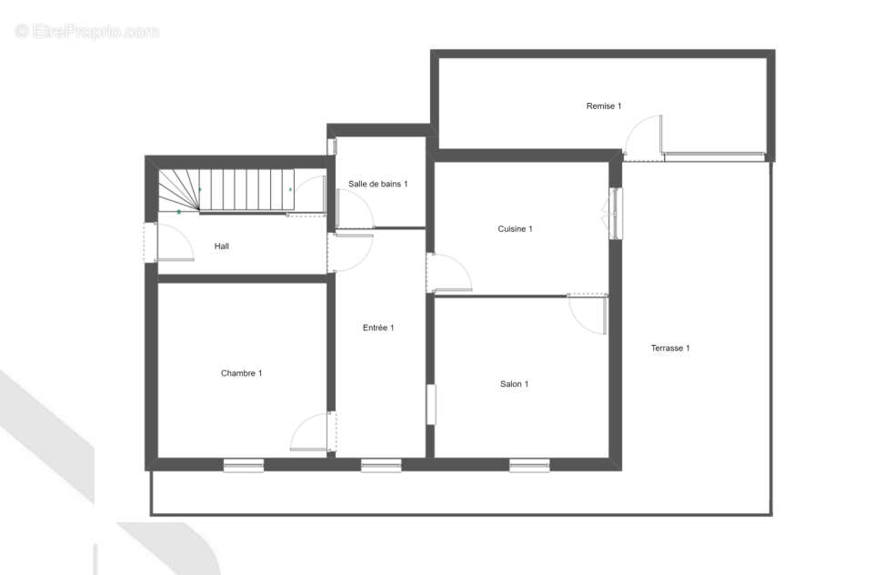
Le rez-de-chaussée un T2 de 54 m² environ avec une pièce palière, un séjour, une cuisine, une chambre de 15 m², une salle de bains, une remise, une terrasse avec jardinet.
Cette maison vous offre également 2 garages et 3 caves.
Deux appartements sont loués, un en location meublé.
Ugine entre tradition et modernité a 15 km du site olympique d'Albertville et à moins d'une heure des stations alpines du Mont Blanc, du lac d'Annecy, du Bourget ou de la Tarentaise. Entre nous, il fait bon vivre à Ugine, c'est une ville dynamique et chaleureuse. Contactez-moi, je vous en dirai plus.

Prix de vente : 200 000 euros (Honoraires d'agence à la charge du vendeur).
Pour visiter et vous accompagner dans votre projet, contactez Maïmouna LY, au [Coordonnées masquées] ou par courriel à [Coordonnées masquées]
DPE F GES F
Montant estimé des dépenses annuelles d'énergie pour un usage standard entre 3510 et 4800 euros indexées aux années 2021, 2022 et 2023 (ou 2021 uniquement) (si logement F ou G 'Logement à consommation énergétique excessive : classe F ou G')
Pour visiter et vous accompagner dans votre projet, contactez Maïmouna LY, au [Coordonnées masquées] ou, par courriel à [Coordonnées masquées].
Selon l'article L.561.5 du Code Monétaire et Financier, pour l'organisation de la visite, la présentation d'une pièce d'identité vous sera demandée.
Cette présente annonce a été rédigée sous la responsabilité éditoriale de Maïmouna LY agissant sous le statut d'agent commercial immatriculé au RSAC CHAMBERY 839110053 auprès de SAS PROPRIETES PRIVEES, au capital de 44 920 euros, ZAC LE CHÊNE FERRÉ - 44 ALLÉE DES CINQ CONTINENTS 44120 VERTOU; SIRET 487 624 777 00040, RCS Nantes. Carte Professionnelle Transactions sur immeubles et fonds de commerce (T) et Gestion immobilière (G) n°CPI 44[Coordonnées masquées]10 388 délivrée par la CCI Nantes - Saint Nazaire. Compte séquestre n°3[Coordonnées masquées] BPA SAINT-SEBASTIEN-SUR-LOIRE (44230). Garantie GALIAN-SMABTP - 89 rue de la Boétie, 75008 Paris - n°28137 J pour 2 000 000 euros pour T et 120 000 euros pour G. Assurance responsabilité civile professionnelle par GALIAN-SMABTP n° de police 28137.J

Mandat réf : 426635 - Le professionnel garantit et sécurise votre projet immobilier.

Maïmouna LY (EI) Agent Commercial - Numéro RSAC : CHAMBERY 839110053 - .
Voir plus

Référence: 426635MLY
Honoraires à la charge du vendeur.
DPE
A
B
C
D
E
F
G
GES
A
B
C
D
E
F
G

Prêt immobilier

Vous souhaitez connaître votre capacité d’emprunt et trouver le meilleur crédit immobilier ?
Réaliser une simulation gratuite

Maison à UGINE
Maison à UGINE
Maison à UGINE
Maison à UGINE
Maison à UGINE
Maison à UGINE
Maison à UGINE
Maison à UGINE
Maison à UGINE
Maison à UGINE
Maison à UGINE
Maison à UGINE
Maison à UGINE
Maison à UGINE
Maison à UGINE
Maison à UGINE
Maison à UGINE
Maison à UGINE
Ce site est protégé par reCAPTCHA la Politique de confidentialité et les Conditions d’utilisation de Google s’appliquent.
Obtenir un prêt immobilier au meilleur taux ?

En poursuivant votre navigation sans modifier vos paramètres, vous acceptez l'utilisation de cookies susceptibles de réaliser des statistiques de visite. Cliquez ici pour plus d'informations