Bénéficiez des services de nos partenaires locaux soigneusement sélectionnés
pour vous accompagner dans votre parcours d'achat immobilier

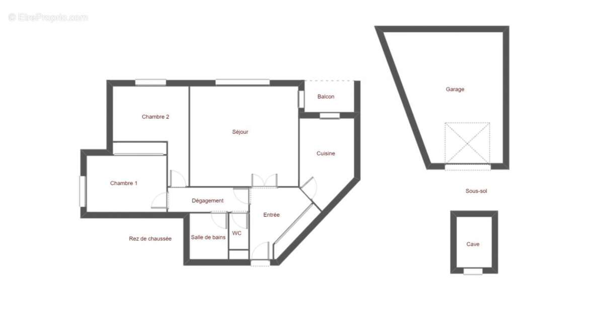
Appartement caluire et cuire 3 pièce(s) 73 m2

— Caluire-Et-Cuire 69300 —
205 000 €
73 m²
3 pièces
parkingbalcon/terrasseascenseur

Nos partenaires locaux
A VENDRE - T3 à Saint-Clair, Caluire

IDEAL PREMIER ACHAT OU INVESTISSEURS !

EXCLUSIVITE - Situé dans le quartier de Saint-Clair, cet appartement bénéficie d'un emplacement pratique et agréable. A quelques minutes des berges du Rhône, du Parc de la Tête d'Or et de la Cité Internationale, vous profiterez d'un accès facile à des espaces verts pour vos balades ou vos activités sportives. Bien desservi par les transports en commun, le secteur permet de rejoindre rapidement le centre de Lyon tout en offrant un cadre de vie calme. Commerces, écoles et services de proximité sont de véritables atouts du quartier, facilitant votre vie de tous les jours.

Cet appartement T3 de 73 m² dispose d'un balcon surélevé, situé à hauteur d'un 2ème étage, qui apporte lumière et une vue dégagée. Il se compose d'un séjour chaleureux, une cuisine séparée et aménagée, de deux chambres, d'une salle de bains, et de WC séparés, offrant un agencement confortable.

Une cave complète ce bien.

Possibilité d'acquérir un garage en sus.

MON AVIS : Si vous recherchez un appartement à personnaliser, sur un secteur attrayant, n'attendez plus, ce bien est fait pour vous !
Quelques travaux sont à prévoir, ce qui vous donne la possibilité de le transformer à votre goût et de créer un intérieur à votre image.

Je suis à votre écoute pour répondre à vos questions et vous ouvrir la porte de votre futur "CHEZ VOUS" !

DPE : Classe D - GES : B - Montant moyen estimé des
dépenses annuelles d'énergie pour un usage
standard établi à partir des prix de l'énergie de
l'année 2021 : entre 1 170 euros et 1 620 euros.

Pour visiter et vous accompagner dans votre projet, contactez Pauline VUITTON, au [Coordonnées masquées] ou, par courriel à [Coordonnées masquées].
Selon l'article L.561.5 du Code Monétaire et Financier, pour l'organisation de la visite, la présentation d'une pièce d'identité vous sera demandée.
Cette présente annonce a été rédigée sous la responsabilité éditoriale de Pauline VUITTON agissant sous le statut d'agent commercial auprès de SAS PROPRIETES PRIVEES. Cette vente est garantie 12 mois.

Cette présente annonce a été rédigée sous la responsabilité éditoriale de Pauline VUITTON agissant sous le statut d'agent commercial immatriculé au RSAC lyon 903962611 auprès de la SAS PROPRIETES PRIVEES , au capital de 44 920 euros, ZAC LE CHÊNE FERRÉ - 44 ALLÉE DES CINQ CONTINENTS 44120 VERTOU; SIRET 487 624 777 00040, RCS Nantes. Carte Professionnelle Transactions sur immeubles et fonds de commerce (T) et Gestion immobilière (G) n°CPI 44[Coordonnées masquées]10 388 délivrée par la CCI Nantes - Saint Nazaire. Compte séquestre n°3[Coordonnées masquées] BPA SAINT-SEBASTIEN-SUR-LOIRE (44230). Garantie GALIAN - 89 rue de la Boétie, 75008 Paris - n°28137 J pour 2 000 000 euros pour T et 120 000 euros pour G. Assurance responsabilité civile professionnelle par MMA Entreprise n° de police 120.137.405

Mandat réf : 426959- Le professionnel garantit et sécurise votre projet immobilier.

Pauline VUITTON (EI) Agent Commercial - Numéro RSAC : lyon 903962611 - .
Les informations sur les risques auxquels ce bien est exposé sont disponibles sur le site Géorisques : www. georisques. gouv. fr
Voir plus

Référence: 426959PVU
Bien en copropriété. Charges de copropriété : 85 €.
Honoraires à la charge du vendeur.
DPE
A
B
C
D
E
F
G
GES
A
B
C
D
E
F
G

Prêt immobilier

Vous souhaitez connaître votre capacité d’emprunt et trouver le meilleur crédit immobilier ?
Réaliser une simulation gratuite

Appartement à CALUIRE-ET-CUIRE
Appartement à CALUIRE-ET-CUIRE
Appartement à CALUIRE-ET-CUIRE
Appartement à CALUIRE-ET-CUIRE
Appartement à CALUIRE-ET-CUIRE
Appartement à CALUIRE-ET-CUIRE
Appartement à CALUIRE-ET-CUIRE
Appartement à CALUIRE-ET-CUIRE
Appartement à CALUIRE-ET-CUIRE
Appartement à CALUIRE-ET-CUIRE
Ce site est protégé par reCAPTCHA la Politique de confidentialité et les Conditions d’utilisation de Google s’appliquent.
Obtenir un prêt immobilier au meilleur taux ?

En poursuivant votre navigation sans modifier vos paramètres, vous acceptez l'utilisation de cookies susceptibles de réaliser des statistiques de visite. Cliquez ici pour plus d'informations