Bénéficiez des services de nos partenaires locaux soigneusement sélectionnés
pour vous accompagner dans votre parcours d'achat immobilier

Appartement 54m² à colmar

— Colmar 68000 —
101 500 €
54 m²
3 pièces
parking

Nos partenaires locaux
Situé au coeur de la charmante ville de Colmar (68000), cet appartement bénéficie d'un emplacement prisé, offrant un cadre de vie agréable à ses habitants. Proche des commerces, des écoles et des transports en commun, il allie praticité et tranquillité, idéal pour profiter pleinement de tout ce que la région a à offrir.

À l'extérieur, cet appartement rénové se distingue par son balcon offrant un espace extérieur privilégié, parfait pour se détendre en toute tranquillité. De plus, il dispose d'une cave pour un espace de rangement supplémentaire et d'une place de parking privative pour un confort de vie optimal.

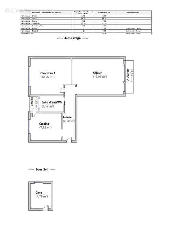
À l'intérieur, vous découvrirez un appartement de 54 m² comprenant 3 pièces, dont 2 chambres. Doté d'une cuisine équipée, il offre tout le nécessaire pour une vie quotidienne facilitée. Situé au 4e étage avec ascenseur d'un immeuble construit en 1972, ce bien classé D saura séduire ceux à la recherche d'un appartement fonctionnel et bien entretenu.

Le bien comprend 1 lot, et il est situé dans une copropriété de 55 lots (les charges courantes annuelles moyennes de copropriété sont de 2000 ¤ et le syndicat des copropriétaires ne fait pas l'objet d'une procédure citée à l'article L. 721-1 du code de la construction et de l'habitation).

Les informations sur les risques auxquels ce bien est exposé sont disponibles sur le site Géorisques : www.georisques.gouv.fr
Prix de vente : 101 500 ¤
Honoraires charge vendeur

Contactez votre conseiller SAFTI : Yacine CHOUAR, Tél. : [Coordonnées masquées], E-mail : [Coordonnées masquées] - EI - Agent commercial immatriculé au RSAC de sous le numéro.
Informations LOI ALUR :
Soumis au régime de copropriété.
Nombre de lots : 55.
Quote part annuelle(moyenne) : 2000 euros.
Honoraires charge vendeur. (gedeon_26118_32240849)
Voir plus

Référence: 1568080
Bien en copropriété. Nombre de lots : 55. Charges de copropriété : 2000 €.
Honoraires à la charge du vendeur.
Barème des honoraires
DPE
A
B
C
D
E
F
G
GES
A
B
C
D
E
F
G

Prêt immobilier

Vous souhaitez connaître votre capacité d’emprunt et trouver le meilleur crédit immobilier ?
Réaliser une simulation gratuite

Photo 1 - Appartement à COLMAR
Photo 1
Photo 2 - Appartement à COLMAR
Photo 2
Ce site est protégé par reCAPTCHA la Politique de confidentialité et les Conditions d’utilisation de Google s’appliquent.
Obtenir un prêt immobilier au meilleur taux ?

En poursuivant votre navigation sans modifier vos paramètres, vous acceptez l'utilisation de cookies susceptibles de réaliser des statistiques de visite. Cliquez ici pour plus d'informations