Appartement 44m² à chateauneuf-grasse

— Chateauneuf-Grasse 06740 —
325 000 €
44 m²
2 pièces

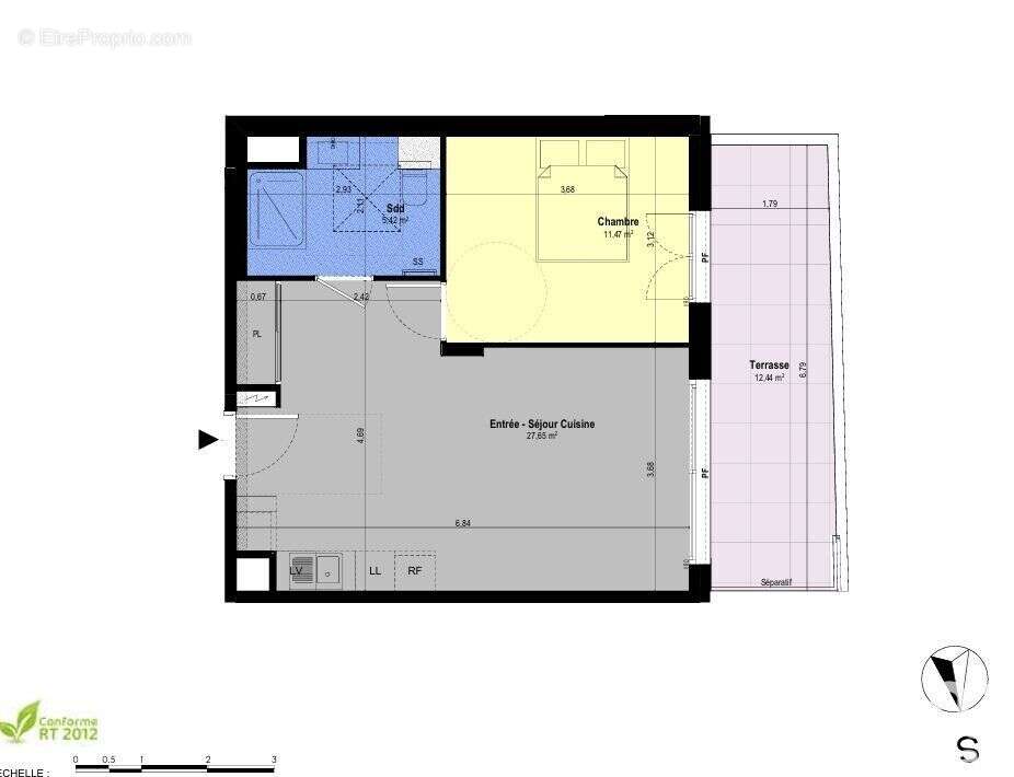
Iad France - Cyril Fournier ([Coordonnées masquées]) vous propose : À VENDRE - Spacieux T2 de 44 m² environavec terrasse à Châteauneuf-Grasse, dans un cadre résidentiel recherché
Situé à deux pas d'un parcours de golf renommé, cet appartement 2 pièces offre un cadre de vie paisible entre nature et commodités, au cOEur d'un environnement verdoyant et résidentiel.

Un intérieur confortable et lumineux
o Belle pièce de vie avec cuisine ouverte, donnant sur une grande terrasse exposée

o Salle de bains indépendante et WC séparés
o Prestations soignées : carrelage grand format, menuiseries aluminium, double vitrage, volets motorisés
o Climatisation réversible, domotique pour un confort optimal au quotidien

Un cadre privilégié pour vivre ou investir
o Résidence intimiste avec piscine et jardins paysagers
o Quartier calme, entouré de villas et de résidences de standing
o Terrasses ou jardins privatifs aménagés pour chaque logement
o Accès sécurisé, environnement serein à quelques minutes de toutes commodités

Emplacement stratégique dans l'arrière-pays cannois
o À proximité immédiate du golf
o 10 min de Valbonne, 16 min de Sophia-Antipolis
o 11 min de l'autoroute A8
o 30 à 35 min de Cannes, Nice, et de l'aéroport

Un bien rare, idéal pour profiter du calme, de l'espace et d'un art de vivre entre collines et littoral.

Honoraires d'agence à la charge du vendeur. Bien non soumis au DPE. Les informations sur les risques auxquels ce bien est exposé sont disponibles sur le site Géorisques : www.georisques.gouv.fr. La présente annonce immobilière a été rédigée sous la responsabilité éditoriale de M. Cyril Fournier EI (ID 57751), mandataire indépendant en immobilier (sans détention de fonds), agent commercial de la SAS I@D France immatriculé au RSAC de Cannes sous le numéro 751452475, titulaire de la carte de démarchage immobilier pour le compte de la société I@D France SAS.
Retrouvez tous nos biens sur notre site internet. www.iadfrance.fr.
Informations LOI ALUR :
Honoraires charge vendeur. (gedeon_6727_30991682)
Voir plus

Référence: 1709384-13
Honoraires à la charge du vendeur.

Prêt immobilier

Vous souhaitez connaître votre capacité d’emprunt et trouver le meilleur crédit immobilier ?
Réaliser une simulation gratuite

Photo 1 - Appartement à CHATEAUNEUF-GRASSE
Photo 1
Photo 2 - Appartement à CHATEAUNEUF-GRASSE
Photo 2
Photo 3 - Appartement à CHATEAUNEUF-GRASSE
Photo 3
Photo 4 - Appartement à CHATEAUNEUF-GRASSE
Photo 4
Ce site est protégé par reCAPTCHA la Politique de confidentialité et les Conditions d’utilisation de Google s’appliquent.
Obtenir un prêt immobilier au meilleur taux ?

En poursuivant votre navigation sans modifier vos paramètres, vous acceptez l'utilisation de cookies susceptibles de réaliser des statistiques de visite. Cliquez ici pour plus d'informations