Bénéficiez des services de nos partenaires locaux soigneusement sélectionnés
pour vous accompagner dans votre parcours d'achat immobilier

Appartement 45m² à annecy

— Annecy 74000 —
365 000 €
45 m²
2 pièces
parkingbalcon/terrasseascenseur

Nos partenaires locaux
Iad France - Sarah Rozière ([Coordonnées masquées]) vous propose : Appartement 2 pièces avec balcon à Anncey.

Au cOEur du Quartier des Hirondelles, adresse contemporaine et verte signée par Nicolas Laisné Architectes et Groupe 6, la résidence Hypnose s'inscrit dans une démarche innovante, mêlant design et performance. Disponible 2028.

Située avenue des Hirondelles, à quelques minutes du centre d'Annecy, cette résidence conjugue sérénité résidentielle et proximité urbaine.

Un appartement intimiste :
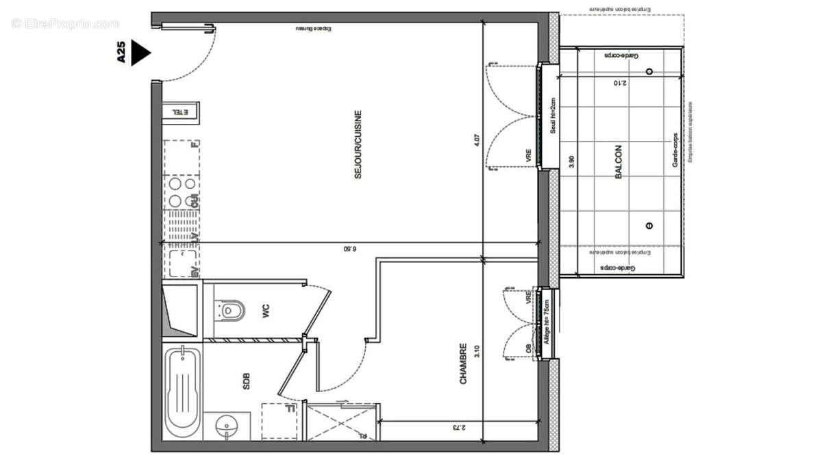
Au 2 ème étage, découvrez un 2 pièces de 45 m² environ habitables, prolongé par un balcon de 8 m² environ exposé plein sud.

- Séjour / cuisine de plus de 29 m² environ, ouvert sur l'extérieur.
- Chambre confortable de 11 m² environ.
- Salle d'eau contemporaine avec douche.
- Cave privative, véritable atout supplémentaire.
- Garage.

Belles prestations :
- Menuiseries bois-aluminium avec double vitrage isolant.
- Volets roulants électriques.
- Chauffage collectif biomasse (pellets), performant et durable
- Résidence sécurisée avec visiophone.

Une adresse recherchée à Annecy :
- À deux pas des commerces et services.
- À proximité immédiate des liaisons vers le centre-ville et le lac.
- Un quartier neuf et verdoyant, pensé comme un nouvel art de vivre.

Cet appartement conjugue fonctionnalité, confort moderne et adresse de choix dans l'un des secteurs les plus dynamiques d'Annecy.

N'hésitez pas à me contacter pour plus d'informations ou pour un accompagnement sur mesure.

Honoraires d'agence à la charge du vendeur. Bien non soumis au DPE. Les informations sur les risques auxquels ce bien est exposé sont disponibles sur le site Géorisques : www.georisques.gouv.fr. La présente annonce immobilière a été rédigée sous la responsabilité éditoriale de Mlle Sarah Rozière EI (ID 83696), mandataire indépendant en immobilier (sans détention de fonds), agent commercial de la SAS I@D France immatriculé au RSAC de Clermont-Ferrand sous le numéro 978616993, titulaire de la carte de démarchage immobilier pour le compte de la société I@D France SAS.
Retrouvez tous nos biens sur notre site internet. www.iadfrance.fr.
Informations LOI ALUR :
Honoraires charge vendeur. (gedeon_6727_31880046)
Voir plus

Référence: 1845935-19
Honoraires à la charge du vendeur.

Prêt immobilier

Vous souhaitez connaître votre capacité d’emprunt et trouver le meilleur crédit immobilier ?
Réaliser une simulation gratuite

Photo 1 - Appartement à ANNECY
Photo 1
Photo 2 - Appartement à ANNECY
Photo 2
Photo 3 - Appartement à ANNECY
Photo 3
Photo 4 - Appartement à ANNECY
Photo 4
Photo 5 - Appartement à ANNECY
Photo 5
Photo 6 - Appartement à ANNECY
Photo 6
Photo 7 - Appartement à ANNECY
Photo 7
Photo 8 - Appartement à ANNECY
Photo 8
Photo 9 - Appartement à ANNECY
Photo 9
Ce site est protégé par reCAPTCHA la Politique de confidentialité et les Conditions d’utilisation de Google s’appliquent.
Obtenir un prêt immobilier au meilleur taux ?

En poursuivant votre navigation sans modifier vos paramètres, vous acceptez l'utilisation de cookies susceptibles de réaliser des statistiques de visite. Cliquez ici pour plus d'informations