Bénéficiez des services de nos partenaires locaux soigneusement sélectionnés
pour vous accompagner dans votre parcours d'achat immobilier

Appartement 100m² à annecy

— Annecy 74000 —
724 000 €
100 m²
4 pièces
parkingbalcon/terrasseascenseur

Nos partenaires locaux
Iad France - Sarah Rozière ([Coordonnées masquées]) vous propose : Duplex 4 pièces avec balcons à Annecy.

Au cOEur du Quartier des Hirondelles, adresse contemporaine et verte signée par Nicolas Laisné Architectes et Groupe 6, la résidence Hypnose s'inscrit dans une démarche innovante, mêlant design et performance énergétique. Disponible 2026.

Située avenue des Hirondelles, à quelques minutes du centre d'Annecy, cette résidence conjugue sérénité résidentielle et proximité urbaine.

Un appartement intimiste :
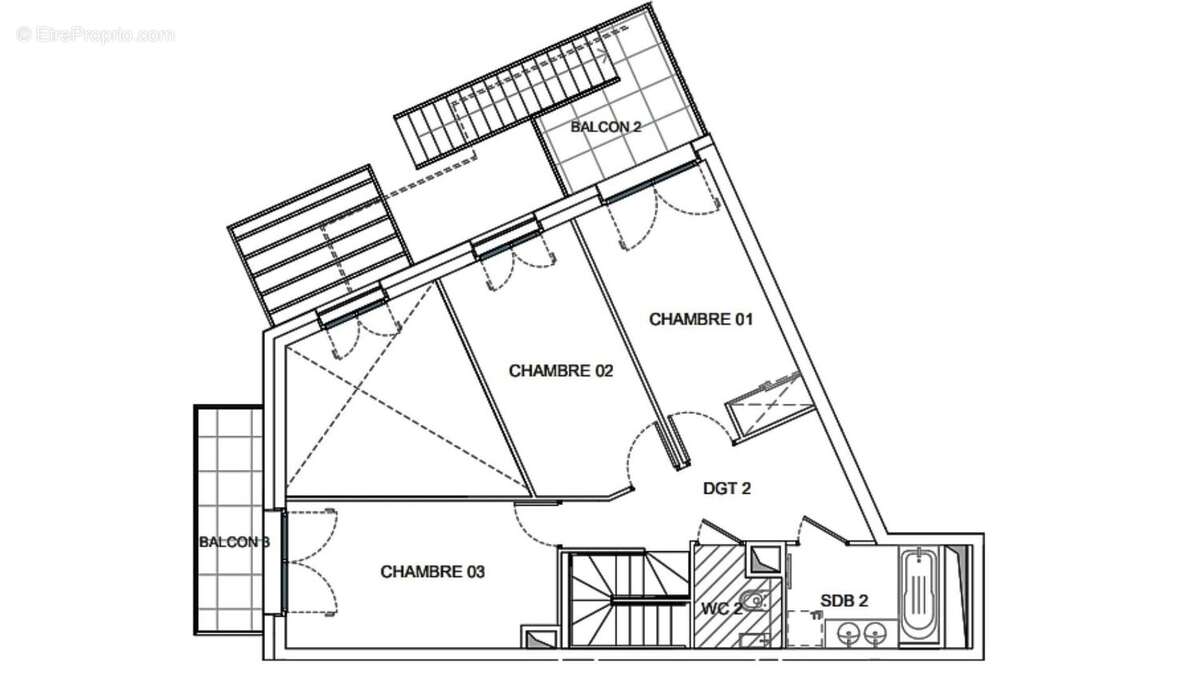
Au 4 ème étage, découvrez un duplex 4 pièces de 100 m² environ habitables, prolongé par un balcon de 20 m² environ.

- Séjour / cuisine de plus de 33 m² environ, ouvert sur l'extérieur.
- Trois belles chambres.
- Une salle d'eau, une salle de bains et deux WC séparés.
- Box sous-sol double.

Belles prestations :
- Menuiseries bois-aluminium avec double vitrage.
- Brise-soleil orientables, volets roulants électriques.
- Salle d'eau équipée avec vasque, miroir et sèche-serviettes.
- Chauffage et eau chaude par chaudière collective bois.
- Résidence sécurisée avec visiophone, digicode et accès par badge Vigik®.

Une adresse recherchée à Annecy :
- Centre historique et gare à 10 minutes à pied.
- Lac d'Annecy en 15 minutes.
- Proximité immédiate des commerces, écoles et services.
- Un quartier innovant, pensé pour conjuguer biodiversité, mobilité douce et convivialité.

Cet appartement conjugue modernité, confort et cadre privilégié, au cOEur d'un projet emblématique d'Annecy.

Contactez-moi pour plus d'informations ou pour un accompagnement sur mesure.

Honoraires d'agence à la charge du vendeur. Bien non soumis au DPE. Les informations sur les risques auxquels ce bien est exposé sont disponibles sur le site Géorisques : www.georisques.gouv.fr. La présente annonce immobilière a été rédigée sous la responsabilité éditoriale de Mlle Sarah Rozière EI (ID 83696), mandataire indépendant en immobilier (sans détention de fonds), agent commercial de la SAS I@D France immatriculé au RSAC de Clermont-Ferrand sous le numéro 978616993, titulaire de la carte de démarchage immobilier pour le compte de la société I@D France SAS.
Retrouvez tous nos biens sur notre site internet. www.iadfrance.fr.
Informations LOI ALUR :
Honoraires charge vendeur. (gedeon_6727_31886774)
Voir plus

Référence: 1845935-38
Honoraires à la charge du vendeur.

Prêt immobilier

Vous souhaitez connaître votre capacité d’emprunt et trouver le meilleur crédit immobilier ?
Réaliser une simulation gratuite

Photo 1 - Appartement à ANNECY
Photo 1
Photo 2 - Appartement à ANNECY
Photo 2
Photo 3 - Appartement à ANNECY
Photo 3
Photo 4 - Appartement à ANNECY
Photo 4
Photo 5 - Appartement à ANNECY
Photo 5
Photo 6 - Appartement à ANNECY
Photo 6
Photo 7 - Appartement à ANNECY
Photo 7
Photo 8 - Appartement à ANNECY
Photo 8
Photo 9 - Appartement à ANNECY
Photo 9
Ce site est protégé par reCAPTCHA la Politique de confidentialité et les Conditions d’utilisation de Google s’appliquent.
Obtenir un prêt immobilier au meilleur taux ?

En poursuivant votre navigation sans modifier vos paramètres, vous acceptez l'utilisation de cookies susceptibles de réaliser des statistiques de visite. Cliquez ici pour plus d'informations