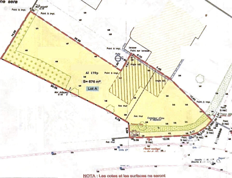
Terrain 676m² à bourgneuf-en-retz

— Bourgneuf-En-Retz 44580 —
119 000 €
676 m²

Iad France - Lucie Boue vous propose : Secteur Bourgneuf en Retz - Terrain à Bâtir de 676 m²
Ce beau terrain idéalement exposé est proche des commodités et dans un secteur calme.
- Libre de constructeur
- Zone Ub
- compteur d'eau installé et raccordement au tout à l'égout
- terrain clôturé

A prévoir:
*viabilisation en électricité et télécom, les réseaux sont à proximité
*raccordement


Honoraires d'agence à la charge du vendeur.
Bien non soumis au DPE. Les informations sur les risques auxquels ce bien est exposé, y compris l'obligation légale de débroussaillement, sont disponibles sur le site Géorisques : http://www.georisques.gouv.fr.
La présente annonce immobilière a été rédigée sous la responsabilité éditoriale de Mme Lucie Boue mandataire indépendant en immobilier (sans détention de fonds), agent commercial de la SAS I@D France immatriculé au RSAC de SAINT NAZAIRE sous le numéro 452564842, titulaire de la carte de démarchage immobilier pour le compte de la société I@D France SAS.
Informations LOI ALUR :
Honoraires charge vendeur. (gedeon_6727_32281675)
Voir plus

Référence: 1903098
Honoraires à la charge du vendeur.

Prêt immobilier

Vous souhaitez connaître votre capacité d’emprunt et trouver le meilleur crédit immobilier ?
Réaliser une simulation gratuite

Photo 1 - Terrain à BOURGNEUF-EN-RETZ
Photo 1
Photo 2 - Terrain à BOURGNEUF-EN-RETZ
Photo 2
Photo 3 - Terrain à BOURGNEUF-EN-RETZ
Photo 3
Ce site est protégé par reCAPTCHA la Politique de confidentialité et les Conditions d’utilisation de Google s’appliquent.
Obtenir un prêt immobilier au meilleur taux ?

En poursuivant votre navigation sans modifier vos paramètres, vous acceptez l'utilisation de cookies susceptibles de réaliser des statistiques de visite. Cliquez ici pour plus d'informations