Bénéficiez des services de nos partenaires locaux soigneusement sélectionnés
pour vous accompagner dans votre parcours d'achat immobilier

Voir tous les partenaires locaux

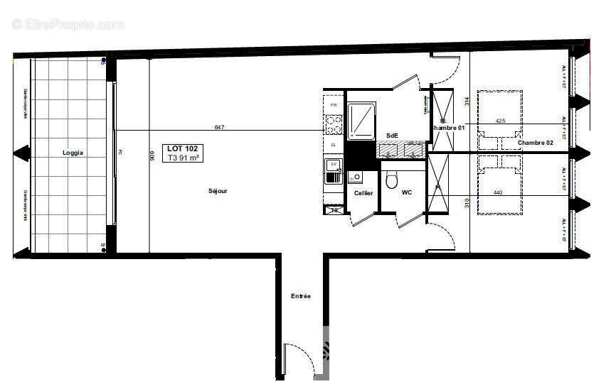
Appartement bordeaux 3 pièce(s) 90 m2

— Bordeaux 33000 —
770 000 €
90 m²
3 pièces
parkingascenseur

Nos partenaires locaux
Bordeaux Saint Bruno résidence Eterna : appartement récent vendu aménagé, meublé et décoré avec terrasse couverte (loggia) et parking. Au coeur du quartier de Saint Bruno, découvrez ce bien rare : un appartement de moins de 10 ans, vendu entièrement meublé et décoré avec goût + terrasse abritée + place de parking et ascenceur. Vous profiterez d'un espace de vie lumineux ouvert sur une cuisine équipée, de deux belles chambres, d'un cellier pratique, d'une salle de bains et d'un WC séparé. La terrasse invite à savourer chaque moment et la place de parking ainsi que l'ascenseur ajoutent un confort rare en centre-ville. Un bien clé en main, idéal pour s'installer sans attendre. Tram A à 350m, tout est à portée de main. (4.76 % honoraires TTC à la charge de l'acquéreur.) Copropriété de 21 lots (Pas de procédure en cours). Charges annuelles : 1547.84 euros.
Voir plus

Référence: 7489
Bien en copropriété. Nombre de lots : 21. Charges de copropriété : 1547 €.
Honoraires d'agence de 4.76% à la charge de l'acquéreur
Barème des honoraires
DPE
A
B
C
D
E
F
G
GES
A
B
C
D
E
F
G

Prêt immobilier

Vous souhaitez connaître votre capacité d’emprunt et trouver le meilleur crédit immobilier ?
Réaliser une simulation gratuite

Appartement à BORDEAUX
Appartement à BORDEAUX
Appartement à BORDEAUX
Appartement à BORDEAUX
Appartement à BORDEAUX
Appartement à BORDEAUX
Appartement à BORDEAUX
Appartement à BORDEAUX
Appartement à BORDEAUX
Appartement à BORDEAUX
Appartement à BORDEAUX
Appartement à BORDEAUX
Appartement à BORDEAUX
Appartement à BORDEAUX
Ce site est protégé par reCAPTCHA la Politique de confidentialité et les Conditions d’utilisation de Google s’appliquent.
Obtenir un prêt immobilier au meilleur taux ?

En poursuivant votre navigation sans modifier vos paramètres, vous acceptez l'utilisation de cookies susceptibles de réaliser des statistiques de visite. Cliquez ici pour plus d'informations