Dpt vosges (88), à vendre bains les bains immeuble 9 logements / terrain de 2226 m² / curistes

— Bains-Les-Bains 88240 —
295 000 €
407 m²
parking

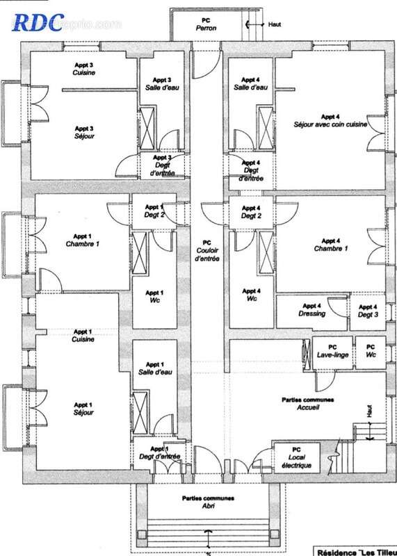
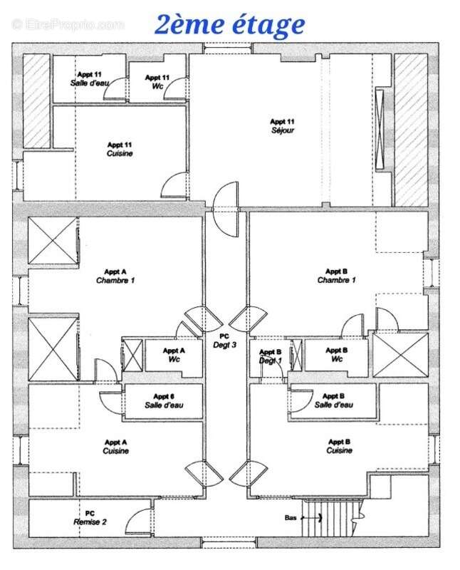
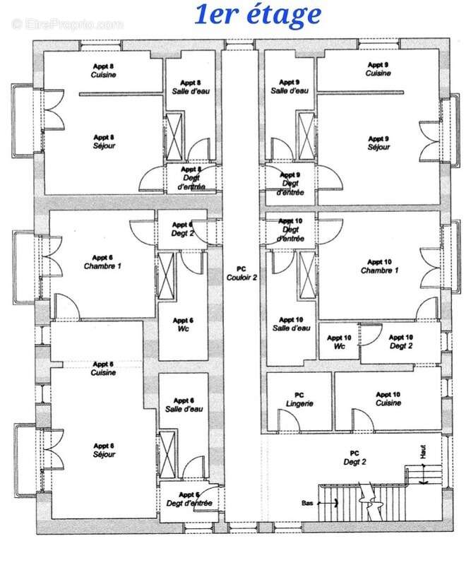
BAINS LES BAINS IMMEUBLE composé de 9 APPARTEMENTS entièrement meublés dont 5 avec balcon (idéal 'curistes')
avec PARKING sur TERRAIN de 2226 m2

IDEAL INVESTISSEUR ou MARCHAND DE BIENS (excellente rentabilité)

Cet IMMEUBLE se compose de :

* 3 appartements T2 (chaque T2 se loue 710 € pour 3 semaines) SH : environ 50 m2 par appartement
* 1 appartement T3 (se loue 760 € pour 3 semaines) Surface environ 77 m2
* 2 appartements T1 bis (chaque T1 bis se loue 610 € pour 3 semaines) Surface d'environ 48 m2 par appartement
* 3 studios (chaque studio se loue 585 € pour 3 semaines) Surface environ 28 m2 par studio.

Surface totale : 450 m²

Idéal pour investissement locatifs et curistes ou revente par lot après découpe

La situation privilégiée de la résidence avec un magnifique parc de 2.226 m², à deux pas des termes, garantit à vos locataires curistes ou vacanciers, calme, détente et bien-être.

Montant taxe foncière : 2050€/an

CA 2022 et 2023 sur demande

(visite virtuelle disponible, ainsi que les chiffres 'dépenses et recettes' 2022 et 2023

lLe planning de réservation 2025 est complet (vous encaisserez les loyers aussitôt l'acte authentique signé et récupérez les arrhes déjà versés, ainsi que le fichier 'clients'. Le propriétaire se propose également de vous aider de bon coeur si vous le souhaitez, pour que la reprise se passe dans les meilleures conditions pour vous)

Les thermes de Bains les Bains, à moins de 5 mn à pied, sont spécialisés dans le traitement de la rhumatologie et des maladies cardio-artérielles. Les eaux sont hyperthermales, bicarbonatées sodiques, oligométalliques et riches en silice et calciques. La station thermale de Bains les Bains est ouverte de la mi-mars à la mi-novembre.

à 3 h 30 de PARIS et 2h30 du LUXEMBOURG

Nous nous tenons à votre disposition également pour toute étude de financement de votre projet - A titre d'exemple, sur une durée de 20 ans, le remboursement d'emprunt serait d'environ 1.500 Eur /mois

Visite après prise de rendez-vous : 7 jours sur 7

Karine FARIGU
[Coordonnées masquées]
Tel & Whatsapp : [Coordonnées masquées]
[Coordonnées masquées]

(En raison de mes engagements quotidiens, incluant les rendez-vous 'notaires' et 'clientèle', mes déplacements en voiture (téléphone au volant interdit), je vous remercie de privilégier l'envoi de vos demandes par E-MAIL ou SMS ou message WHATSAPP, je reviendrai vers vous au + vite. Merci de votre compréhension et à bientôt)
Les honoraires sont à la charge du vendeur.
Les informations sur les risques auxquels ce bien est exposé sont disponibles sur le site Géorisques : www. georisques. gouv. fr.

Réseau Immobilier CAPIFRANCE - Votre agent commercial (RSAC N°519 916 233 - Greffe de EPINAL) Karine FARIGU Entrepreneur Individuel à Responsabilité Limitée [Coordonnées masquées] - Réf.933603
Voir plus

Référence: 340933014482
Honoraires à la charge du vendeur.
DPE
A
B
C
D
E
F
G
GES
A
B
C
D
E
F
G

Prêt immobilier

Vous souhaitez connaître votre capacité d’emprunt et trouver le meilleur crédit immobilier ?
Réaliser une simulation gratuite

Appartement à BAINS-LES-BAINS
Appartement à BAINS-LES-BAINS
Appartement à BAINS-LES-BAINS
Appartement à BAINS-LES-BAINS
Appartement à BAINS-LES-BAINS
Appartement à BAINS-LES-BAINS
Appartement à BAINS-LES-BAINS
Appartement à BAINS-LES-BAINS
Appartement à BAINS-LES-BAINS
Appartement à BAINS-LES-BAINS
Appartement à BAINS-LES-BAINS
Appartement à BAINS-LES-BAINS
Appartement à BAINS-LES-BAINS
Appartement à BAINS-LES-BAINS
Appartement à BAINS-LES-BAINS
Appartement à BAINS-LES-BAINS
Appartement à BAINS-LES-BAINS
Appartement à BAINS-LES-BAINS
Appartement à BAINS-LES-BAINS
Appartement à BAINS-LES-BAINS
Appartement à BAINS-LES-BAINS
Appartement à BAINS-LES-BAINS
Appartement à BAINS-LES-BAINS
Appartement à BAINS-LES-BAINS
Appartement à BAINS-LES-BAINS
Appartement à BAINS-LES-BAINS
Ce site est protégé par reCAPTCHA la Politique de confidentialité et les Conditions d’utilisation de Google s’appliquent.
Obtenir un prêt immobilier au meilleur taux ?

En poursuivant votre navigation sans modifier vos paramètres, vous acceptez l'utilisation de cookies susceptibles de réaliser des statistiques de visite. Cliquez ici pour plus d'informations