Habitation ou commerce ou service - couverture neuve 160m2 au sol transformable habitation + étage + 3 garages - terrain constru

— Bernay 27300 —
108 000 €
320 m²
4 pièces

Vous souhaitez réhabiliter une habitation à proximité du centre et de la gare de BERNAY,ouvrir un commerce ou encore proposer une activité de service accueillant du public, imaginez l'avenir de cet espace au calme.
TOITURE NEUVE !
Parcelle de 1000m2 (ou moins si préférence).
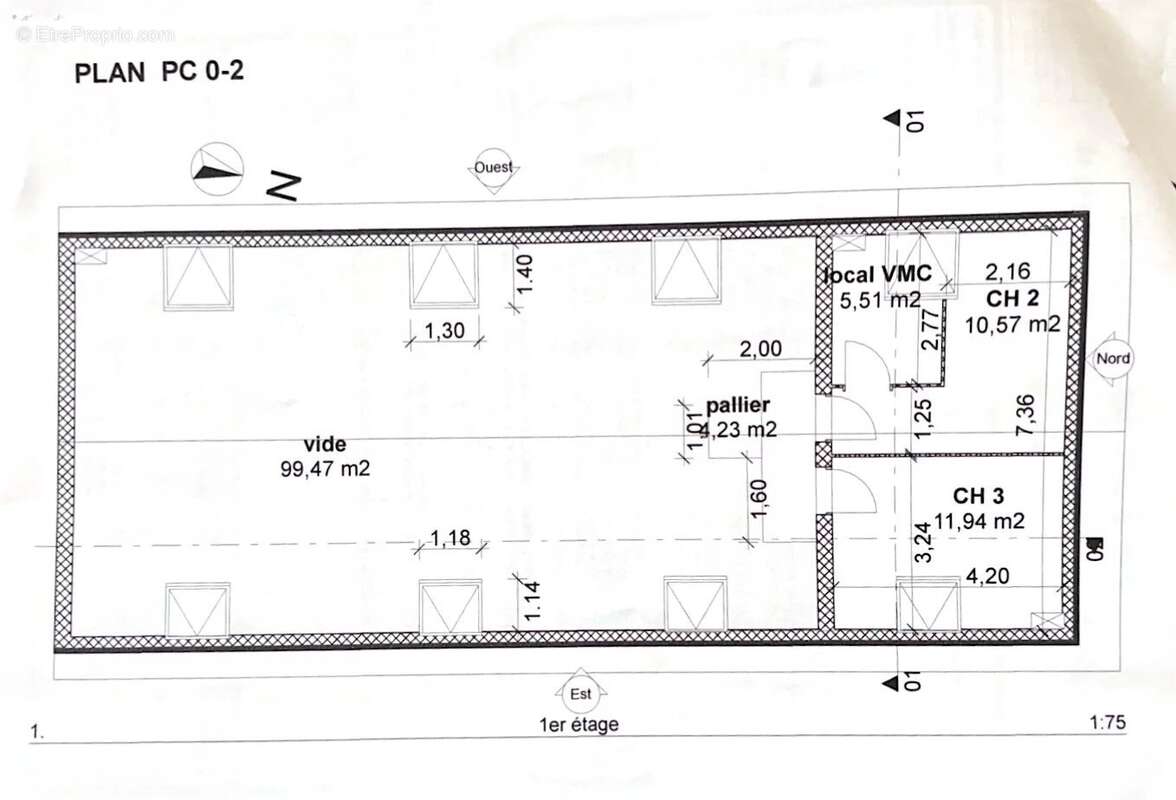
Exposé à l'Est, un grand bâtiment avec couverture neuve (2025), divisé en 3 parties au rez de chaussée d'une surface totale de 160m2 (80+40+40)+ étage aménageable.
Côté Sud, un ensemble de 3 garages avec portes basculantes. CU valide. le PLU classe cette zone en UBb (voir les destinations possibles en photo)
Référence 4670.
Les visites se dérouleront sur rendez-vous.

Les informations sur les risques auxquels ce bien est exposé sont disponibles sur le site Géorisques : www.georisques.gouv.fr

Joignez directement le négociateur (voir carte pro en photo) pour vous renseigner ou visiter...au plaisir ...

Alain prunier agent commercial immatriculé sous le numéro 750 321 838 agissant pour Immonormandie.
Voir plus

Référence: 4670

Prêt immobilier

Vous souhaitez connaître votre capacité d’emprunt et trouver le meilleur crédit immobilier ?
Réaliser une simulation gratuite

Commerce à BERNAY
Commerce à BERNAY
Commerce à BERNAY
Commerce à BERNAY
Commerce à BERNAY
Commerce à BERNAY
Commerce à BERNAY
Commerce à BERNAY
Commerce à BERNAY
Commerce à BERNAY
Commerce à BERNAY
Commerce à BERNAY
Commerce à BERNAY
Commerce à BERNAY
Commerce à BERNAY
Ce site est protégé par reCAPTCHA la Politique de confidentialité et les Conditions d’utilisation de Google s’appliquent.
Obtenir un prêt immobilier au meilleur taux ?

En poursuivant votre navigation sans modifier vos paramètres, vous acceptez l'utilisation de cookies susceptibles de réaliser des statistiques de visite. Cliquez ici pour plus d'informations