Bénéficiez des services de nos partenaires locaux soigneusement sélectionnés
pour vous accompagner dans votre parcours d'achat immobilier

Opportunité : fonds de commerce fleuriste de 97m² en 1ère couronne d'angers

— Angers 49000 —
119 240 €
97 m²

Nos partenaires locaux
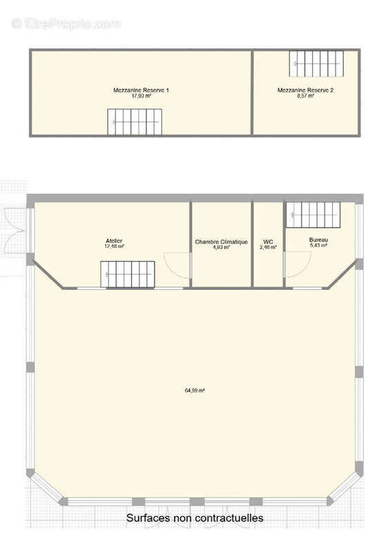
Situé en première couronne d'Angers, ce fonds de commerce bénéficie d'un emplacement d'angle exceptionnel avec 23m de vitrine, dans un environnement commercial dynamique (coiffure, services, restauration, supermarché, etc.) et à proximité immédiate du marché hebdomadaire. Le local commercial de 97 m², en excellent état, comprend : Une surface de vente lumineuse de 64 m², Un atelier de préparation de 12 m², Une chambre climatique avec groupe révisé, Deux espaces de stockage en mezzanine (env. 26 m² au total), Un espace bureau avec sanitaire. Une terrasse couverte de 60 m² idéale pour l'exposition extérieure, Une climatisation neuve. Accessibilité PMR. Stationnement gratuit et facile avec borne de recharge à proximité. Loyer modéré avec un taux d'effort locatif d'environ 7,6 % du CA Informations clés : - Chiffre d'affaires moyen annuel (3 dernières années) : 233 115 euros - Clientèle locale fidèle et diversifiée - Excellente e-réputation : 4,7/5 sur Google - Affaire pérenne exploitée depuis plus de 15 ans Cette affaire clé en main, saine, bien implantée et disposant d'un outil de travail performant, constitue une opportunité rare pour un repreneur souhaitant s'implanter dans une zone résidentielle dynamique à proximité immédiate d'Angers. Contactez-nous dès aujourd'hui pour organiser une visite et recevoir le dossier complet. NON SOUMIS AU DPE REF: 2491 Les informations sur les risques auxquels ce bien est exposé sont disponibles sur le site Géorisques : www.georisques.gouv.fr Prix de vente honoraires d'agence inclus : 117 700 euros HT + 1 540 euros TVA, soit 119 240 euros TTC Prix de vente hors honoraires d'agence : 110 000 euros HT + 0 euros TVA, soit 110 000 euros TTC Honoraires d'agence : 7 700 euros HT + 1 540 euros TVA, soit 9 240 euros TTC (8.40 % TTC du prix de vente hors Honoraires d'agence) Honoraires charge acquéreur La présente annonce immobilière a été rédigée sous la responsabilité éditoriale de MR. JEANNIOT Julien EI, mandataire indépendant en immobilier (sans détention de fonds), agent commercial immatriculé au RSAC de ANGERS sous le numéro 442819959, titulaire de la carte de démarchage immobilier pour le compte de la société ATELIER IMMO SAS. (8.40 % honoraires TTC à la charge de l'acquéreur.)
Voir plus

Référence: 2491
Honoraires d'agence de 8.4% à la charge de l'acquéreur

Prêt immobilier

Vous souhaitez connaître votre capacité d’emprunt et trouver le meilleur crédit immobilier ?
Réaliser une simulation gratuite

Commerce à ANGERS
Commerce à ANGERS
Commerce à ANGERS
Commerce à ANGERS
Commerce à ANGERS
Commerce à ANGERS
Commerce à ANGERS
Commerce à ANGERS
Commerce à ANGERS
Ce site est protégé par reCAPTCHA la Politique de confidentialité et les Conditions d’utilisation de Google s’appliquent.
Obtenir un prêt immobilier au meilleur taux ?

En poursuivant votre navigation sans modifier vos paramètres, vous acceptez l'utilisation de cookies susceptibles de réaliser des statistiques de visite. Cliquez ici pour plus d'informations