Bénéficiez des services de nos partenaires locaux soigneusement sélectionnés
pour vous accompagner dans votre parcours d'achat immobilier

Maison individuelle de plain pied

— Bruguieres 31150 —
388 000 €
112 m²
5 pièces
parkingbalcon/terrasse

Nos partenaires locaux
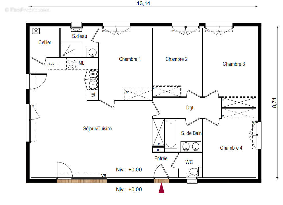
Bruguières, Belle villa individuelle moderne de plain-pied au sein d'une résidence à taille humaine en coeur de ville. Garage indépendant et place de midi couverte pour stationner se placent devant la villa. On y retrouve ensuite une entrée avec vestibule sur le séjour cuisine pour 44,60m2 en triple exposition ouest/sud/est sur terrasse de 38,35m2 prolongée du jardin de 255m2. Un cellier est attenant à la cuisine. Le coin nuit comprend 3 chambres de 11,45, 13,80 et 11,95m2, une salle de bain, un wc et une suite parentale de 16,90m2. De conception RT2012, la maison propose une chaudière individuelle gaz à condensation, isolation renforcée, carrelage au sol, parquet dans les chambres, volets roulants électriques dans le séjour, peinture blanche lisse .... Au coeur de Bruguieres, la maison profite d'un emplacement idéal. De nombreux services et infrastructures se trouvent à proximité : école, lycée, commerces, medecin, boulangerie, à moins de 5min à pied. Pour tout renseignement : Féänor MAMEO [Coordonnées masquées]
Voir plus

Référence: TER-V01
DPE
A
B
C
D
E
F
G
GES
A
B
C
D
E
F
G

Prêt immobilier

Vous souhaitez connaître votre capacité d’emprunt et trouver le meilleur crédit immobilier ?
Réaliser une simulation gratuite

Maison à BRUGUIERES
Maison à BRUGUIERES
Maison à BRUGUIERES
Maison à BRUGUIERES
Maison à BRUGUIERES
Maison à BRUGUIERES
Maison à BRUGUIERES
Maison à BRUGUIERES
Maison à BRUGUIERES
Maison à BRUGUIERES
Maison à BRUGUIERES
Maison à BRUGUIERES
Maison à BRUGUIERES
Maison à BRUGUIERES
Maison à BRUGUIERES
Maison à BRUGUIERES
Ce site est protégé par reCAPTCHA la Politique de confidentialité et les Conditions d’utilisation de Google s’appliquent.
Obtenir un prêt immobilier au meilleur taux ?

En poursuivant votre navigation sans modifier vos paramètres, vous acceptez l'utilisation de cookies susceptibles de réaliser des statistiques de visite. Cliquez ici pour plus d'informations