Bénéficiez des services de nos partenaires locaux soigneusement sélectionnés
pour vous accompagner dans votre parcours d'achat immobilier

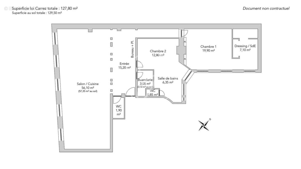
Paris 17e - batignolles - appartement à vendre - 4 pièces - 127,80m² carrez - 129,50m² au sol - 2/3 chambres.

— Paris-17e 75017 —
1 815 000 €
128 m²
4 pièces

Nos partenaires locaux
Au coeur des Batignolles, magnifique appartement de 127,80m² loi Carrez et 129,50m² au sol situé au troisième étage d'une jolie copropriété arborée.

Entièrement rénové par architecte, il dispose d'une entrée avec placards et bureau, d'un magnifique double séjour de 57m² exposé sud-ouest avec une cuisine ouverte équipée, une grande suite parentale avec deux fenêtres, dressing et salle de douche, une seconde chambre avec une salle de bains et des toilettes, une buanderie et des toilettes invités.
Possibilité de créer une troisième chambre facilement.

Ce bien offre des prestations de grande qualité. Très lumineux, nombreux rangements et plan sans perte de place.

Une grande cave complète cette offre.
Voir plus

Référence: 2852MONVIQ
Barème des honoraires
DPE
A
B
C
D
E
F
G
GES
A
B
C
D
E
F
G

Prêt immobilier

Vous souhaitez connaître votre capacité d’emprunt et trouver le meilleur crédit immobilier ?
Réaliser une simulation gratuite

Appartement à PARIS-17E
Appartement à PARIS-17E
Appartement à PARIS-17E
Appartement à PARIS-17E
Appartement à PARIS-17E
Appartement à PARIS-17E
Appartement à PARIS-17E
Appartement à PARIS-17E
Appartement à PARIS-17E
Appartement à PARIS-17E
Appartement à PARIS-17E
Appartement à PARIS-17E
Appartement à PARIS-17E
Appartement à PARIS-17E
Appartement à PARIS-17E
Appartement à PARIS-17E
Appartement à PARIS-17E
Appartement à PARIS-17E
Ce site est protégé par reCAPTCHA la Politique de confidentialité et les Conditions d’utilisation de Google s’appliquent.
Obtenir un prêt immobilier au meilleur taux ?

En poursuivant votre navigation sans modifier vos paramètres, vous acceptez l'utilisation de cookies susceptibles de réaliser des statistiques de visite. Cliquez ici pour plus d'informations