T4 avec terrasse + 2 places de parking

— Vif 38450 —
356 000 €
80 m²
4 pièces

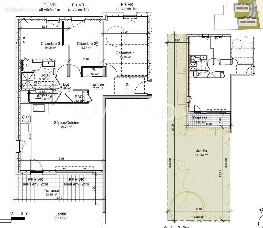
Frais de notaire OFFERTS IMMOSUD+ Vous présente à la vente un appartement T4 de 79.68 m2 avec terrasse + 2 places de parkings privatives Il est doté d'un espace de vie lumineux et fonctionnel de 30 m2 plein sud et donnant sur son jardin de 160 m2 , 3 chambres, salle de bains et WC. Chauffage par pompe à chaleur réversible, Menuiseries en aluminium. Environnement calme et verdoyant. Proche des commodités avec accès au centre de VIF à 5 min à pied . Résidence de standing RT 2012-20% Eco responsable fait avec des matériaux bas carbone Appartement modulable selon vos goûts et besoins. Plans et visuels disponibles sur demande Appartement T2 à partir de 200 000 € Appartement T3 à partir de 251 000 € Appartement T4 à partir de 316 000 € Appartement T5 à partir de 443 000 € CONDITIONS DE LA VENTE Prix de vente 316 000 € Honoraires TTC charge vendeur LES PETITS + : Découvrez le détail de l'annonce sur notre site Internet IMMOSUD +. INFORMATION COPROPRIETE : Bien soumis au statut juridique de la Copropriété. Nb de lots : 96. Charges annuelles de copropriété (Montant moyen annuel quote-part du budget prévisionnel vendeur) : 800 €.
Voir plus

Référence: 1854
Honoraires à la charge du vendeur.
Barème des honoraires

Prêt immobilier

Vous souhaitez connaître votre capacité d’emprunt et trouver le meilleur crédit immobilier ?
Réaliser une simulation gratuite

Appartement à VIF
Appartement à VIF
Appartement à VIF
Ce site est protégé par reCAPTCHA la Politique de confidentialité et les Conditions d’utilisation de Google s’appliquent.
Obtenir un prêt immobilier au meilleur taux ?

En poursuivant votre navigation sans modifier vos paramètres, vous acceptez l'utilisation de cookies susceptibles de réaliser des statistiques de visite. Cliquez ici pour plus d'informations