Bénéficiez des services de nos partenaires locaux soigneusement sélectionnés
pour vous accompagner dans votre parcours d'achat immobilier

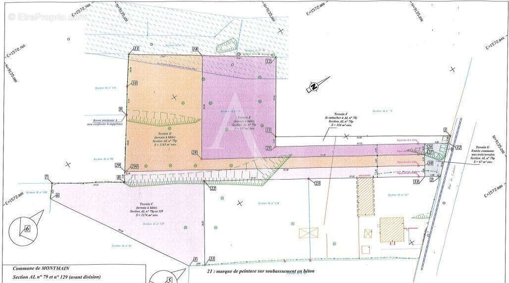
Terrains montmain

— Montmain 76520 —
99 500 €
1 145 m²
jardin

Nos partenaires locaux
Sur la commune de MONTMAIN ! Trois parcelles de terrain à bâtir viabilisés dans un secteur calme, libre de tous constructeurs. A voir au plus vite ! Contactez nous au [Coordonnées masquées] Les informations sur les risques auxquels ce bien est exposé sont disponibles sur le site Géorisques : www.georisques.gouv.fr. Nous rappelons que conformément à l'article l.561-5 du code monétaire et financier, la pièce d'identité de tous les visiteurs sera demandée avant la visite.

Référence: 351
Honoraires à la charge du vendeur.
Barème des honoraires

Prêt immobilier

Vous souhaitez connaître votre capacité d’emprunt et trouver le meilleur crédit immobilier ?
Réaliser une simulation gratuite

Terrain à MONTMAIN
Terrain à MONTMAIN
Terrain à MONTMAIN
Terrain à MONTMAIN
Terrain à MONTMAIN
Terrain à MONTMAIN
Ce site est protégé par reCAPTCHA la Politique de confidentialité et les Conditions d’utilisation de Google s’appliquent.
Obtenir un prêt immobilier au meilleur taux ?

En poursuivant votre navigation sans modifier vos paramètres, vous acceptez l'utilisation de cookies susceptibles de réaliser des statistiques de visite. Cliquez ici pour plus d'informations