Bénéficiez des services de nos partenaires locaux soigneusement sélectionnés
pour vous accompagner dans votre parcours d'achat immobilier

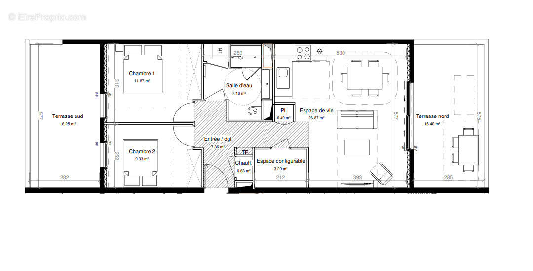
Appartement 67m² à perpignan

— Perpignan 66000 —
202 208 €
67 m²
3 pièces
parkingbalcon/terrasse

Nos partenaires locaux
Votre agence 123webimmo l'immobilier au meilleur prix vous présente : ***DERNIERS LOTS ***
PERPIGNAN QUARTIER DES PLATANES
Appartement T3 DISPONIBLE 1ER TRIMESTRE 2026

? C½ur de vie : L'habitat de demain est confortable : Une pompe à chaleur 3 en 1,
? Des murs libérés des radiateurs grâce à notre système de chauffage couplé au vecteur air,
? Un balcon spacieux conçu pour que vous puissiez y déjeuner ou y installer un coin repas,
? Parties communes conviviales et sécurisées,
? Des accès surveillés par des caméras, sans augmenter vos charges.
? L'habitat de demain est configurable : Des plans configurables permettant de disposer d'une à 2 pièces à aménager selon vos envies,
? Une cuisine équipée installée dès la remise des clés pour un appartement prêt à vivre.
? L'habitat de demain est durable :
? Des matériaux décarbonés ayant l'impact le plus faible sur l'environnement,
? Des locaux vélos sécurisés et équipés favorisant les mobilités douces,
? DPE A sur tous les logements !
Sécurité :
? Résidence sécurisée, dotée de caméras de surveillance.

Les informations sur les risques auxquels ce bien est exposé sont disponibles sur le site du gouvernement : https://www.georisques.gouv.fr
Voir plus

Référence: WI_c49391
Bien en copropriété. Nombre de lots : 24. Charges de copropriété : 1200 €.
Honoraires à la charge du vendeur.
Barème des honoraires

Prêt immobilier

Vous souhaitez connaître votre capacité d’emprunt et trouver le meilleur crédit immobilier ?
Réaliser une simulation gratuite

Appartement à PERPIGNAN
Appartement à PERPIGNAN
Appartement à PERPIGNAN
Appartement à PERPIGNAN
Appartement à PERPIGNAN
Appartement à PERPIGNAN
Appartement à PERPIGNAN
Appartement à PERPIGNAN
Appartement à PERPIGNAN
Appartement à PERPIGNAN
Appartement à PERPIGNAN
Appartement à PERPIGNAN
Appartement à PERPIGNAN
Appartement à PERPIGNAN
Appartement à PERPIGNAN
Appartement à PERPIGNAN
Appartement à PERPIGNAN
Appartement à PERPIGNAN
Appartement à PERPIGNAN
Appartement à PERPIGNAN
Appartement à PERPIGNAN
Appartement à PERPIGNAN
Appartement à PERPIGNAN
Appartement à PERPIGNAN
Appartement à PERPIGNAN
Appartement à PERPIGNAN
Appartement à PERPIGNAN
Appartement à PERPIGNAN
Appartement à PERPIGNAN
Appartement à PERPIGNAN
Appartement à PERPIGNAN
Appartement à PERPIGNAN
Appartement à PERPIGNAN
Appartement à PERPIGNAN
Appartement à PERPIGNAN
Appartement à PERPIGNAN
Appartement à PERPIGNAN
Appartement à PERPIGNAN
Appartement à PERPIGNAN
Appartement à PERPIGNAN
Appartement à PERPIGNAN
Appartement à PERPIGNAN
Ce site est protégé par reCAPTCHA la Politique de confidentialité et les Conditions d’utilisation de Google s’appliquent.
Obtenir un prêt immobilier au meilleur taux ?

En poursuivant votre navigation sans modifier vos paramètres, vous acceptez l'utilisation de cookies susceptibles de réaliser des statistiques de visite. Cliquez ici pour plus d'informations