Maison 225m² à ternay

— Ternay 69360 —
550 000 €
225 m² / 1 285 m²
8 pièces
parking

69360 TERNAY - MAISON INDIVIDUELLE FAMILIALE - 6 CHAMBRES – 225 m² + SOUS-SOL 133 m² – TERRAIN 1285 m² – PARCELLE DIVISIBLE

// VISITE VIRTUELLE DISPONIBLE //

Léonore Pillon et efficity, l'agence qui estime votre bien en ligne, vous présentent en exclusivité une maison familiale rare sur le secteur : un véritable cocon pour les familles cherchant de l'espace, du calme, de la lumière… et une qualité de vie incomparable.

Nichée sur le haut de Ternay, au cœur d'un environnement résidentiel calme et prisé, cette maison individuelle de 225 m² habitables prend place sur une parcelle arborée de 1285 m², hors lotissement. Elle séduira les familles nombreuses, recomposées ou en quête d'une organisation fluide, permettant à chacun d'avoir son espace tout en profitant de belles pièces de vie communes, un cadre de vie chaleureux et confortable.

LES ATOUTS QUI FONT LA DIFFÉRENCE
• 6 vraies chambres dont une suite parentale

• Un étage entièrement dédié aux enfants

• Un sous-sol semi-enterré carrelé et isolé de 133 m², rare sur le secteur

• Un magnifique terrain plat, piscinable, exposé sud, avec de grands arbres de différentes essences
• Une grande terrasse ouest pour profiter des couchers de soleil

• Une maison lumineuse, parfaitement orientée

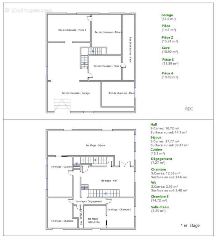
UN COCON POUR LES GRANDES FAMILLES

A l'étage de vie – Convivialité & confort
Un vaste hall d'entrée vous accueille et mène vers une pièce de vie lumineuse, et chaleureuse, double exposition (sud-ouest), dotée d'une belle cheminée d'époque.
La terrasse plein ouest prolonge agréablement le salon.

La cuisine Schmidt, semi-ouverte (fermeture possible via une belle porte coulissante en bois fabriquée sur mesure), est à la fois fonctionnelle et conviviale.
Un premier coin nuit complète ce niveau :

• Suite parentale avec salle d'eau, double vasque et douche à l'italienne

• Une chambre supplémentaire avec placard intégré pouvant devenir un bureau, un dressing, une chambre de bébé ou d'amis

• WC indépendant avec son lave-mains
Idéal pour préserver un vrai espace parents au calme.

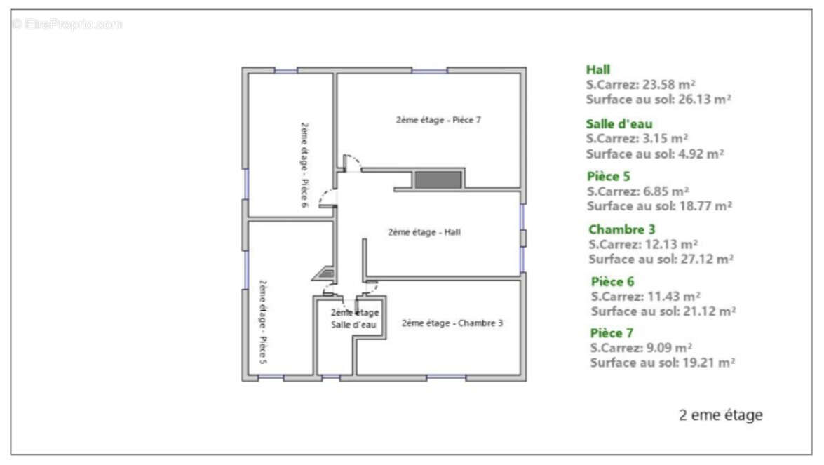
Au 2ème, le niveau enfants – Espace & autonomie

Un palier généreux accueille un espace commun modulable : salle de jeux, coin TV, espace de télétravail…
Il dessert 4 immenses chambres mansardées, entre 19 et 27 m² au sol, toutes dotées de charpentes traditionnelles apparentes qui apportent charme et chaleur. L'une des chambres séduira les petits aventuriers avec ses mansardes rappelant la forme d'une cabane.
Chaque enfant peut y créer son univers, disposer d'un coin bureau ou d'un espace détente.

Une seconde salle d'eau avec WC complète cet étage.
Depuis le palier, une vue dégagée et verdoyante sur les Monts du Lyonnais.

Au sous-sol – 133 m² semi-enterré : un bonus !
Parfait pour :

• un artisan

• un indépendant

• un passionné de bricolage

• une grande famille qui a besoin d'espaces de stockage
Actuellement organisé en : double garage, atelier, buanderie/chaufferie, bureau, cave et cave à vin.

Possibilité d'imaginer un aménagement de surface habitable (bureau indépendant disposant de son propre accès), ou une activité tertiaire.
Plusieurs stationnements extérieurs complètent l'ensemble.

Un jardin comme un havre de paix
Le terrain plat, arboré, exposé sud, offre une ambiance paisible, idéale pour les jeux d'enfants, un futur potager ou l'installation d'une piscine.
La terrasse ouest promet de superbes soirées d'été face au coucher du soleil.

Potentiel supplémentaire : division parcellaire
La parcelle, située en zone Ub, est divisible (CES 0,30) : une opportunité rare à Ternay pour un projet familial ou un investissement.

Informations techniques :
DPE C
Double vitrage sur les 3 niveaux, volets bois manuels (1er étage), velux motorisés à l'étage
Chauffage au gaz de ville, chaudière Viessmann, référence haut de gamme allemande
Rafraîchissement des peintures à prévoir
Sous-sol nécessitant des travaux (devis env. 20 000 €)

Taxe foncière = 1866€/an en 2025

En résumé : une maison lumineuse, chaleureuse, parfaitement pensée pour une grande famille, avec des volumes rares, un étage 100 % dédié aux enfants, un sous-sol exceptionnel et un jardin idyllique.
Le tout dans un quartier recherché, calme et résidentiel. N'hésitez pas à me contacter du lundi au samedi pour organiser une visite et découvrir cette opportunité !

Vous souhaitez vendre ou faire estimer votre bien immobilier ? Mon équipe et moi-même sommes à votre disposition partout en France.
Les informations sur les risques auxquels ce bien est exposé sont disponibles sur le site Georisque : georisques. gouv. fr
Léonore Pillon - EI - est Agent Commercial mandataire en immobilier, immatriculé au Registre Spécial des Agents Commerciaux du Tribunal de Commerce de Lyon 2e Arrondissement sous le n°920346194.
Siège social du mandant : effiCity, 48 avenue de Villiers - 75017 PARIS - Société par Actions Simplifiée, société au capital de 132 373,05 euros, immatriculée au RCS Paris 497 617 746 et titulaire de la Carte professionnelle CPI 75[Coordonnées masquées]02 025 - CCI Paris IDF - Caisse de Garantie : GALIAN Assurances 89 rue de la Boétie 75008 Paris
Voir plus

Référence: 197068
Honoraires à la charge du vendeur.
Barème des honoraires
DPE
A
B
C
D
E
F
G
GES
A
B
C
D
E
F
G

Prêt immobilier

Vous souhaitez connaître votre capacité d’emprunt et trouver le meilleur crédit immobilier ?
Réaliser une simulation gratuite

Maison à TERNAY
Maison à TERNAY
Maison à TERNAY
Maison à TERNAY
Maison à TERNAY
Maison à TERNAY
Maison à TERNAY
Maison à TERNAY
Maison à TERNAY
Maison à TERNAY
Maison à TERNAY
Maison à TERNAY
Maison à TERNAY
Maison à TERNAY
Maison à TERNAY
Maison à TERNAY
Maison à TERNAY
Maison à TERNAY
Maison à TERNAY
Maison à TERNAY
Maison à TERNAY
Ce site est protégé par reCAPTCHA la Politique de confidentialité et les Conditions d’utilisation de Google s’appliquent.
Obtenir un prêt immobilier au meilleur taux ?

En poursuivant votre navigation sans modifier vos paramètres, vous acceptez l'utilisation de cookies susceptibles de réaliser des statistiques de visite. Cliquez ici pour plus d'informations