Rare : charmante maison avec potentiel locatif

— Neuilly-Plaisance 93360 —
650 000 €
183 m² / 621 m²
7 pièces
parkingbalcon/terrasse

Implantée sur un terrain de 621 m², dans le très prisé quartier pavillonnaire du Plateau d'Avron à Neuilly-Plaisance.

Cette grande maison avec 183 m² de surface habitable et 360 m² de surface au sol, rare sur le secteur, offre un plan équilibré et optimisé sans perte de place.

La maison bénéficie d'une luminosité traversante et d'une ventilation agréable.
Spacieuse et entretenue avec soin, elle peut être habitée immédiatement.
Des améliorations de performance énergétique ou des travaux de rafraîchissement peuvent être envisagés selon les recommandations de professionnels et en fonction des projets, notamment de réaménagement de certains espaces pour renforcer encore le confort et le potentiel du bien.

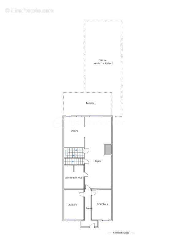
Depuis l'entrée principale, on accède au séjour lumineux qui s'ouvre sur une terrasse d'environ 20 m² offrant une vue dégagée.
À ce même niveau se trouvent la cuisine équipée, deux chambres, une salle de bain avec un espace buanderie et WC.

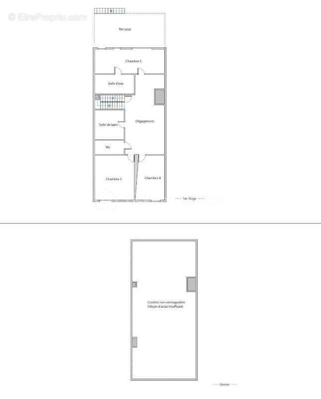
À l'étage, on découvre d'abord une pièce centrale et modulable. Autour de ce cadre, la distribution des pièces offre une circulation fluide. Sur la gauche se trouve une grande MasterBedroom avec sa salle de douche privative. Sur la droite, deux chambres supplémentaires et séparément, une salle de douche avec WC complètent ce niveau.

Le niveau inférieur comprend un studio indépendant d'environ 30 m², équipé d'une kitchenette, d'une salle de douche avec WC. Le studio offre un potentiel locatif intéressant, permettant notamment de compenser les coûts énergétiques et les charges liées à la propriété.

L'ensemble de l'espace inférieur offre une véritable opportunité d'extension ou de création de pièces supplémentaires, un atout rare.
Deux ateliers complètent ce niveau et ouvrent la voie à de multiples possibilités : salle de cinéma, salle de sport, espace de loisirs, création de nouveaux espaces de vie ou de nuit.
Une terrasse située à ce niveau permet d'accéder directement au grand jardin.
Un espace de stationnement couvert permet d'accueillir plusieurs véhicules.

Ce bien polyvalent représente une belle opportunité pour ceux qui recherchent une résidence située dans un quartier bien desservi, proche de Paris intramuros, car sa localisation est particulièrement avantageuse :

Le Plateau d'Avron est un secteur recherché de la banlieue chic parisienne, en hauteur, calme et apprécié pour sa vue dégagée.

Plusieurs espaces verts se trouvent également à proximité, permettant de profiter de promenades, d'activités familiales et d'un cadre naturel agréable.
Les écoles sont situées à proximité : maternelles Paul Doumer et Victor Hugo, collège Jean Moulin et lycée Charles de Gaulle.
Les commerces sont nombreux : centre commercial Westfield Rosny 2, Domus, restaurants, cafés, supermarchés et services du quotidien.

Les déplacements sont facilités par la proximité du RER A, qui permet de rejoindre Châtelet-Les Halles en environ 15 minutes, avec ensuite un accès direct aux lignes de métro 1, 4, 7, 11 et 14.
La ligne de bus 114 dessert le quartier et mène rapidement à la gare.
Les axes routiers A4 et A86 sont accessibles en quelques minutes, et les aéroports Paris-Charles-de-Gaulle et Paris-Orly sont facilement accessibles.

Cette annonce référence 314065 vous est présentée par votre agent commercial BSK Immobilier BEYANE ASSI (EI) immatriculé au RSAC de CRETEIL (94000) sous le numéro 82466752100028.

Prix du bien : 650 000,00 €
Les honoraires d'agence sont à la charge du vendeur.

A propos des performances énergétiques :
Date de réalisation du diagnostic énergétique : 01/12/2025
Score DPE : 395 kWhEP/m²/an
Score GES : 62 kgepCO2/m²/an
Montant estimé des dépenses annuelles d'énergie pour un usage standard : entre 5000.00 € et 6800.00 € par an. Prix moyens des énergies indexés sur l'année 2021 (abonnements compris).

Les informations sur les risques auxquels ce bien est exposé sont disponibles sur le site Géorisques : www.georisques.gouv.fr
Voir plus

Référence: 314065
Honoraires à la charge du vendeur.
DPE
A
B
C
D
E
F
G
GES
A
B
C
D
E
F
G

Prêt immobilier

Vous souhaitez connaître votre capacité d’emprunt et trouver le meilleur crédit immobilier ?
Réaliser une simulation gratuite

Maison à NEUILLY-PLAISANCE
Maison à NEUILLY-PLAISANCE
Maison à NEUILLY-PLAISANCE
Maison à NEUILLY-PLAISANCE
Maison à NEUILLY-PLAISANCE
Maison à NEUILLY-PLAISANCE
Maison à NEUILLY-PLAISANCE
Maison à NEUILLY-PLAISANCE
Maison à NEUILLY-PLAISANCE
Maison à NEUILLY-PLAISANCE
Maison à NEUILLY-PLAISANCE
Maison à NEUILLY-PLAISANCE
Maison à NEUILLY-PLAISANCE
Maison à NEUILLY-PLAISANCE
Maison à NEUILLY-PLAISANCE
Maison à NEUILLY-PLAISANCE
Ce site est protégé par reCAPTCHA la Politique de confidentialité et les Conditions d’utilisation de Google s’appliquent.
Obtenir un prêt immobilier au meilleur taux ?

En poursuivant votre navigation sans modifier vos paramètres, vous acceptez l'utilisation de cookies susceptibles de réaliser des statistiques de visite. Cliquez ici pour plus d'informations