Bénéficiez des services de nos partenaires locaux soigneusement sélectionnés
pour vous accompagner dans votre parcours d'achat immobilier

4 pièces 85 m2

— Boulogne-Billancourt 92100 —
850 000 €
85 m²
4 pièces
parkingbalcon/terrasse

Nos partenaires locaux
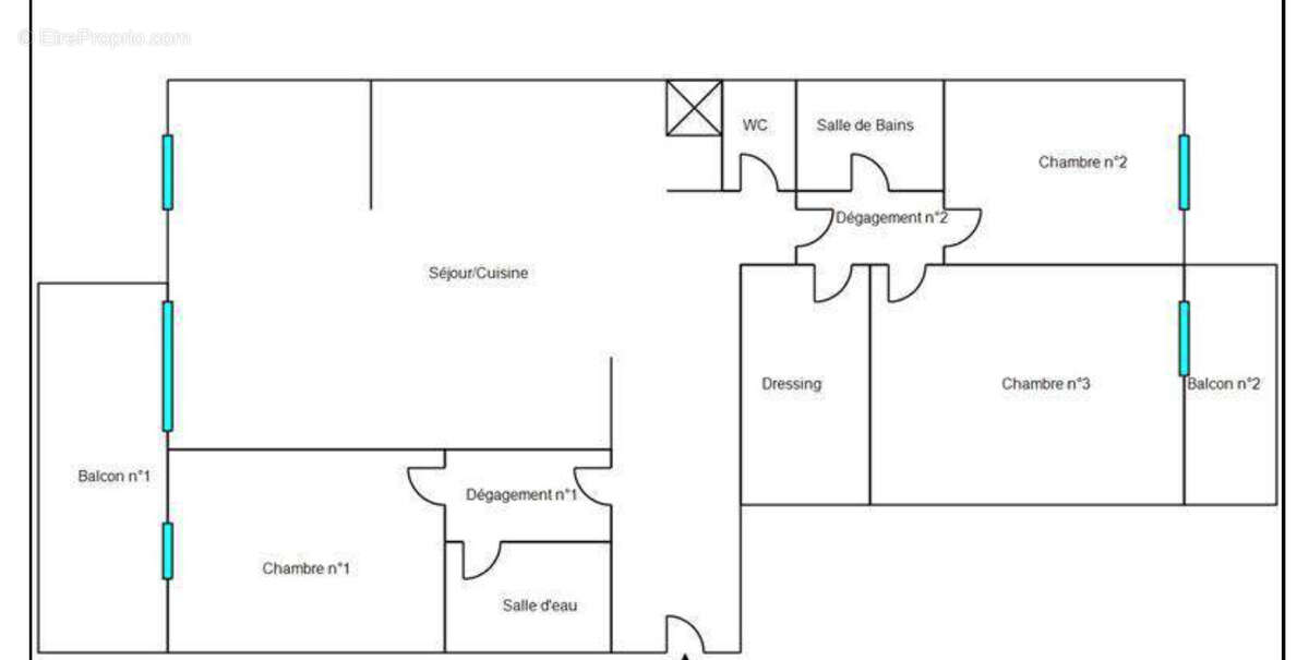
VENDU ! Angle SIlly/Morizet : 4 pièces traversant Est/ouest de 85 M2 avec TERRASSE de 9 M2 ET balcon de 5 M2 au 3 ème étage avec ascenseur dans un immeuble récent de standing. Salon avec cuisine aménagée ouverte de 40 M2 , 3 chambres entre 10 M2 et 12 M2 , salle de bains, salle d'eau, wc séparés, grand dressing. Idéalement situé entre l'école Saint François d'Assise et l'école maternelle Silly, à 2 pas du métro Rhin Danube et 5 mins à pied du centre commercial ' Les Passages ' . Immeuble sécurisé, digicode, interphone, vidéo surveillance. Emplacement parking possible au sous sol. Une cave complète ce bien. chauffage individuel électrique. Charges annuelles 2400 euro . Taxe foncière 963 euro. L’ATELIER de L'IMMOBILIER acteur incontournable de l'expertise valeur vénale, est spécialisé en audit, transaction, location, de biens d'habitations, commerciaux et industriels sur Paris .Notre équipe, composée uniquement d’experts agréés, reste à votre écoute pour vous conseiller et vous accompagner dans tous vos projets. Plus de 520 cabinets d’expertise membres du Centre National de l’Expertise sont à votre service dans toute la France.
Voir plus

Référence: 2493
Bien en copropriété. Nombre de lots : 22. Charges de copropriété : 2400 €.
Honoraires à la charge du vendeur.
Barème des honoraires
DPE
A
B
C
D
E
F
G
GES
A
B
C
D
E
F
G

Prêt immobilier

Vous souhaitez connaître votre capacité d’emprunt et trouver le meilleur crédit immobilier ?
Réaliser une simulation gratuite

Appartement à BOULOGNE-BILLANCOURT
Appartement à BOULOGNE-BILLANCOURT
Appartement à BOULOGNE-BILLANCOURT
Appartement à BOULOGNE-BILLANCOURT
Appartement à BOULOGNE-BILLANCOURT
Appartement à BOULOGNE-BILLANCOURT
Appartement à BOULOGNE-BILLANCOURT
Appartement à BOULOGNE-BILLANCOURT
Appartement à BOULOGNE-BILLANCOURT
Appartement à BOULOGNE-BILLANCOURT
Appartement à BOULOGNE-BILLANCOURT
Appartement à BOULOGNE-BILLANCOURT
Appartement à BOULOGNE-BILLANCOURT
Appartement à BOULOGNE-BILLANCOURT
Appartement à BOULOGNE-BILLANCOURT
Ce site est protégé par reCAPTCHA la Politique de confidentialité et les Conditions d’utilisation de Google s’appliquent.
Obtenir un prêt immobilier au meilleur taux ?

En poursuivant votre navigation sans modifier vos paramètres, vous acceptez l'utilisation de cookies susceptibles de réaliser des statistiques de visite. Cliquez ici pour plus d'informations