Bénéficiez des services de nos partenaires locaux soigneusement sélectionnés
pour vous accompagner dans votre parcours d'achat immobilier

Voir tous les partenaires locaux

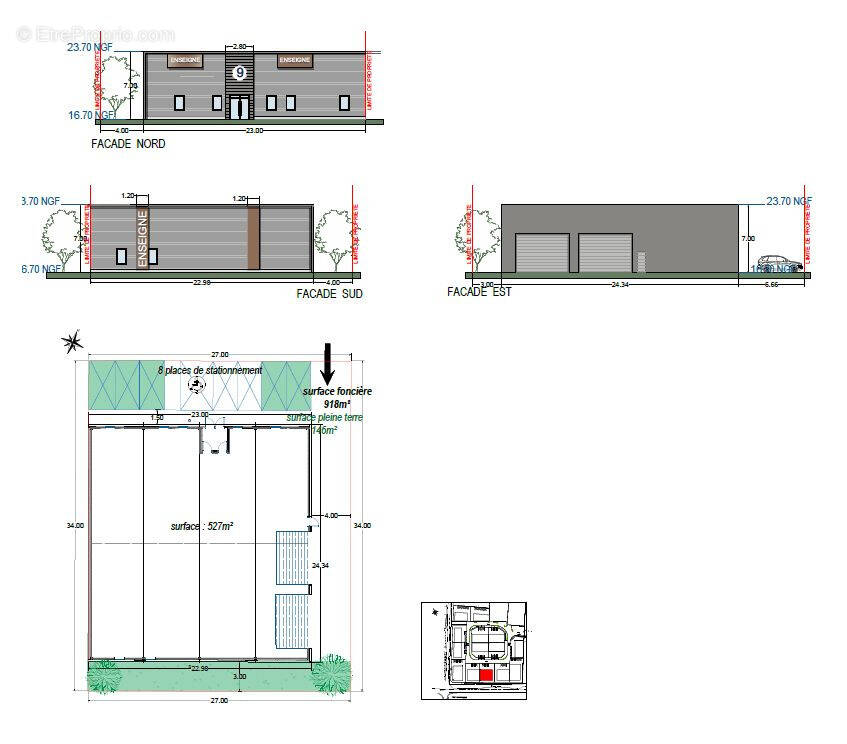
 Batiment professionnel 527 m2

— La Rochelle 17000 —
837 900 €
527 m²

Nos partenaires locaux
Votre déménageur local
Depuis plus de 20 ans, Alteka Déménagements vous accompagne pour un déménagement en toute sérénité
06 24 55 03 24 ou cliquez-ici
Votre paysagiste local
Terrasses & Jardins, l’adresse incontournable pour tous vos projets d’aménagement extérieur sur mesure et de qualité
05 46 42 57 36 ou cliquez-ici
Votre parquettiste
Votre professionnel spécialisé dans la pose, la rénovation et l'entretien de parquets sur La Rochelle et les alentours
06 42 10 14 03 ou cliquez-ici
Votre peintre/décorateur
Décoration, peinture intérieure & ravalement de façade en Vendée et Charente-Maritime.
02 51 00 90 96 ou cliquez-ici
Votre artisan peintre
Fort de 15 ans d'expérience dans la rénovation et remise en état , peinture intérieure et extérieure.Contactez nous au
06 65 06 51 81 ou cliquez-ici
Votre audit maître d'oeuvre
Avant la signature du compromis, faites vous accompagner pour maitriser votre budget de rénovation.
06 86 51 01 48 ou cliquez-ici

Voir tous les partenaires locaux

La Rochelle - CDA au sein d'un village artisanal, à vendre cellule artisanale / industrielle de 527 m2 sur un terrain de 918 m2, livré brut de béton, fluides en attente. Construction et livraison courant 1er trimestre 2023, bénéficiant d'une garantie décennale et dommages ouvrages. Bâtiment neuf en charpente métallique, bardage double peau, toiture bac acier à pente douce sur deux pans. La structure bénéficie d'une belle hauteur sous faitage de 7 m et sera accessible par deux portes sectionnelles électriques de 5,5 H x 4,5 M. Compteur bleu triphasé max 36 KVA. 8 stationnements privatifs. Le plus : très belle visibilité sur axe circulant et cellule mitoyenne à une autre de même dimension pouvant être réunies et atteindre plus de 1000 m2 d'exploitation !!! Prix de vente hors honoraires de 798 000 € HT. Prix de vente honoraires inclus de 1 436 400 € TTC dont 5 % TTC d'honoraires à charge de l'acquéreur Une affaire d'entreprise ! Les informations sur les risques auxquels ce bien est exposé sont disponibles sur le site Géorisques : 'www.georisques.gouv.fr'.
Voir plus

Référence: 2716
Honoraires d'agence de 5% à la charge de l'acquéreur
Barème des honoraires
Géorisques

Les informations sur les risques auxquels ce bien est exposé sont disponibles sur le site Géorisques : www.georisques.gouv.fr

Ce site est protégé par hCaptcha Politique de confidentialité et Conditions d’utilisation s’appliquent.

En poursuivant votre navigation sans modifier vos paramètres, vous acceptez l'utilisation de cookies susceptibles de réaliser des statistiques de visite. Cliquez ici pour plus d'informations