Bâtiment de caractère affaire à saisir

— Perpezat 63210 —
286 000 €
337 m² / 1 173 m²
16 pièces
parkingbalcon/terrassejardin

Vous êtes à la recherche d'un batiment de caractère pour y vivre et développer votre activité professionnelle ? Ce Bâtiment est parfait pour vous !

Ce bâtiment de caractère du 19ème siècle, ancienne école, est situé sur la commune de Perpezat au cœur du parc naturel régional des Volcans d’Auvergne à 40 km de Clermont Ferrand, à 10 min de A89 et à 5 km de Rochefort-Montagne et de ses nombreux services et commerces : collège et lycée, supermarché avec station de carburants, boulangerie ...

Si vous souhaitez ouvrir un bar/restaurant, une licence IV peut-être mise à disposition par la commune et tous les équipements de cuisine et de la salle de restaurant (matériel de cuisine, couverts, tables et chaises etc) sont compris dans le prix de vente.

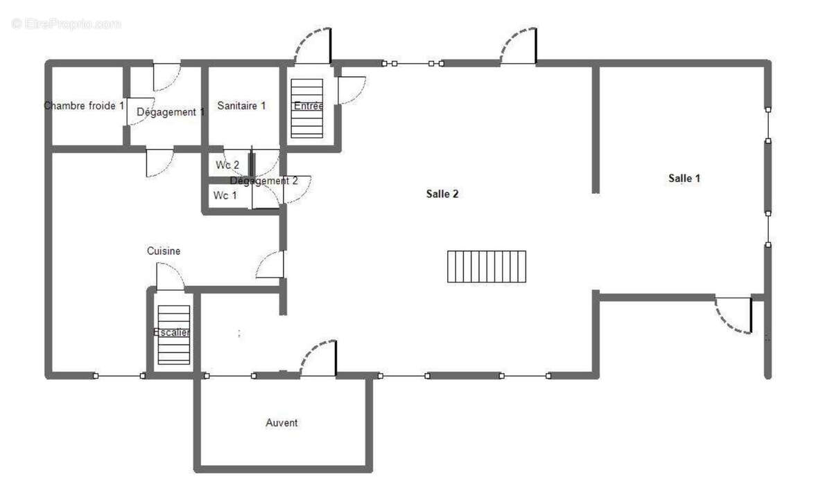
Ce bâtiment se constitue de : 

- Au sous sol : un local de 28 m2 avec accès extérieur, une arrière salle de 23 m2 donnant accès au WC, à la cave et à l'escalier montant au rez de chaussée. Idéal local commercial

- Au rez de chaussée : deux salles restaurant d'une capacité de 80 couverts avec bar et terrasse, une cuisine professionnelle avec chambre froide et WC. 

- A l'étage : une partie appartement de type F4 avec 2 chambres, un bureau, un WC séparé, une salle d'eau, une cuisine et un salon. Au même niveau, Nous avons également un grand plateau de 77 m2 non aménagé pouvant devenir, salle de conférence ou être transformé en chambres d'hotes. 

- Au grenier : 145 m2 aménageable pouvant offrir plusieurs possibilités. 

- A l'extérieur, nous allons retrouver environ 850 m2 de terrain pouvant être agrandi avec environ 2 000 m2 supplémentaires suivant votre projet. 

Ce bâtiment en pierre possède une charpente en bois et une couverture en ardoise en trés bon état. Le chauffage du bâtiment est un chauffage au gaz et le RDC dispose également d’un chauffage au bois dans la salle de restaurant. La chaudière et le bâtiment a fait l’objet d’un entretien régulier. Le bâtiment est intégralement aux normes d’accessibilité et est raccordé au tout à l'égout. 
 
Pour plus de photos, n'hésitez pas à aller sur notre site : agencehautedordogne.fr

Vous souhaitez en savoir plus ou organiser une visite, n'hésitez pas à contacter Cohade Valentin, par téléphone, au [Coordonnées masquées], ou, par mail, à [Coordonnées masquées].
Voir plus

Référence: AHD489
Honoraires d'agence de 5.93% à la charge de l'acquéreur
Barème des honoraires

Prêt immobilier

Vous souhaitez connaître votre capacité d’emprunt et trouver le meilleur crédit immobilier ?
Réaliser une simulation gratuite

Maison à PERPEZAT
Maison à PERPEZAT
Maison à PERPEZAT
Maison à PERPEZAT
Maison à PERPEZAT
Maison à PERPEZAT
Maison à PERPEZAT
Maison à PERPEZAT
Maison à PERPEZAT
Maison à PERPEZAT
Maison à PERPEZAT
Maison à PERPEZAT
Maison à PERPEZAT
Maison à PERPEZAT
Maison à PERPEZAT
Maison à PERPEZAT
Maison à PERPEZAT
Maison à PERPEZAT
Maison à PERPEZAT
Maison à PERPEZAT
Maison à PERPEZAT
Maison à PERPEZAT
Maison à PERPEZAT
Maison à PERPEZAT
Maison à PERPEZAT
Maison à PERPEZAT
Maison à PERPEZAT
Maison à PERPEZAT
Maison à PERPEZAT
Maison à PERPEZAT
Maison à PERPEZAT
Maison à PERPEZAT
Maison à PERPEZAT
Maison à PERPEZAT
Maison à PERPEZAT
Maison à PERPEZAT
Maison à PERPEZAT
Maison à PERPEZAT
Maison à PERPEZAT
Maison à PERPEZAT
Maison à PERPEZAT
Maison à PERPEZAT
Maison à PERPEZAT
Maison à PERPEZAT
Maison à PERPEZAT
Maison à PERPEZAT
Maison à PERPEZAT
Maison à PERPEZAT
Maison à PERPEZAT
Ce site est protégé par reCAPTCHA la Politique de confidentialité et les Conditions d’utilisation de Google s’appliquent.
Obtenir un prêt immobilier au meilleur taux ?

En poursuivant votre navigation sans modifier vos paramètres, vous acceptez l'utilisation de cookies susceptibles de réaliser des statistiques de visite. Cliquez ici pour plus d'informations